Sfeervolle en uitgebouwde starterswoning met diepe zonnige tuin en dubbele berging
Op een fijne en gunstige locatie ligt deze netjes onderhouden en verrassend ruime uitgebouwde middenwoning uit 1926. De woning beschikt over een sfeervolle woonkamer, een uitgebouwde keuken, twee slaapkamers, een royale bergzolder én een circa 14 meter diepe achtertuin met twee vrijstaande bergingen. Ideaal gesitueerd nabij uitvalswegen, winkels, het centrum en het prachtige natuurgebied Moerenburg.
Kenmerken
Bouwjaar: 1926
Woonoppervlakte: 79 m²
Perceeloppervlakte: 163 m²
INDELING
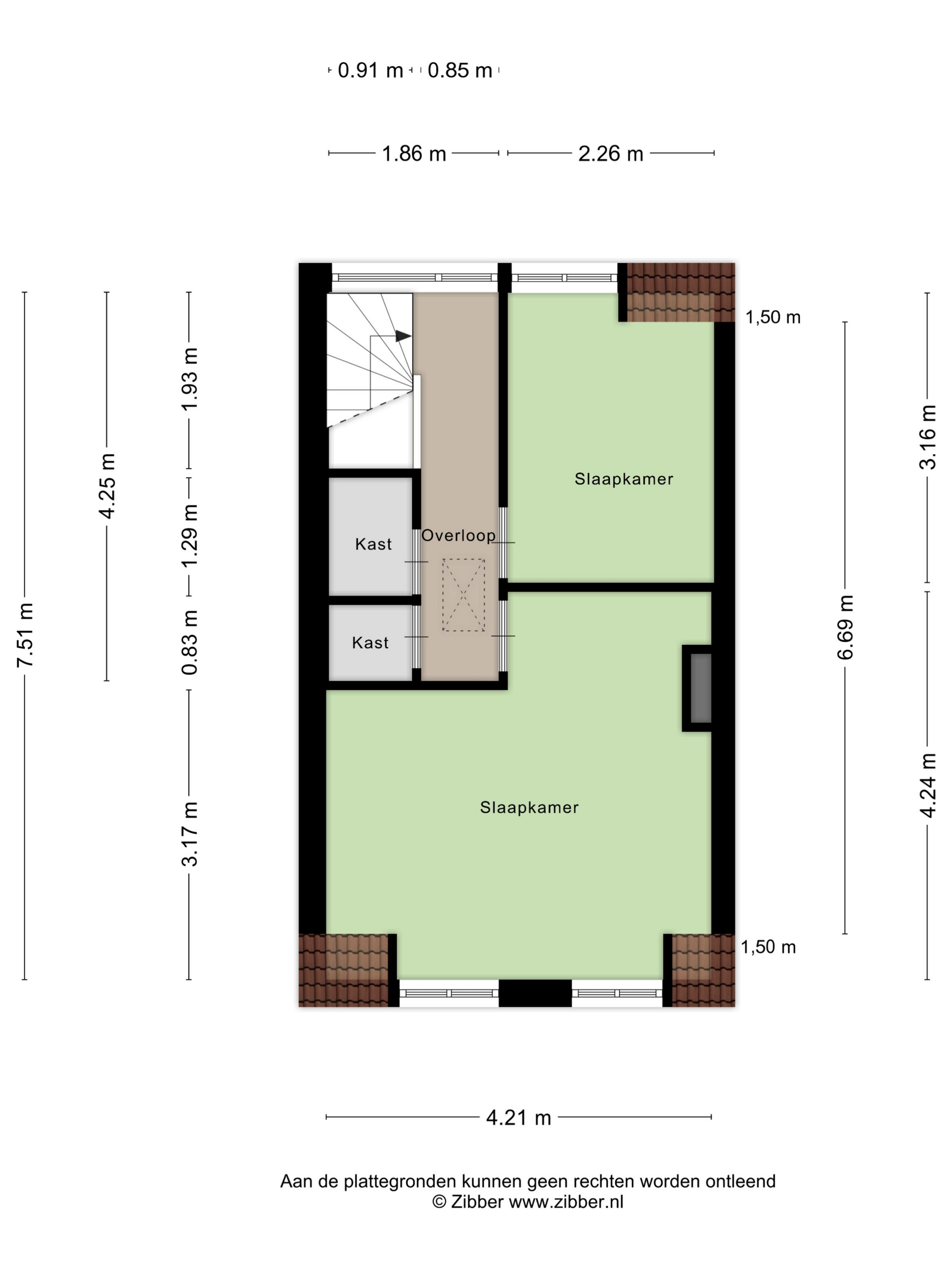
Begane grond
Via de entree met tegelvloer en afgesloten trapopgang betreed je de woning. De sfeervolle woonkamer valt direct op door het hoge plafond en de prettige lichtinval. De ruimte is afgewerkt met een laminaatvloer en beschikt over een gaskachel en een praktische, betegelde kelderkast met groepenkast.
De uitgebouwde keuken vormt een fijne leefruimte met een lichtkoepel en loopdeur naar de tuin. De keuken is netjes uitgevoerd met een gaskookplaat, afzuigkap en ruimte voor losse apparatuur. Hier bevindt zich tevens de warmwatergeiser (Vaillant). Aansluitend vind je de separate toiletruimte, een compacte badkamer met douche en wastafel en een handige bergkast.
Eerste verdieping
Overloop met toegang tot twee slaapkamers, beide voorzien van een dakkapel en dubbele inbouwkasten. De verdieping is netjes afgewerkt met een laminaatvloer.
Tweede verdieping
Via een vlizotrap bereikbare royale bergzolder – ideaal voor extra opslagruimte.
Buitenruimte
De woning beschikt over een keurig aangelegde voortuin en een verrassend diepe, vrij gelegen achtertuin van circa 14 meter. De tuin is verzorgd aangelegd met sierbestrating, borders, meerdere terrassen en een overkapping direct aan de woning – een heerlijke plek om te ontspannen.
Achter op het perceel bevindt zich een tweede, ruime dubbele berging van ruim 20 m², voorzien van elektra en een praktische achterom.
Bijzonderheden
• Gunstige ligging nabij voorzieningen, centrum en natuur
• Gedeeltelijk voorzien van dubbel glas
• Geen centrale verwarming (begane grond voorzien van gaskachels)
• Plat dak keuken vervangen circa 2012
• Plat dak dakkapel achterzijde vernieuwd in 2024
Soort woning
Eengezinswoning
Beschikbaarheid
Beschikbaar
Koopconditie
Kosten koper
Gebouwgebonden buitenruimte
8 m2
Overig inpandige ruimte
10 m2
Wilt u graag een volledige brochure ontvangen? Vul dan uw naam en emailadres in en we sturen u direct door naar de brochure.