Op zoek naar een leuke, goed onderhouden, instapklare tussenwoning waar bijna al het werk al verricht is? Deze woning is de afgelopen jaren gerenoveerd en gemoderniseerd. Zo is in 2017 de begane grond aangepakt en in 2020 de badkamer maar dit is lang niet alles..
De woning is zeer fraai en rustig gelegen aan de rand van het dorp. De woning grenst aan een plantsoen en aan de overzijde van de weg is het strandbad De Rauwbraken gelegen, waardoor er geen overburen zijn en de ligging zeer groenrijk is.  
Parkeren:
Aan de openbare weg zijn voldoende parkeerplaatsen aanwezig. 
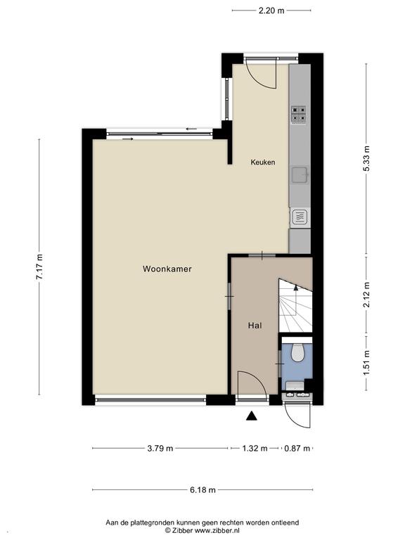
Indeling begane grond:
Middels een vernieuwde voordeur met kozijn treedt u de woning binnen. In de hal bevinden zich de moderne en uitgebreide meterkast, de toiletruimte en de trap naar de verdieping. De toiletruimte is ingericht met een zwevend closet en een fonteintje. Vanuit de hal heeft u toegang tot de woonkamer. De lichte woonkamer is voorzien van een parketvloer en heeft een grote schuifpui met convectorput naar de achtertuin. De doorgang naar de vernieuwde keuken (2017) is open gemaakt en daar is een op maat gemaakte houten industriële tafel geplaatst die voor een sfeervolle scheiding van woonkamer en keuken zorgt.  De rechte keukenopstelling is voorzien van een gasfornuis met afzuigkap, oven, vaatwasser, koelkast en vriezer. 
Ook vanuit de keuken is er toegang tot de achtertuin. 
1e verdieping: 
Overloop met toegang tot drie slaapkamers van respectievelijk 17 m², 10 m² en 8 m². Alle slaapkamers zijn voorzien van strak gestuukte wanden. De moderne badkamer (2020) is ingericht met een ligbad met douchescherm, een zwevend toilet, een wastafel in meubel en een designradiator. Het geheel is in lichte kleuren uitgevoerd. 
2e verdieping:
Middels vaste trap te bereiken zolderverdieping. De zolder is momenteel geheel open maar hier liggen zeker mogelijkheden zoals het creëren van een grote zolderkamer eventueel met dakkapel. 
Op de zolder is de CV-ketel (bouwjaar 2015) opgesteld en hier is de aansluiting aanwezig voor de wasmachine en droger, beiden op een aparte groep. 
Buiten: 
Voortuin met pad naar de woning. Leuke achtertuin met terras aan de woning, gazon en plantenborders. De stenen berging is voorzien van stroom en heeft een vernieuwd plat dak. Naast de berging ligt de achterom met toegang tot de achtergelegen brandgang.  
Bijzonderheden:
-    De woning is in de afgelopen jaren gerenoveerd/gemoderniseerd. 
-    Het schilderwerk aan de buitenzijde is in 2020 uitgevoerd. 
-    De woning is grotendeels voorzien van vernieuwde houten kozijnen met HR++ glas (2019).
-    De groepenkast is vernieuwd en uitgebreid, totaal 9 groepen met 3 aardlekschakelaars.                        
                        
                            
                                                            
                                    
                                        Soort woning
                                    
                                    
                                        Eengezinswoning                                    
                                 
                                
                            
                            
                                                            
                                
                                    
                                        Koopconditie
                                    
                                    
                                        Kosten koper                                    
                                 
                            
                            
                            
                                                            
                                                                                        
                            
                            
                            
                                                            
                            
                            
                                                            
                                    
                                        Overig inpandige ruimte
                                    
                                    
                                        15 m2
                                    
                                 
                            
                            
                                                            
                                                     
                        
                        
                        
                                                                                                Wilt u graag een volledige brochure ontvangen? Vul dan uw naam en emailadres in en we sturen u direct door naar de brochure.