Op een fraaie locatie gelegen keurig nette en zeer gezellige twee-onder-een kapwoning met voortuin, oprit voor 2 auto's, garage en fijne achtertuin. Deze goed onderhouden gezinswoning beschikt over een sfeervolle living met keuken, drie fijne slaapkamers en badkamer op de eerste verdieping en een royale zolder met vierde slaap-/werkkamer. Tot slot is deze prachtige woning gelegen op korte afstand van diverse sport-, winkel- en onderwijsvoorzieningen.
INDELING
Begane grond
Entree/hal voorzien van volledig betegeld toilet met fontein, garderobe, trapopgang, moderne meterkast (voldoende groepen met aardlekschakelaar) en provisiekast. L-woonkamer met half open keuken aan de achterzijde en zitgedeelte aan de voorzijde. Geheel voorzien van pvc vloer en elektrische zonnescreens ter plaatse van de woonkamer.  Aan de achterzijde van de kamer openslaande tuindeuren en een loopdeur naar de tuin. Nette keuken voorzien van de navolgende inbouwapparatuur: close-in-boiler, combi-oven, vaatwasser, afzuigkap, gaskookplaat en koelkast. Nagenoeg alle apparatuur van recente datum en van uitstekende kwaliteit. Het aanrechtblad is uitgevoerd in graniet en de keuken beschikt over een pannencarrousel. 
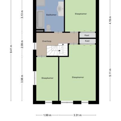
Eerste verdieping
Overloop met prettige lichtinval en trapopgang. Drie slaapkamers waarvan twee met vaste kastenwand. Kinderkamer (ca. 8 m2) aan de voorzijde/zijkant gelegen voorzien van laminaatvloer, één raam voorzien van hor en beide ramen voorzien van handmatig bedienbaar rolluik. Royale hoofdslaapkamer (ca. 17 m2) aan de voorzijde eveneens met hor en rolluik alsmede tv aansluiting en een inbouwkast. Derde slaapkamer (ca. 12 m2)  aan de achterzijde met royale inbouwkast, laminaatvloer en gezellig zicht op de achtertuin. De volledig betegelde badkamer is ruim van opzet en beschikt over een toilet, ligbad, douche in cabine en een wastafel in meubel. 
Tweede verdieping
Zeer ruime voorzolder met opstelling wasmachine, droger, mechanische ventilatie en Cv-combiketel (Nefit 2017). Bergruimte achter de schuifwanden en twee dakramen ten behoeve van de lichtinval. Vierde slaap-/werkkamer (ca. 15 m2) voorzien van dakkapel met inbouwspots. De dakkapel is uitgevoerd met kunststof kozijnen en elektrisch bedienbare zonnescreens en biedt een schitterend vergezicht.
Tuin
Voortuin met oprit voor 2 auto's. Verzorgd aangelegde achtertuin met gezellig terras voorzien van prachtige aluminium overkapping met veiligheidsglas en dimbare spots op afstand bedienbaar. Het betreft een uitermate gezellige ruimte met een geweldige lichtinval (zowel binnen als buiten) die indien gewenst ook eenvoudig tot serre te verbouwen valt door het plaatsen van schuifdeuren. De achtertuin is fraai aangelegd en gelegen op het Noorden. Voordeel hiervan is dat u zowel van de zon als ook van de schaduw kunt genieten! De achtertuin beschikt verder over wandcontactdozen en een buitenkraan, is deels voorzien van kunstgras en deels voorzien van nette bestrating en erg sfeervol dankzij de verlichting.
Garage met kanteldeur met loopdeur en voorzien van elektra en eveneens diverse wandcontactdozen. De garage is zeer geschikt voor het stallen van een auto maar biedt sowieso veel bergruimte.
Algemeen
* deels voorzien van (elektrische) screens
* houten kozijnen met dubbele beglazing
* dak-, muur- en vloerisolatie
* voldoende parkeergelegenheid
* heerlijke woning op fijne locatie!
                         
                        
                            
                                                            
                                    
                                        Soort woning
                                    
                                    
                                        Eengezinswoning                                    
                                 
                                
                                    
                                        Type woning
                                    
                                    
                                        Twee onder een kapwoning                                    
                                 
                            
                            
                                                            
                                
                                    
                                        Koopconditie
                                    
                                    
                                        Kosten koper                                    
                                 
                            
                            
                            
                                                            
                                                                                        
                            
                            
                            
                            
                                                            
                                    
                                        Gebouwgebonden buitenruimte
                                    
                                    
                                        21 m2
                                    
                                 
                            
                                                            
                                    
                                        Overig inpandige ruimte
                                    
                                    
                                        19 m2
                                    
                                 
                            
                            
                                                            
                                                     
                        
                        
                        
                                                                                                Wilt u graag een volledige brochure ontvangen? Vul dan uw naam en emailadres in en we sturen u direct door naar de brochure.