Centraal gelegen in een zeer groene en kindvriendelijke omgeving treft u deze royale en lichte twee-onder-een-kap woning met garage, oprit en ruime tuin aan. 
De woning heeft veel te bieden zoals een uitgebouwde L-vormige living, vier ruime slaapkamers, veel bergruimte, een grote garage en ruime badkamer. De rustige straat met veel groen en natuurlijk de ruime lichte kamers zorgen dat het hier aangenaam wonen is. Op loopafstand vind je alle voorzieningen zoals basisscholen, het vernieuwde winkelcentrum, een bushalte, horeca en natuurlijk diverse sportfaciliteiten.
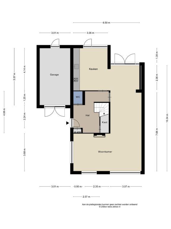
Indeling begane grond
Entree/hal met meterkast, trapkast, garderobe, trapopgang en toilet (hangcloset) met fontein. Toegang tot de royale L-vormige woonkamer met open haard en grote raampartijen aan de voorzijde met uitzicht op het groen. Via het eetgedeelte waar de begane grond uitgebouwd is heeft u via de openslaande tuindeuren toegang tot de tuin. Open keuken voorzien van net keukenblok met inbouwapparatuur te weten: 5-pits gaskookplaat, afzuigkap, vaatwasser (2021), koelkast en combimagnetron (2019). De ruime leefkeuken heeft een loopdeur naar de achtertuin en ook hier veel lichtinval. 
Eerste verdieping
Overloop met toegang tot de drie slaapkamers en de badkamer. De hoofdslaapkamer bevindt zich aan de voorzijde, beschikt over 2 vensters en een inbouwkast en meet ca. 14 m². Slaapkamer twee bevindt zich eveneens aan de voorzijde,   meet ca. 12,5 m² én beschikt tevens over een balkon. Derde slaapkamer bevindt aan de achterzijde gelegen en meet ca. 11 m². De badkamer beschikt over een inloopdouche, hangcloset, dubbele wastafel in meubel en een design radiator. Via een loopdeur toegang tot het dakterras.
Tweede verdieping
Via vaste trap bereikbaar. Voorzolder met veel bergruimte en opstelling CV combiketel Remeha (2022) en toegang tot royale vierde slaapkamer met dakkapel en airco.
Tuin
Aan de voorzijde treft u de voortuin, de ruime oprit en de garage. De achtertuin is gelegen op het noordoosten en beschikt naast een gezellig terras over een kunstgrasveldje waar lekker gevoetbald/gehockeyd kan worden. De naast de woning gelegen garage beschikt over elektra.
Algemeen
* Royale en lichte twee-onder-een-kap woning gelegen in een zeer groene omgeving
* De woning beschikt over houten kozijnen met dubbele beglazing
* CV combiketel Remeha (2022)
* Energielabel C
* Aanvaarding in overleg
                         
                        
                            
                                                            
                                    
                                        Soort woning
                                    
                                    
                                        Eengezinswoning                                    
                                 
                                
                                    
                                        Type woning
                                    
                                    
                                        Twee onder een kapwoning                                    
                                 
                            
                            
                                                            
                                
                                    
                                        Koopconditie
                                    
                                    
                                        Kosten koper                                    
                                 
                            
                            
                            
                                                            
                                                                                        
                            
                            
                            
                            
                                                            
                                    
                                        Gebouwgebonden buitenruimte
                                    
                                    
                                        3 m2
                                    
                                 
                            
                                                            
                                    
                                        Overig inpandige ruimte
                                    
                                    
                                        17 m2
                                    
                                 
                            
                            
                                                            
                                                     
                        
                        
                        
                                                                                                Wilt u graag een volledige brochure ontvangen? Vul dan uw naam en emailadres in en we sturen u direct door naar de brochure.