listing_gallery

Verkocht
Vraagprijs € 495.000

Martin Luther Kinglaan 5

Goirle
  • 4 slaapkamers
  • 156 Woonoppervlakte
  • 359 m2
Wat een ruime 2-onder-1 kapwoning met garage, op een heerlijke plek in de woonwijk Grobbendonck! Deze woning is gelegen in een rustige omgeving met veel groen, op een perceel van 359 m². Deze gezinswoning heeft naast drie slaapkamers op de 1e verdieping, een vierde slaapkamer met dakkapel op de zolderverdieping. De garage is inpandig te bereiken via de keuken.  

De woonwijk Grobbendonck is op een zeer centrale locatie nabij het dorpshart van Goirle gelegen, maar ook Tilburg en de A58 zijn kort nabij. Denk daarbij aan het vrijetijds- en studiegebied Stappegoor, met de Fontys Hogeschool en het ROC, Mill Hill College, zwembad, schaatsbaan, bioscoop  en aangrenzend tevens het Willem II college. Op enkele minuten fietsafstand bent u in het prachtige en rustige fiets- en wandelgebied Gorp en Roovert. Natuurgebied de Oostplas en het St. Elisabeth Ziekenhuis zijn eveneens nabij. Daarnaast woon je op een paar minuten lopen van een basisschool, kinderdagverblijf en sporthal De Haspel. Kortom een fijne woonplek!


INDELING

Begane grond

Entree in de ruime hal met de trapopgang naar de 1e verdieping, meterkast, toiletruimte en toegang tot de woonkamer en keuken. Toiletruimte is voorzien van een staand closet en fonteintje. De L-vormige woonkamer is afgewerkt met een klassieke houten vloer en heeft veel lichtinval door de grote raampartijen aan de voor-, zij- en achterkant. De gezellige houthaard is centraal gelegen in de woonkamer en er is meer dan genoeg ruimte voor een fijne zithoek en eethoek. Vanuit de woonkamer is er toegang tot de achtertuin en de keuken. 
De keuken is geplaatst in de aanbouw en voorzien van een hoekopstelling met gaskookplaat, vaatwasser, oven, afzuigkap en ruimte voor losse apparatuur. Ook vanuit de keuken is er toegang tot de achtertuin en toegang tot de bijkeuken/berging. 
Via de bijkeuken/berging is de garage inpandig te bereiken. De garage is voorzien van een sectionaaldeur en er is elektra aanwezig. 


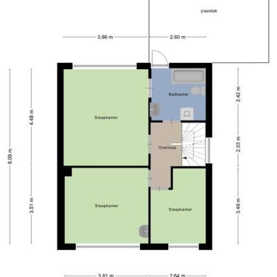
1e verdieping

Overloop met de trapopgang naar de 2e verdieping. Op deze verdieping zijn drie slaapkamers aanwezig waarvan er twee gelegen zijn aan de voorzijde. De grote slaapkamer is gelegen aan de achterzijde en grenst aan de badkamer. De badkamer is middels de slaapkamer en middels de overloop toegankelijk. De badkamer is ingedeeld met een ligbad, wastafel en staand closet, hier is tevens de aansluiting voor de wasmachine aanwezig. Vanuit de badkamer is er toegang tot het plat dak/dakterras.


2e verdieping

Middels vaste trap te bereiken voorzolder waar de Cv-ketel staat opgesteld. Vanuit de voorzolder is er toegang tot de ruime zolderkamer met dakkapel en toegang tot een extra ruimte, in het verleden gebruikt als donkere kamer. 

?
Buiten

Naast de voortuin is de oprit gelegen voor meerdere auto’s. De woning heeft een eigen achterom langs de garage. De achtertuin is gelegen op het westen en is voorzien van een terras aan de woning, gazon en plantenborders. 

Bijzonderheden
- De gevels van de uitbouw (keuken/garage) zijn in 2017 na geïsoleerd.
- Cv-combiketel uit 2023.
- Dakgoten voor en achter zijn in 2020 vervangen.
- In 2020 is dak van dakkapel vernieuwd en nieuw houtwerk aan zijkant aangebracht.
- Energielabel C.
Type woning:
Woonhuis
Soort woning
Eengezinswoning
Type woning
Twee onder een kapwoning
Beschikbaarheid
Verkocht
Vraagprijs
€ 495.000
Koopconditie
Kosten koper
Aanvaarding
In overleg
Inhoud
597 m3
Perceel
359 m2
Woonoppervlakte
156 m2
Aantal kamers
5
Aantal slaapkamers
4
Gebouwgebonden buitenruimte
1 m2
Overig inpandige ruimte
13 m2
Bouwjaar
1974
Energielabel
C

Wilt u graag een volledige brochure ontvangen? Vul dan uw naam en emailadres in en we sturen u direct door naar de brochure.

Meer informatie over deze woning of een bezichtiging plannen?

Neem dan contact op met één van onze makelaars via 013 580 20 70 of stuur een mail naar info@gerritsemakelaardij.nl.