listing_gallery

Verkocht
Vraagprijs € 369.000

Ringvaert 16 C

Kaatsheuvel
  • 3 slaapkamers
  • 111 Woonoppervlakte
  • 169 m2

Duurzaam, onderhoudsvriendelijk en lage energielasten. Deze woorden klinken voor iedereen wel als muziek in de oren. Gelukkig kan de woning aan de Ringvaert 16C aan deze componenten voldoen en staat deze woning ook nog eens te koop! Deze jonge woning is in 2017 opgeleverd en is gelegen in de mooie nieuwbouwwijk in de Loonse Vaart om de hoek van het centrum van Kaatsheuvel. De woning is voorzien van drie slaapkamers met mogelijkheden tot uitbreiding op de zolder. De woning is volledig geïsoleerd en voorzien van vloerverwarming op de begane grond en badkamer op de eerste verdieping. Daarbij heeft de woning nog vijf zonnepanelen op het dak liggen welke er mede voor zorgen dat de woning energielabel A heeft. Het perceel dient nog kadastraal gesplitst te worden voor rekening koper. De grootte van het perceel zal circa 169 m2 zijn (of zo groot als uit kadastrale inmeting zal blijken).

INDELING

Begane grond:
Aan de voorzijde van de woning zit de entree waarbij je binnenkomt in de hal. In de hal is de meterkast en het toilet gesitueerd. Vanuit de hal betreed je de lichte woonkamer met open leefkeuken. De gehele benedenverdieping is voorzien van vloerverwarming. De keuken bevindt zich aan de voorzijde van de woning en is voorzien van inbouwapparatuur zoals: een 4 pits gasfornuis, afzuigkap, vaatwasser en combi magnetron/oven. De open keuken staat in verbinding met de woonkamer welke aan de achterzijde is voorzien van grote raampartijen en de achterdeur.

Eerste verdieping:
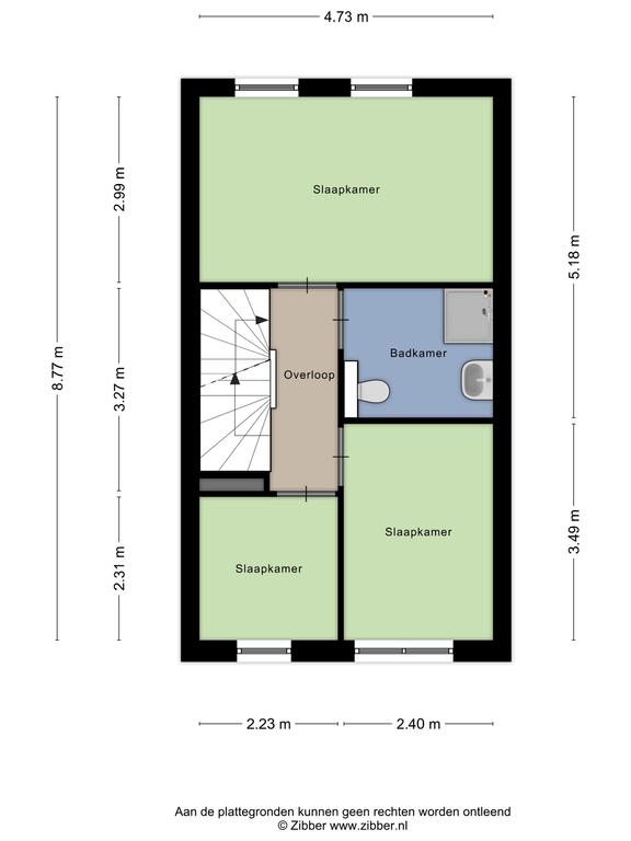
Vanuit de trap in de woonkamer is de eerste verdieping bereikbaar. De eerste verdieping bestaat uit drie slaapkamers en een badkamer. Aan de achterzijde van de woning bevindt zich de hoofdslaapkamer. Deze ruime slaapkamer is voorzien van een raampartij en een radiator. Deze kamer biedt meer dan voldoende ruimte voor een tweepersoonsbed en ruime kledingkast. Aan de voorzijde van de woning zitten nog twee slaapkamers, welke ideale kinderkamers, kastenkamers of thuiswerkplekken zijn. Deze kamers hebben ieder ook een raampartij en radiatoren. De badkamer is voorzien van vloerverwarming, een radiator voor bijverwarming, een douche, toilet en wastafel. De badkamer is volledig betegeld in lichte kleurstelling.

Tweede verdieping:
De riante zolder heeft door de mooie puntgevel een raampartij aan de voorzijde. Mogelijkheid voor het maken van 2 slaapkamers. De wasmachine en droger aansluitingen bevinden zich ook op de zolder in de afgesloten ruimte. Evenals de omvormer voor de 5 zonnepanelen die op het dak liggen.

Tuin:
De diepe achtertuin is gelegen op het zuidoosten. De diepe achtertuin is grotendeels voorzien van gras met een looppad naar de poort. Achterin de tuin bevindt zich de houten berging. Welke ideaal is voor de opslag van fietsen.

Bijzonderheden
- Bouwjaar: 2017
- Gebruiksoppervlakte wonen: circa 111 m2
- Inhoud: circa 392 m3
- Perceeloppervlakte: circa 169 m2 moet nog kadastraal gesplitst worden
- Energielabel A;
- Volledig geïsoleerd;
- Voorzien van 5 zonnepanelen;
- Aanvaarding kan op korte termijn;
- Het perceel dient nog kadastraal gesplitst te worden voor rekening koper.

Bij een verkoop wordt als basis gebruik gemaakt van het model van de koopovereenkomst, vastgesteld door de Nederlandse Vereniging van Makelaars in onroerende goederen NVM, de Consumentenbond en de Vereniging Eigen Huis. In deze koopovereenkomst wordt standaard de verplichting tot het storten van een waarborgsom of het stellen van een bankgarantie door de koper ter grootte van 10% van de koopsom opgenomen.

Een koopovereenkomst komt tot stand onder de opschortende voorwaarde dat beide partijen de koopovereenkomst ondertekenen. Partijen kunnen derhalve noch aan een mondelinge overeenkomst, noch aan een schriftelijke bevestiging daarvan, rechten ontlenen.
Type woning:
Woonhuis
Soort woning
Eengezinswoning
Type woning
Tussenwoning
Beschikbaarheid
Verkocht
Vraagprijs
€ 369.000
Koopconditie
Kosten koper
Aanvaarding
In overleg
Inhoud
391 m3
Perceel
169 m2
Woonoppervlakte
111 m2
Aantal kamers
4
Aantal slaapkamers
3
Externe bergruimte
6 m2
Gebouwgebonden buitenruimte
2 m2
Bouwjaar
2017
Energielabel
A

Wilt u graag een volledige brochure ontvangen? Vul dan uw naam en emailadres in en we sturen u direct door naar de brochure.

Meer informatie over deze woning of een bezichtiging plannen?

Neem dan contact op met één van onze makelaars via 013 580 20 70 of stuur een mail naar info@gerritsemakelaardij.nl.