Aan de rand van Moergestel (gemeente Oisterwijk) in een fraaie villawijk gelegen royaal landhuis met garage en rondom een prachtig aangelegde privacy biedende zonnige tuin. Achter de gevel ontvouwt zich een echt familiehuis met karakter en een fantastische uitstraling met grote raampartijen kijkend over de heerlijke tuinen rondom.
Zowel het centrum van Moergestel als Oisterwijk bevinden zich op korte afstand; hier vindt u diverse winkels, restaurants en gezellige terrasjes. De bossen en vennen bevinden zich op loop- en fietsafstand.
Ook scholen en sportaccommodaties liggen in de directe nabijheid. Moergestel heeft een centrale ligging ten opzichte Tilburg, Breda en Eindhoven; de uitvalswegen naar de A58 evenals Eindhoven Airport zijn snel bereikbaar.
Bouwjaar: ca. 1963
Inhoud: ca. 1.200 m³
Woonoppervlakte: ca. 320 m²
Overige inpandige ruimte: ca. 4 m²
Gebouw gebonden buitenruimte: ca. 80 m²
Externe bergruimte: ca. 25 m²
Perceeloppervlakte: 2.916 m²
Verwarming : C.V.-ketel (Remeha, ca. 2017), de gehele woning beschikt over vloerverwarming
Warm water: boiler
Isolatie: vrijwel de gehele woning beschikt over aluminium kozijnen met HR ++ beglazing
Energielabel E: bij het isoleren van de spouwmuur en het dak kan dit aangepast worden naar label C
Zonnepanelen: de woning beschikt over 28 zonnepanelen.
Alarm: Chubb
ALGEMENE INFORMATIE
• Een heerlijk familiehuis: vier slaapkamers en twee badkamers;
• Een prachtig perceel van 2.916 m²;
• Goed volume met veel mogelijkheden;
• Verzorgd aangelegde parkachtige tuin;
• Graag nodigen wij serieuze gegadigden uit voor een bezichtiging.
Indeling begane grond
Royale entree/hal met garderobe en toilet alsmede toegang naar de woonkeuken, de woonkamer en via een trap naar de eerste verdieping. De L-vormige woonkamer is een ware eyecatcher! Met een plafondhoogte van ca. 2.70m¹, een vloeroppervlakte van globaal 75m² en een open haard kunt u rustig spreken van een geweldige ruimte en dat met vol zicht over de rondom de woning gelegen tuin. De woonkamer biedt via een hal met vaste kasten alsmede een badkamer toegang tot de hoofdslaapkamer. De badkamer is voorzien van een ligbad, wastafel, douche in cabine, een separaat toilet en werd volledig betegeld. De enorme hoofdslaapkamer met inloopgarderobe beschikt over een aluminium schuifpui (2007) voorzien van HR ++ beglazing welke toegang én uitzicht biedt over de prachtige achtertuin.
De woonkeuken is bereikbaar via de hal en beschikt over een keukengedeelte, eetgedeelte en een zitgedeelte annex speelkamer. De keuken beschikt over een keukenblok met inbouwapparatuur. Aansluitend bijkeuken met wastafel, vaste kasten en opstelling wasmachine en droger. Separaat, modern toilet. Achter de bijkeuken treft u nog een werk-/hobbykamer met opstelling meterkast (modern en uitgebreid) én een grote bergkast.
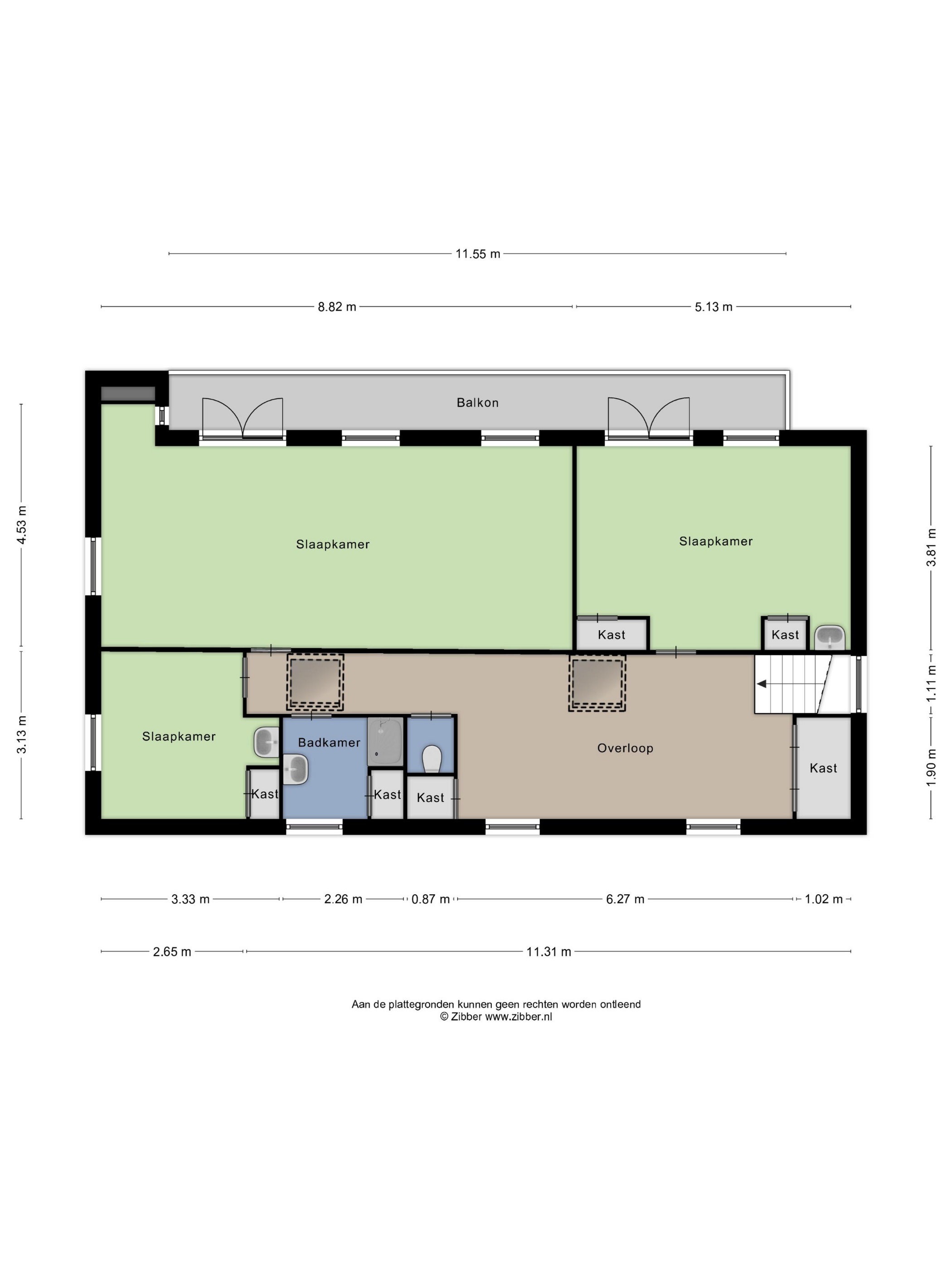
Eerste verdieping
Overloop met diverse vaste kasten en toegang tot alle vertrekken, te weten drie slaapkamers, een badkamer en een separaat toilet. De overloop is erg royaal wat met name komt omdat hier vroeger een vierde slaapkamer aanwezig was. De eerste slaapkamer beschikt over een wastafel en twee vaste kasten en biedt toegang tot een balkon. De tweede prachtige slaapkamer, in gebruik als werkkamer, bestond vroeger uit twee kamers die samengevoegd werden en biedt eveneens toegang tot het balkon. Tot slot een derde kleinere kamer met vaste kast en wastafel. De badkamer beschikt over een zitbad, wastafel en een stortkoker ten behoeve van de was.
Tuin
Een prachtige parkachtige tuin rondom de woning bestaande uit gazon, vijverpartij, buxushagen, pergola met paarse en witte regen alsmede diverse gezellige buitenterrassen met buitenverlichting. Een elektrisch bedienbare poort met oprit biedt toegang tot de garage en de carport.
                         
                        
                            
                                                            
                                
                                    
                                        Type woning
                                    
                                    
                                        Vrijstaande woning                                    
                                 
                            
                            
                                                            
                                
                                    
                                        Koopconditie
                                    
                                    
                                        Kosten koper                                    
                                 
                            
                            
                            
                                                            
                                                                                        
                            
                            
                            
                                                            
                            
                                                            
                                    
                                        Gebouwgebonden buitenruimte
                                    
                                    
                                        81 m2
                                    
                                 
                            
                                                            
                                    
                                        Overig inpandige ruimte
                                    
                                    
                                        4 m2
                                    
                                 
                            
                            
                                                            
                                                     
                        
                        
                        
                                                                                                Wilt u graag een volledige brochure ontvangen? Vul dan uw naam en emailadres in en we sturen u direct door naar de brochure.