listing_gallery

Verkocht
Vraagprijs € 695.000

Boerhaavestraat 86

Tilburg
  • 5 slaapkamers
  • 173 Woonoppervlakte
  • 125 m2
Op één van de meest gewilde locaties middenin de statige wijk Hoogvenne treft u dit volledig gemoderniseerd vooroorlogs herenhuis met sfeervolle stadstuin. Op loopafstand van het stadscentrum, de Piushaven en de Spoorzone maar ook nabij de uitvalswegen en het prachtige Moerenburg gelegen! Het woonhuis is in 2018 en 2021 vrijwel volledig gerenoveerd, uitgebouwd aan de achterzijde en verkeert in absolute nieuwstaat!

Indeling begane grond

Entree/hal voorzien van granieten vloer en fraaie voordeur met glas-in-lood (in dubbel glas). Fraaie trapopgang, gemoderniseerde meterkast met bergruimte en toilet (hangcloset) met fontein. Via de hal toegang tot zowel de woonkamer en-suite als de woonkeuken. De woonkamer en-suite heeft een sfeervol zitgedeelte aan de voorzijde en en-suite deuren naar een tweede speel-zitkamer met aansluitend de eetkamer (met openslaande tuindeuren) die deel uitmaakt van de fraaie en gezellige woonkeuken. Het geheel voorzien van een prachtige visgraat parketvloer. De keuken (Bulthaup) zelf bestaat uit een spoeleiland en een keukenblok en beschikt over de navolgende inbouwapparatuur: 5 pits gaskookplaat, afzuigkap, oven, koelkast en vriezer. Het spoeleiland beschikt over een vaatwasser. Diverse loze leidingen ten behoeve van eventuele wijzigingen en/of uitbreidingen (Bijv. een Quooker of een inductiekookplaat). Veel bergruimte. Aansluitend de bijkeuken met uitstortgootsteen en vaste kastenwand met opstelling wasmachine en droger alsmede de CV combiketel (Remeha, 2018). Het betreft een hybride ketel dus klaar voor de toekomst!

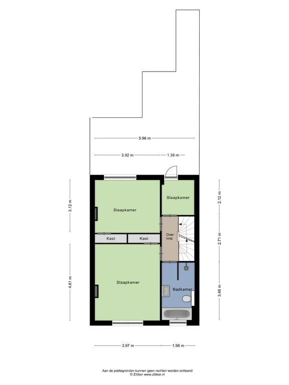
Eerste verdieping

Overloop met toegang tot drie slaapkamers. Twee grote slaapkamers met vaste kast en een kleinere (kasten-) kamer met toegang naar plat dak. Gehele verdieping voorzien van eikenhouten vloer. Tot slot een fraaie badkamer voorzien van inloop-/regendouche, ligbad, designwastafel met lades, decorradiator en plafond met inbouw spots.

Tweede verdieping

Via vaste trap bereikbaar. Volwaardige verdieping met overloop voorzien van separaat toilet (hangcloset) met opstelling mechanische ventilatie (achter het toilet keurig weggewerkt) ten behoeve van natte ruimtes. Verder beschikt de overloop over een airco met groot vermogen welke ruim voldoende is voor de gehele verdieping. Hoofdslaapkamer voorzien van laminaatvloer en TV aansluiting en tweede grote slaapkamer voorzien van laminaatvloer. Tweede badkamer voorzien van inloop-/regendouche, dubbele designwastafel met lades, radiator en plafond met inbouwspots. Kenmerkend ook op deze verdieping de prachtige spanten die in 't zicht zijn gebleven!

Tuin

Sfeervolle achtertuin met terras voorzien van bestrating, buitenkraan en schuur ten behoeve van kliko's en fietsen. Het achterste gedeelte van de tuin bestaande uit gazon is in bruikleen van de woningbouwvereniging Wonenbreburg. De nieuwe eigenaar dient zelf een verzoek in te dienen om deze bruikleenovereenkomst voort te mogen zetten tegen de vergoeding welke momenteel 250 euro per jaar bedraagt.

Algemeen:

De complete renovatie bestond onder andere uit:

* Vervangen eerste verdiepingsvloer en renovatie tweede verdiepingsvloer;
* Volledig vervangen elektrische installatie, riolering en waterleidingen;
* Geïsoleerde gevels bijkeuken;
* Volledige nieuwe platte daken voorzien geïsoleerd (warm) dak inclusief daktrim, goten etc.;
* Gehele woning voorzien van nieuwe raamdelen met dubbele beglazing;
* Nieuwe CV installatie, hybride CV combiketel;
* Gehele woning voorzien van stucwerk wanden en plafonds en buitenzijde in 2021 geschilderd.
Type woning:
Woonhuis
Soort woning
Eengezinswoning
Type woning
Tussenwoning
Beschikbaarheid
Verkocht
Vraagprijs
€ 695.000
Koopconditie
Kosten koper
Aanvaarding
In overleg
Inhoud
621 m3
Perceel
125 m2
Woonoppervlakte
173 m2
Aantal kamers
6
Aantal slaapkamers
5
Overig inpandige ruimte
4 m2
Bouwjaar
1927
Energielabel
B

Wilt u graag een volledige brochure ontvangen? Vul dan uw naam en emailadres in en we sturen u direct door naar de brochure.

Meer informatie over deze woning of een bezichtiging plannen?

Neem dan contact op met één van onze makelaars via 013 580 20 70 of stuur een mail naar info@gerritsemakelaardij.nl.