listing_gallery

Verkocht
Vraagprijs € 645.000

Bredaseweg 345

Tilburg
  • 4 slaapkamers
  • 138 Woonoppervlakte
  • 252 m2
Wilt u dichtbij het centrum wonen aan één van de mooiste straten die Tilburg rijk is? Dan is deze woning echt een must see voor u! Deze charmante, karakteristieke en instapklare twee-onder-een kap woning met voor- en achtertuin heeft parkeergelegenheid voor twee auto’s op eigen (afgesloten) terrein én is ook nog eens goed onderhouden!

Indeling begane grond
Vestibule met glas-in-lood (voordeur en klapdeur) en toegang hal met prachtige bordestrap voorzien van enorme lichtinval door groot raam ter plaatse van het bordes. De hal is voorzien van een travertin vloer en een toilet met fontein (2017). Sfeervolle woonkamer voorzien van hoogwaardige laminaatvloer (2018) en ook hier weer glas-in-lood ramen (in dubbel glas). Half open gezellige keuken voorzien van prachtig (n 2023 vernieuwd) keukenblok met inbouwapparatuur te weten: inductie kookplaat met ingebouwde afzuigunit, combi oven/magnetron, royale koelkast, separate vriezer en een vaatwasser. Loopdeur naar terras/achtertuin. Toegang tot kelder met opstelling moderne meterkast, aansluiting wasmachine en droger CV combiketel (Remeha, 2010), omvormer zonnepanelen en hybride warmtepomp (2023).

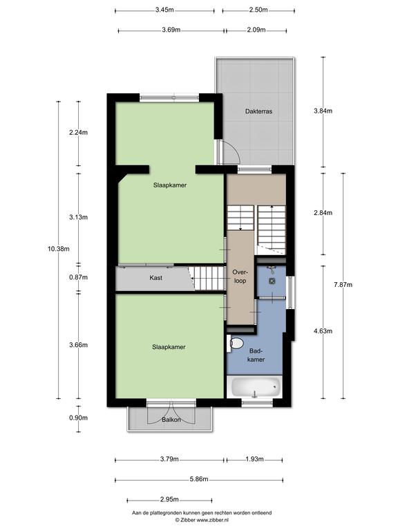
1e Verdieping
Prachtige slaapkamer aan de voorzijde voorzien van laminaatvloer met balkondeuren voorzien van glas-in-lood toegang biedend tot het balkon met fraai zicht op de Bredaseweg. Royale, uitgebouwde hoofdslaapkamer aan de achterzijde met loopdeur naar een rustig privé dakterras waar het in de zomer vlak voor het slapen gaan nog heerlijk toeven is! Verder is de hoofdslaapkamer voorzien van een vaste kastenwand, mechanische ventilatie en tv aansluiting. Moderne badkamer in stijl van het huis voorzien van ligbad, inloop-regendouche, zwevend toilet, verwarmde spiegel met wastafel en designradiator. Een houten draai-kiep raam met glas-in-lood, plafonds met inbouwspots en mechanische ventilatie maken het geheel compleet. De badkamer is in 2020 grotendeels vernieuwd waarbij met name de vloer, het tegelwerk en het ligbad vervangen werden.

2e verdieping
Via vaste trap bereikbaar waarbij u meteen de derde slaapkamer inloopt, deze ruimte is natuurlijk ook te gebruiken als werkruimte en/of zolderberging. Vaste kasten met veel bergruimte. Toegang tot vierde slaapkamer met opstelling mechanische ventilatie unit en bergruimte. Gehele verdieping voorzien van laminaatvloer.

Tuin
Voortuin met oprit ten behoeve van twee auto's bereikbaar middels een elektrisch bedienbaar hekwerk. Fietsenstalling in hout en via poort toegang tot de voordeur en een op het zuiden gelegen terras. Verder een buitenkraan en veel groen ter beschutting. Achtertuin met terras en een houten schutting. Aan de buitenzijde werd de muur bij de keuken geïsoleerd en bekleed met hout waardoor er een goede sfeer gecreëerd werd. De tuin werd verder bestraat en is voorzien van elektra en beschikt over een achterom en een berging en buitenkraan. Het verhoogde terras beschikt over een glazen overkapping (2019) waar het goed toeven is!

Algemeen
• Goten vernieuwd in 2020 en schilderwerk buiten uitgevoerd in 2022;
• Houten kozijnen met dubbele beglazing, grotendeels HR ++;
• Mechanische ventilatie in 2018 geïnstalleerd in slaapkamers en woonkamer;
• Voorbereiding alarm aanwezig;
• Nokvorsten in 2017 vastgezet met cementrol;
• Vloer,- en dakisolatie, dubbele beglazing én de zonnepanelen in combinatie met de hybride warmtepomp zorgen voor energielabel B (geldig tot 2033);
• Stucwerk wanden en plafonds begane grond en eerste verdieping;
• Kortom: erg goed onderhouden buitengewoon sfeervolle woning op een heerlijke locatie!
Type woning:
Woonhuis
Soort woning
Eengezinswoning
Type woning
Twee onder een kapwoning
Beschikbaarheid
Verkocht
Vraagprijs
€ 645.000
Koopconditie
Kosten koper
Aanvaarding
In overleg
Inhoud
577 m3
Perceel
252 m2
Woonoppervlakte
138 m2
Aantal kamers
5
Aantal slaapkamers
4
Externe bergruimte
5 m2
Gebouwgebonden buitenruimte
12 m2
Overig inpandige ruimte
6 m2
Bouwjaar
1928
Energielabel
B

Wilt u graag een volledige brochure ontvangen? Vul dan uw naam en emailadres in en we sturen u direct door naar de brochure.

Meer informatie over deze woning of een bezichtiging plannen?

Neem dan contact op met één van onze makelaars via 013 580 20 70 of stuur een mail naar info@gerritsemakelaardij.nl.