listing_gallery

Verkocht
Vraagprijs € 1.195.000

Bredaseweg 436

Tilburg
  • 5 slaapkamers
  • 293 Woonoppervlakte
  • 1192 m2
Aan één van de mooiste straten van Tilburg, aan de rand van de geliefde wijk Zorgvlied gelegen karakteristieke half vrijstaande gemoderniseerde stadsvilla met fraai aangelegde tuinen, parkeerplaatsen op eigen perceel, een garage en 12 zonnepanelen.

Deze vooroorlogse halfvrijstaande villa uit 1930 is onder architectuur van Hanrath gebouwd en beschikt over diverse originele klassieke elementen. Deze uitstraling is met de recente renovaties behouden en zorgt voor een warme en prettige woonsfeer. Het totale woonoppervlak is maar liefst 293 m2 . De woning is ruim van opzet en heeft heerlijke leefruimten op de begane grond (ca. 130 m2 ), 5 kamers op de verdiepingen en maar liefst 3 badkamers. Een sfeervolle, karakteristieke vooroorlogse woning met een klassieke en warme uitstraling. Een heerlijk gezinshuis met veel ruimte aan een brede groene laan op een toplocatie.


De kenmerken van de stadsvilla

De villa heeft een bijzondere architectuur met een fraai gevormde kap, die de woning haar kenmerkende uitstraling geeft. In het oog springen de ruimtelijkheid en detailleringen, typerend voor de jaren ‘30. Een ruime trapopgang met tussenbordessen, mooie raampartijen, erkers, schuifdeuren en hoge plafonds zijn hiervan voorbeelden.

De fijne woonwijk Zorgvlied

De woning is aan de Bredaseweg gelegen, aan de rand van de wijk Zorgvlied. Zorgvlied is een gezellige wijk met historie en sfeer, ruim van opzet met brede lanen en veel groen. De ligging is ideaal; dicht bij het stadscentrum, treinstation, de universiteit, winkels, sportverenigingen en overige voorzieningen. Ook het Warandebos ligt om de hoek. Met uw auto bent u zo bij de uitvalswegen naar Eindhoven, Breda en 's-Hertogenbosch. Wonen in Zorgvlied is wonen in stad met alle voorzieningen en de natuur in de directe nabijheid.


Indeling

Begane grond

Originele entree met vestibule en brievenbus en toiletruimte v.v. zwevend toilet en wastafelmeubel. Hal met trapopgang, toegang naar ruime provisie/wijnkelder (stahoogte) en naar de keuken met eetkamer, de centrale ruimte van de woning.
De schuifdeuren (met vaste kasten ombouw) in de keuken geven toegang tot de aan de voorzijde gelegen woonkamer. Deze woonkamer heeft klassieke erkerpartijen met een leuke op maat gemaakte zitbank met opbergruimte en een open houthaard. De keuken is ingericht met een op maat ontworpen keukeninrichting, bestaande uit een kookeiland en een kastenwand met inbouwapparaten. Het kookeiland is voorzien van 1 ½ spoelbak met Grohe heet waterkraan, 5-pits inductie kookplaat (met afzuigkap in het plafond), lades met bovenlades, vaatwasser en wijnkoelkast. In de kastenwand is veel opbergruimte. Ook bevindt zich hier een grote koelkast, koffiemachine en combi-magnetron.

De keuken geeft met openslaande dubbele deuren toegang tot het grote terras en staat in verbinding met de eetkamer. Deze sfeervolle kamer biedt ruimte voor een grote eettafel bij de gezellige gashaard en is zonder meer de belangrijkste samenzijnplek in de woning. De glazen pui met harmonicadeuren geeft veel lichtinval en fijn contact met het terras en de tuin. Aansluitend ligt een berging met een kastenwand en deur naar de achtertuin.

Verdiepingen

De verdiepingen van de villa zijn, net als de begane grond, zeer royaal van opzet en worden bereikt met een fraaie trapopgang met bordessen.


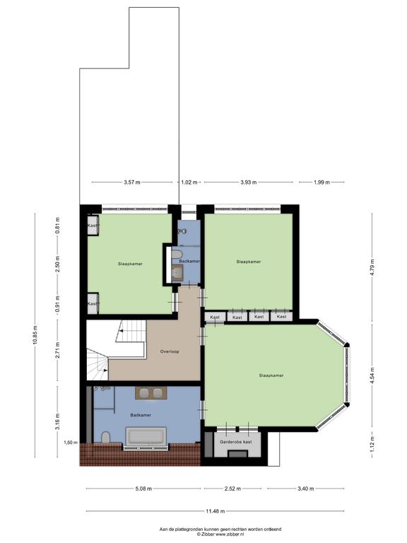
Eerste verdieping

De ouderslaapkamer (ca. 25 m²) met eigen badkamer ligt aan de voorzijde van de woning. De kamer heeft vaste kasten en biedt toegang tot de badkamer – met dakkapel. De badkamer is ingericht met een ruim ligbad, inloopdouche, vrijhangend toilet en dubbele wastafel. Slaapkamer 2 (ca. 16 m²) ligt aan de achterzijde en heeft twee vaste kasten en een deur naar het plat dak van de achterbouw (v.v. 12 zonnepanelen). Slaapkamer 3 (ca. 18 m²) ligt ook aan de achterzijde en heeft drie vaste kasten. Tussen slaapkamer 2 en 3 ligt de tweede badkamer met een wastafel, inloopdouche en zwevend toilet. Beide badkamers hebben vloerverwarming.

Trapopgang naar de 2e verdieping.

Tweede verdieping
Deze verdieping is in 2022 onder begeleiding van Hawee Bouw verbouwd tot een fijne slaap/werkverdieping. Er zijn twee ruime kamers, waarvan één met eigen badkamer. Verder zijn er op maat gemaakte kasten van Studio Hout, een wasruimte en een bergruimte.

De fraaie onder de bijzondere kap gelegen hoekkamer is momenteel in gebruik als kantoor-en logeerruimte en heeft vijf dakramen en vaste kasten. De tweede kamer ligt aan de achterzijde. Deze heeft een dakkapel, op maat gemaakte kasten en een eigen badkamer met inloopdouche, zwevend toilet, wastafelmeubel en mechanische ventilatie.

De overloop heeft een dakkapel, hoge kasten en geeft toegang tot een berging met opstelling c.v.-ketel, boiler en mechanische ventilatie-unit. Verder is er een washoek met plek voor wasmachine en droger. Een trap geeft toegang tot een kleine vliering met handige bergruimte.

Kelders

Vanuit de hal zijn de kelders te bereiken. Deze zijn op stahoogte (ca. 190 cm). De meterkast hangt bovenaan de trap. De omvormer voor de zonnepanelen hangt beneden in de eerste kelderruimte. De nis en de tweede kelderruimte zijn perfect voor het opbergen van voorraadboodschappen en andere spullen.

Buiten

De villa heeft een schitterende voor-en achtertuin. Deze zijn in 2023 onder architectuur van PUUR Groenprojecten aangelegd en ingericht met gazon, borders met planten, struiken (o.a. rododendrons), volwassen bomen en terrassen
Er is ieder seizoen veel kleur in de tuin. Voor de kinderen zijn er een subtiel geplaatste schommel en trampoline. De achtertuin is op het zuiden gelegen en is te bereiken via de tuindeuren in de eetkamer, de keuken en de poort. Er zijn voorbereidingen getroffen voor een veranda (met stroompunt) en extra berging/fietsenstalling. De volgroeide bomen zorgen voor groen en privacy.

De garage is bereikbaar via de Frankenlaan en via de achtertuin en is voorzien van elektra, een elektrisch bedienbare roldeur en een loopdeur aan de tuinzijde.

Ook de voortuin is fraai aangelegd en heeft een mooie hoge vlaggenmast. De oprit biedt plaats aan minimaal 3 auto’s. Er is er een aparte hoek voor fietsen. Er zijn voorbereidingen getroffen voor het aanleggen van een laadpunt en een elektrisch bedienbare poort.

De tuinen zijn voorzien van tuinverlichting en een beregeningsinstallatie met sprinklers en druppelslangen. Ze zijn omheind met hekwerk en groen.

Algemeen

• De villa is sinds 2018 gemoderniseerd met behoud van het sfeervolle karakter van de woning.
• De vloeren zijn voorzien van hout, tegels, pvc-laminaat en marmoleum. De begane grond en badkamers 1e verdieping hebben vloerverwarming.
• De wanden en plafonds zijn afgewerkt met stucwerk.
• De woning is voorzien van spouwmuurisolatie, vloerisolatie op de begane grond en dakisolatie en van HR-glas en 12 zonnepanelen. De woning heeft energielabel D.
• Het dak is in 2018 vernieuwd.
• De woning wordt verwarmd middels een cv-ketel, radiatoren, vloerverwarming, een gashaard en een houthaard.
• De warmwatervoorziening bestaat uit een boiler en heetwaterkraan.
• Uitgebreide groepenkast en elke slaapkamer heeft een aansluiting voor kabelinternet
• Met KIWA-certificaat verwijderde olietank.
• In de koopovereenkomst worden een asbest-en ouderdomsclausule opgenomen.
• Aanvaarding in overleg.
Type woning:
Woonhuis
Soort woning
Herenhuis
Type woning
Twee onder een kapwoning
Beschikbaarheid
Verkocht
Vraagprijs
€ 1.195.000
Koopconditie
Kosten koper
Aanvaarding
In overleg
Inhoud
1176 m3
Perceel
1192 m2
Woonoppervlakte
293 m2
Aantal kamers
6
Aantal slaapkamers
5
Externe bergruimte
19 m2
Gebouwgebonden buitenruimte
13 m2
Overig inpandige ruimte
34 m2
Bouwjaar
1930
Energielabel
D

Wilt u graag een volledige brochure ontvangen? Vul dan uw naam en emailadres in en we sturen u direct door naar de brochure.

Meer informatie over deze woning of een bezichtiging plannen?

Neem dan contact op met één van onze makelaars via 013 580 20 70 of stuur een mail naar info@gerritsemakelaardij.nl.