In de geliefde woonwijk Zorgvlied gelegen karakteristieke vrijstaande stadsvilla met fraai aangelegde tuin op het westen, berging en parkeermogelijkheid op eigen perceel. Deze sfeervolle woning op toplocatie heeft een bijzondere architectuur met mooie details.
De fijne woonwijk Zorgvlied
De woning is op een mooie locatie in wijk Zorgvlied gelegen, een wijk met historie en sfeer, ruim van opzet met brede lanen en veel groen. De straten zijn recentelijk vernieuwd; er zijn weer klinkers en brede stoepen met veel groenvakken. De ligging is ideaal; dicht bij het stadscentrum, treinstation, de universiteit, winkels en overige voorzieningen. Ook het Warande bos is te voet goed bereikbaar. Met uw auto bent u zo bij de uitvalswegen naar Eindhoven, Breda en 's-Hertogenbosch. Wonen in de stad met alle voorzieningen en de natuur in de directe nabijheid.
Historie van de woning
De woning is in 1938 gebouwd in opdracht van de heer B. van Eerd. In de directe nabijheid van de woning en rond het nabijgelegen pleintje is de oorspronkelijke opzet van de wijk- individuele vrijstaande villa’s- het best behouden.
De kenmerken van de stadsvilla
De villa heeft een bijzondere architectuur. Kenmerkend zijn verder mooie detailleringen, typerend voor de 30-er jaren: een fraaie entree en trapopgang, erkers, balkons, paneel-en schuifdeuren, glas-in-lood en verdiept voegewerk.
Begane grond
Overdekte entree met originele voordeur. Hal met een zeer fraai trappenhuis (originele raampartij met glas-in-lood). Toiletruimte met fonteintje. Vaste kast met gas-en electrameter. Woonkamer en suite bestaande uit een voorkamer met fraaie erker en openslaande deuren naar de naast de woning gelegen oprit. Middels glas-in-lood schuifdeuren met vaste kasten ombouw- toegang naar de achterkamer met openslaande deuren naar het overdekte terras (met verwarming) en de achtertuin. Aansluitend is er een tuinkamer met eveneens openslaande deuren.
De keuken heeft groen uitzicht op het naast de woning gelegen tuinpad en is ingericht met een L-vormig keukeninterieur v.v. 1 1/2 spoelbak, quooker, 5-pits gaskookplaat met wokbrander, afzuigkap, koelkast, magnetron, oven/grill, vaatwasser. De achtergelegen bijkeuken heeft aan/afvoer wasmachine en een deur naar het naast de woning gelegen pad..
Verdiepingen
De verdiepingen van de villa worden bereikt middels een fraaie trapopgang met bordessen.
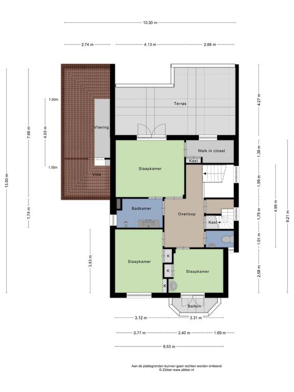
Eerste verdieping
De ouderslaapkamer met directe toegang naar de garderobekamer is aan de achterzijde van de woning gelegen, heeft een vaste kast, deur naar de badkamer en openslaande deuren naar het ruime, zonnige terras.
Slaapkamer 2 is aan de voorzijde gelegen en heeft een vaste kast.. Slaapkamer 3 (ca.8 m2) is eveneens aan de voorzijde achterzijde gelegen en heeft een vaste kast, wastafel en deuren naar het balkon. Beide kamers hebben mooi uitzicht over de straat.
De badkamer (in 2024 gemoderniseerd) heeft een inloopdouche, wastafelmeubel met spiegelkast, designradiator en is voorzien van vloerverwarming. Overloop met toiletruimte v.v. fontein, vaste kast en trapopgang met tussenbordes naar de tweede verdieping.
Tweede verdieping
Hier bevinden zich 2 sfeervolle kamers; kamer 1 ligt aan de achterzijde, heeft een wastafel en 2 dakkapellen. Kamer 2 ligt aan de voorzijde, heeft een wastafel, kast en dakkapel en dakraam. Overloop met douchecabine en warmwaterboiler.
Kelders
Vanuit de keuken zijn de kelders te bereiken. Deze kelders zijn op stahoogte (ca. 2 meter) en zijn in gebruik als wijnkelder en stookkelder (c.v.-combiketel Tegro, 2008 ).
Buiten
De tuin en paden rondom de woning zijn fraai aangelegd. In de zonnige, groene achtertuin kunt u de hele dag genieten van de zon en ook schaduwplekken opzoeken. De tuin is ingericht met gazon, struiken (vlinderstruik en rozen) en plantenborders, waaronder hortensia’s. Er is altijd kleur in de tuin. Een heerlijke plek is het middels de tuindeuren in de woonkamer te bereiken overdekte en verwarmde terras. Van het voorjaar tot het najaar is dit een fijne buitenruimte.
Naast de woning is de oprit naar de berging (voormalige garage) gelegen. Hier zijn parkeermogelijkheden voor uw auto. Via het naast de woning gelegen tuinpad en een poort is de achtertuin te bereiken.
De berging heeft openslaande deuren en een vliering.
Algemeen
• Sfeervolle stadsvilla is met veel authentieke elementen.
• De vloeren zijn voorzien van klassiek parket, tegels en tapijt.
• De wanden zijn afgewerkt met stucwerk, spachtelputz, behang en tegels. Grotendeels originele plafonds.
• Energielabel G (label geldig tot 1-2-2035).
• De woning gedeeltelijk voorzien van dubbel glas en voorzetramen.
• De verwarming van de woning geschiedt middels c.v.combiketel en radiatoren.
• De warmwatervoorziening geschiedt via een combiketel en quooker.
• Met KIWA-certificaat verwijderde olietank.
• In de koopovereenkomst worden een asbest-en ouderdomsclausule opgenomen.
• Er is een bouwtechnisch rapport ter inzage.                        
                        
                            
                                                            
                                
                                    
                                        Type woning
                                    
                                    
                                        Vrijstaande woning                                    
                                 
                            
                            
                                                            
                                
                                    
                                        Koopconditie
                                    
                                    
                                        Kosten koper                                    
                                 
                            
                            
                            
                                                            
                                                                                        
                            
                            
                            
                            
                                                            
                                    
                                        Gebouwgebonden buitenruimte
                                    
                                    
                                        35 m2
                                    
                                 
                            
                                                            
                                    
                                        Overig inpandige ruimte
                                    
                                    
                                        23 m2
                                    
                                 
                            
                            
                                                            
                                                     
                        
                        
                        
                                                                                                Wilt u graag een volledige brochure ontvangen? Vul dan uw naam en emailadres in en we sturen u direct door naar de brochure.