Op uitstekende locatie in de Blaak gelegen, grenzend aan schitterend natuurgebied, royale en luxe half vrijstaande woning met extra ruime garage/berging en prachtige tuin rondom.
Dit sfeervolle huis is in zijn geheel smaakvol gerenoveerd en voldoet dan ook aan veel eisen van de hedendaagse koper.
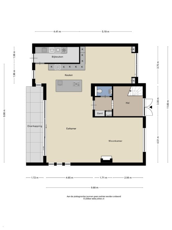
Indeling begane grond
Royale entree/hal met trappartij (recentelijk vernieuwd) en vide, garderobe nis, vernieuwde meterkast en toiletruimte voorzien van vrij hangend closet en fontein. Toegang tot de ruime living, luxe keuken en werk-/speelkamer via een prachtige nieuwe dikke stalen tussendeur. De begane grond is voorzien van een doorlopende massief eiken hoogkant (industriële) vloer welke werd opgeschuurd en voorzien van grey wash. De living is voorzien van een strakke schouw met daarin een open haard. Een maatwerk tv meubel rondom de openhaard completeert het geheel. Middels een schuifpui heeft men toegang tot het overdekte terras. Deze schuifpui werd in 2019 vergroot en compleet vernieuwd wat voor meer lichtinval en isolatie zorgt. De moderne luxe keuken met eetbar is voorzien van een koelkast (2021), 5 pits gaskookplaat, composiet aanrechtblad, oven/magnetron (2021), vaatwasser en volop kastruimte. Aan de voorzijde gelegen kantoor,- speelkamer voorzien van schuifpui en kastruimte. De bijkeuken is geheel betegeld . Hier treft u tevens de aansluiting ten behoeve van de was apparatuur en een keukenblok.
Eerste verdieping
Grote overloop met vide. Op de verdieping treft u drie ruime slaapkamers en een luxe badkamer. De twee kinderkamers zijn royaal van opzet en beschikken beide over stucwerk wanden en plafonds, inbouwspotjes met dimmers, tv en internet aansluiting en voldoende kastruimte. De hoofdslaapkamer is werkelijk een plaatje. De kamer heeft toegang tot het balkon (vernieuwd in 2019) en vanuit de slaapkamer loopt u direct in de aangrenzende kledingkamer met veel kasten en opbergruimte. Op de schitterende badkamer treft u een inloop/regendouche, ligbad en design wastafels met onderkastjes en een toilet. De badkamer is voorzien van een moderne kiezelvloer met vloerverwarming.
Tweede verdieping
Via vlizotrap op overloop bereikbare ruime bergzolder met opstelling CV combiketel uit 2019.
Tuin / Garage
Fraai aangelegde tuin rondom de woning. Strak en modern vormgegeven. Aan de zijkant oprit voor meerdere auto’s en toegang tot de in 2007 gebouwde extra grote, hoge garage welke in spouw werd opgetrokken. Tevens beschikt de garage over een aansluiting voor verwarming, elektra en een elektrische roldeur. De fraai en compleet nieuw aangelegde achtertuin is op het zuidwesten gelegen en heeft een prachtig overdekt terras.
Algemeen:
• Alle kozijnen zijn uitgevoerd in hardhout en voorzien van dubbele beglazing;
• Alle ramen zijn voorzien van horren. Het raam van de grote slaapkamer is voorzien van een rolluik.
• Schilderwerk binnen en buiten recentelijk uitgevoerd;
• Voldoende parkeerplaatsen voor auto’s op eigen terrein;
• Airco zomer 2020, nieuwe verwarming in speelkamer en halletje, nieuw dakraam slaapkamer;
• Verlichting binnen en buiten via domotica en alles op led verlichting in 2021;
• Ter overname: geluidsinstallatie, gordijnen en shutters, tv keuken incl. beugel, alarminstallatie etc.;
• Prachtige woning op unieke locatie!                        
                        
                            
                                                            
                                    
                                        Soort woning
                                    
                                    
                                        Eengezinswoning                                    
                                 
                                
                                    
                                        Type woning
                                    
                                    
                                        Twee onder een kapwoning                                    
                                 
                            
                            
                                                            
                                
                                    
                                        Koopconditie
                                    
                                    
                                        Kosten koper                                    
                                 
                            
                            
                            
                                                            
                                                                                        
                            
                            
                            
                                                            
                            
                                                            
                                    
                                        Gebouwgebonden buitenruimte
                                    
                                    
                                        15 m2
                                    
                                 
                            
                                                            
                                    
                                        Overig inpandige ruimte
                                    
                                    
                                        7 m2
                                    
                                 
                            
                            
                                                     
                        
                        
                        
                                                                                                Wilt u graag een volledige brochure ontvangen? Vul dan uw naam en emailadres in en we sturen u direct door naar de brochure.