listing_gallery

Verkocht
Vraagprijs € 345.000

Jan Aartestraat 60 c

Tilburg
  • 3 slaapkamers
  • 96 Woonoppervlakte
  • 202 m2
In hartje centrum op loopafstand van de Heuvel en de bruisende Piushaven gelegen charmante en uitermate sfeervolle woning met een diepe, pal op het zuiden gelegen achtertuin. De woning is gesitueerd in een rustige straat in de wijk 'Hoogvenne' en biedt alle voordelen van het wonen in het centrum van de stad. Tevens gunstig gelegen ten opzichte van de uitvalwegen, schouwburg, winkels, supermarkt(en) en parkeergelegenheden.

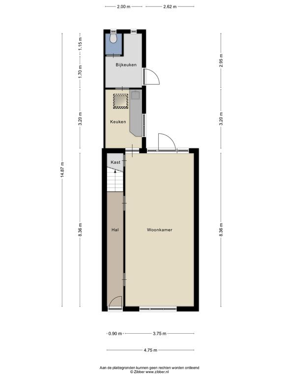
Indeling begane grond

Entree/hal met authentieke tegelvloer en trapopgang. Brede, diepe woonkamer met loopdeur naar de tuin en trapkast. Aansluitend een gezellige keuken voorzien van een net doch eenvoudig keukenblok met inbouwapparatuur te weten: koelkast, oven, afzuigkap, 1 1/2e spoelbak en close-in-boiler. Geheel betegelde bijkeuken met opstelling wasmachine en droger en toegang tot toilet met fontein.

Eerste verdieping

Overloop met deur naar plat dak en toegang tot doucheruimte met wastafel. In totaal zijn er drie slaapkamers. De twee grootste slaapkamers meten ca. 12 m² en beschikken beide over een vaste kast en één slaapkamer ook nog over een wastafel. De kleinste kamer meet ca. 9 m². Via een vaste trap toegang tot de tweede verdieping.

Tweede verdieping

Bergzolder met mogelijkheid voor fraaie vierde slaapkamer. Opstelling van de CV combiketel (Nefit, 2017) en twee dakramen.

Tuin

Diepe achtertuin, pal op het zuiden gelegen. Volop privacy en geheel naar eigen inzicht nog aan te leggen.

Algemeen

* Houten kozijnen met enkel glas
* Modernisering geheel naar eigen inzicht en wensen!
Type woning:
Woonhuis
Soort woning
Eengezinswoning
Type woning
Hoekwoning
Beschikbaarheid
Verkocht
Vraagprijs
€ 345.000
Koopconditie
Kosten koper
Aanvaarding
In overleg
Inhoud
394 m3
Perceel
202 m2
Woonoppervlakte
96 m2
Aantal kamers
4
Aantal slaapkamers
3
Gebouwgebonden buitenruimte
8 m2
Overig inpandige ruimte
12 m2
Bouwjaar
1920
Energielabel
G

Wilt u graag een volledige brochure ontvangen? Vul dan uw naam en emailadres in en we sturen u direct door naar de brochure.

Meer informatie over deze woning of een bezichtiging plannen?

Neem dan contact op met één van onze makelaars via 013 580 20 70 of stuur een mail naar info@gerritsemakelaardij.nl.