Deze perfect afgewerkte jaren '30 woning in de Armhoefse Akkers (Sacramentsparochie) is te koop. Deze woning is gelegen op een van de meest gewilde locaties in deze wijk en is uitermate ruim en in perfecte staat van onderhoud.
Deze typische jaren '30 woning kenmerkt zich door charmante paneeldeuren met architraaf en glas in lood details. Door de jaren heen is de woning flink uitgebouwd op de begane grond waardoor een riante woonkamer en suite met eetgedeelte en zithoek is gerealiseerd. De luxe half open keuken en de vernieuwde luxe badkamer, maken het helemaal af.
INDELING
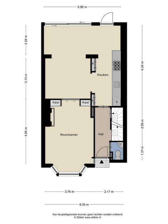
Begane grond
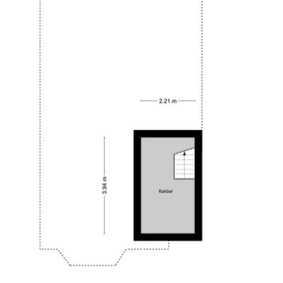
Via de voordeur, voorzien van glas-in-lood raam, betreedt men de hal. Vanuit de hal is de toiletruimte toegankelijk met closet en fonteintje, trapopgang naar 1e verdieping, kelder (op sta hoogte), keuken en woonkamer te betreden. De gehele begane grond is voorzien van een eikenvloer (opgeschuurd in 2019) en geniet veel lichtinval via erker aan voorzijde en schuifpui aan achterzijde. Ook in de woonkamer zijn charmante glas-in-lood details terug te vinden. De woonkamer beschikt verder over een gashaard in schouw, schitterende en suite deuren met open kastenwanden, die de zitkamer en eetkamer op een speelse manier scheiden. De wand- en plafondafwerking op de begane grond, evenals in het merendeel van de woning, is voorzien van stucwerk.
De luxe maatwerk keuken is half open en daardoor in verbinding met de woonkamer. De keuken is geplaatst in een rechte opstelling aan de wand en aan de andere zijde zijn servieskasten aanwezig. De keuken beschikt verder over een riant gasfornuis met dubbele oven van topmerk Borretti, porselein spoelbak en diverse inbouwapparatuur zoals een koelkast en een vaatwasser.
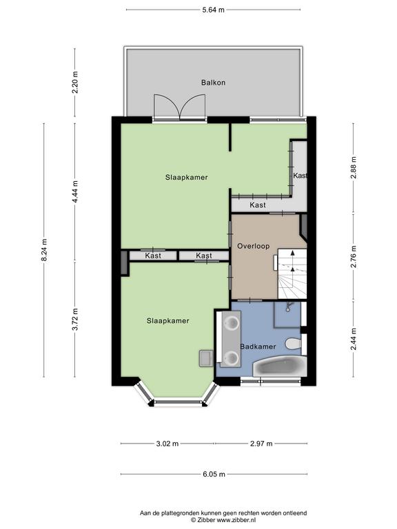
1e verdieping
Via de trapopgang vanuit de hal bereikt men de overloop op de 1e verdieping. Deze biedt toegang tot 2 ruime slaapkamers (voorheen 3), badkamer en trapopgang naar 2e verdieping. De grote slaapkamer aan achterzijde staat in verbinding met de walk-in-closet. Vanuit deze kamer is er toegang tot het zonnige dakterras aan de achterzijde. Royale slaapkamer aan de voorzijde met sfeervolle erker en eigen wastafel. De luxe vernieuwde badkamer (2021) is voorzien van een ruime inloopdouche, ligbad, zwevend toilet en een meubel met dubbele moderne en ronde wastafels tegen een schitterende tegelwand.
2e verdieping
Via vaste trap bereikt men de zeer ruime 2e verdieping, deze is verdeeld in twee grote ruimtes met de mogelijkheid om de indeling te wijzigen. Een grote voorzolder met dakkapel waar momenteel de wasapparatuur en de cv-ketel staat opgesteld en vanuit deze ruimte is de bergzolder middels een vlizo trap bereikbaar. Grote slaapkamer (ca. 18 m2) aan de achterzijde met dakkapel en dakraam. 
Zolder
Via vlizotrap is de zolder te bereiken welke dienst doet als bergruimte.
Tuin
De keurig en net aangelegde achtertuin (2019) is op het zuiden georiënteerd en beschikt over een zonnescherm over de volle breedte, een buitenkraan en een terras aan de woning. Achter in de tuin is een stenen berging aanwezig, voorzien van elektra, met een poort naar de achterom. Zowel de berging als de achtergevel van de woning is voorzien van een houten lamellen betimmering waardoor de tuin een warme uitstraling heeft. In de tuin is aan de achterzijde een tweede terras gelegen dat door middel van de beplating gescheiden wordt van de rest.
Algemeen:
- perfecte staat van onderhoud
- perfecte ligging in gewilde wijk Armhoefse Akkers (Sacramentsparochie)
- voorzien van kunststof kozijnen en een schuifpui aan de achterzijde.
- voorzien van dubbele beglazing
- achtertuin met oriëntatie op het zuiden
- bouwjaar 1931                        
                        
                            
                                                            
                                    
                                        Soort woning
                                    
                                    
                                        Eengezinswoning                                    
                                 
                                
                            
                            
                                                            
                                
                                    
                                        Koopconditie
                                    
                                    
                                        Kosten koper                                    
                                 
                            
                            
                            
                                                            
                                                                                        
                            
                            
                            
                                                            
                            
                                                            
                                    
                                        Gebouwgebonden buitenruimte
                                    
                                    
                                        13 m2
                                    
                                 
                            
                                                            
                                    
                                        Overig inpandige ruimte
                                    
                                    
                                        15 m2
                                    
                                 
                            
                            
                                                            
                                                     
                        
                        
                        
                                                                                                Wilt u graag een volledige brochure ontvangen? Vul dan uw naam en emailadres in en we sturen u direct door naar de brochure.