Uniek appartement met royaal dakterras van maar liefst 48 m2! 
Het hoekappartement is gelegen aan een plein zonder doorgaand verkeer en met een zeer fraai uitzicht over de stad. Dit fijne appartement, type maisonnette, is gelegen in het centrum van Tilburg naast het De Pontmuseum en dichtbij de Spoorzone, het Spoorpark, het centraal Station en de AH XL. Op deze prachtige locatie voel je de historie, het gebouw staat op de plek waar ooit de industrie van De Pont stond.
Parkeren kan in de eigen garage onder het complex of met een parkeervergunning op het terrein naast het complex en alle voorzieningen zijn nabij. 
Complex
Via de centrale entree bereikt u de gemeenschappelijke hal met de lift en trapopgang naar de verdiepingen. De garages zijn vanuit buiten bereikbaar en toegankelijk. 
Indeling appartement 3e verdieping
Het appartement is gelegen op de 3e en 4e verdieping. Middels de entree is de hal bereikbaar. Vanuit de hal zijn alle vertrekken toegankelijk en hier is de trap naar de verdieping aanwezig. 
De royale woonkamer met zeer veel lichtinval is voorzien van een nette laminaatvloer, strakke wanden en grote schuifpui met een frans balkon. 
De open moderne keuken heeft een opstelling in U-vorm met de volgende inbouwapparatuur: vaatwasser (Siemens 2024), oven/magnetron en stoomoven (Miele). Er is een ingebouwd koffiezetapparaat met daaronder een warmhoud lade (Miele) en een ruime koelkast aanwezig. Daarnaast is er veel kastruimte, lades, een Boretti inductie kookplaat en wokpit en de afzuiging gaat via een downdraft afzuigkap.
De ruime bergruimte, bereikbaar vanuit de hal, is ingericht met planken, hier is de Cv-ketel (2023) geplaatst en is de aansluiting voor de wasmachine aanwezig. 
De moderne toiletruimte is afgewerkt met zwevend closet en ingebouwde toiletrolhouder.  
De slaapkamer is momenteel in gebruik als kasten-/werkkamer maar kan uiteraard ook als slaapkamer ingericht worden. 
De moderne badkamer heeft een fijne inloopdouche met regendouche en wastafel met meubel, het geheel wordt verwarmd middels een designradiator.
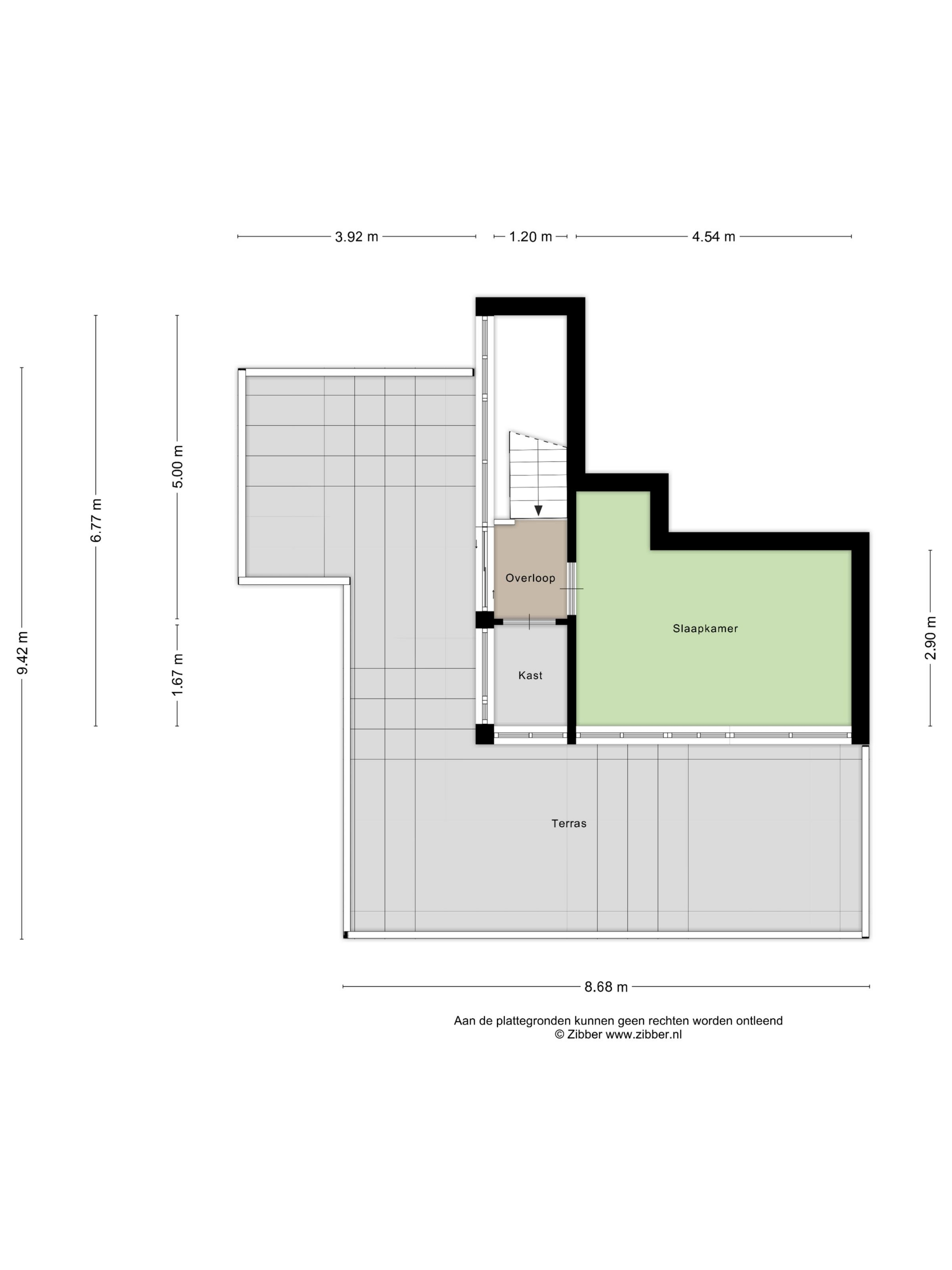
4e verdieping
Overloop met praktische bergkast, hier staat momenteel een extra koel-/vriescombinatie opgesteld. Vanuit de overloop toegang tot de 2e slaapkamer met zeer hoog plafond en grote raampartij. 
Op deze verdieping is het geweldige dakterras aanwezig. Dit terras is voorzien van meerdere zithoeken, sfeervolle plantenbakken met passende beplanting en uitgevoerd met verlichting met timer. Het terras is geheel afgewerkt met keramische tegels. Het gedeelte waar de tuintafel staat opgesteld is overdekt door middel van een overkapping met op afstand bedienbare verlichting. Er is water en elektra aanwezig en het uitzicht is schitterend. 
 
Bijzonderheden:
• eigen garage op de begane grond aanwezig;
• het gehele appartement heeft strak gestuukte wanden;
• moderne luxe inrichting;
• energielabel B;
• schitterend dakterras;
• airco geplaatst in 2024;
• bijdrage VvE bedraagt € 205,- per maand.                        
                        
                            
                            
                            
                                                            
                                
                                    
                                        Koopconditie
                                    
                                    
                                        Kosten koper                                    
                                 
                            
                            
                            
                                                                                        
                            
                            
                            
                                                            
                            
                                                            
                                    
                                        Gebouwgebonden buitenruimte
                                    
                                    
                                        48 m2
                                    
                                 
                            
                            
                            
                                                            
                                                     
                        
                        
                        
                                                                                                Wilt u graag een volledige brochure ontvangen? Vul dan uw naam en emailadres in en we sturen u direct door naar de brochure.