listing_gallery

Verkocht
Vraagprijs € 415.000

Phoenixplaats 19

Tilburg
  • 3 slaapkamers
  • 103 Woonoppervlakte
  • 71 m2
Deze bijzondere woning is gelegen in een zeer gewilde omgeving en op loopafstand van het stadscentrum. De stadswoning heeft een voortuin, dakterras op het zuidwesten en een grote inpandige garage (ca. 23 m2) met berging. Op de begane grond bevindt zich een multifunctionele (slaap)kamer, tevens te gebruiken als kantoor of beroep aan huis. De woning is uitermate rustig gelegen in de wijk Fatima met uitstekende ligging ten opzichte van uitvalswegen, winkels en centrum. 


INDELING

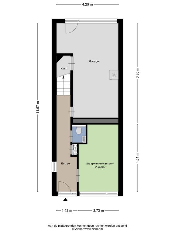
Begane grond

Entree in hal met de meterkast, de trapopgang naar de verdieping en toegang tot een (slaap)kamer en de inpandige garage. De (slaap)kamer is gelegen aan de voorzijde met zicht op het park en geschikt voor meerdere doeleinden. De ruime inpandige garage is gelegen aan de achterzijde. De garage heeft naast een elektrisch bedienbare sectionaaldeur ook een loopdeur. In de garage is een ruime berg-/werkkast aanwezig. 


1e verdieping

Op deze open verdieping is de leefruimte en de keuken aanwezig. De gehele verdieping is voorzien van een robuuste houten vloer en de woonkamer en de keuken zijn met elkaar in verbinding maar toch gescheiden door het kookeiland. Aan de voorzijde is het dakterras bereikbaar via de schuifpui. De keuken is in 2022 vernieuwd en ingericht met een inductie kookplaat met afzuiging, een vaatwasser, een koelkast, een combi/magnetron en Quooker kraan.


2e verdieping

Overloop met toegang tot twee slaapkamers, de badkamer en de technische ruimte. De ruime slaapkamer aan de voorzijde is voorzien van een houten vloeren en een draai-/kiepraam. De slaapkamer aan de achterzijde is ook afgewerkt met een houten vloer en heeft een elektrisch bedienbaar rolluik. 
De centraal gelegen badkamer met ligbad, wastafel en toilet is deels betegeld en uitgevoerd in lichte kleuren. 
Technische ruimte met de aansluiting voor de wasmachine, de mechanische ventilatie en de opstelling van de Cv-ketel (2019).

Bijzonderheden:
- uitermate rustig gelegen met uitstekende ligging ten opzichte van uitvalswegen, winkels en centrum; 
- de gehele woning is voorzien van rookmelders;
- volledig geïsoleerd; 
- energielabel A.  
 
Type woning:
Woonhuis
Soort woning
Eengezinswoning
Type woning
Hoekwoning
Beschikbaarheid
Verkocht
Vraagprijs
€ 415.000
Koopconditie
Kosten koper
Aanvaarding
In overleg
Inhoud
444 m3
Perceel
71 m2
Woonoppervlakte
103 m2
Aantal kamers
4
Aantal slaapkamers
3
Gebouwgebonden buitenruimte
9 m2
Overig inpandige ruimte
23 m2
Bouwjaar
2008
Energielabel
A

Wilt u graag een volledige brochure ontvangen? Vul dan uw naam en emailadres in en we sturen u direct door naar de brochure.

Meer informatie over deze woning of een bezichtiging plannen?

Neem dan contact op met één van onze makelaars via 013 580 20 70 of stuur een mail naar info@gerritsemakelaardij.nl.