listing_gallery

Verkocht
Vraagprijs € 395.000

Poirtersstraat 12

Tilburg
  • 3 slaapkamers
  • 113 Woonoppervlakte
  • 119 m2
Verrassend ruime woning gelegen op een goede locatie. De woning is uitgebouwd, de verdieping is opgetrokken in metselwerk en er is een grote dakkapel geplaatst op de zolderverdieping. Deze fijne woning is gemoderniseerd, heeft 14 zonnepanelen en is instapklaar.
De ligging nabij de Ringbaan-West en het Kromhoutpark is rustig en praktisch. Winkels, uitvalswegen, overige voorzieningen en het centrum van Tilburg zijn goed bereikbaar. 


INDELING

Begane grond

Entree in hal met ruimte voor de kapstok en toegang tot de meterkast. Vanuit de hal is er toegang tot de woonkamer, deze is aan de achterzijde uitgebouwd waardoor er aan de voorzijde een royale zitkamer aanwezig is, met een open trap naar de verdieping. Aan de achterzijde is de eethoek opgesteld en is er middels openslaande tuindeuren toegang tot de achtertuin. De woonkamer is voorzien van een nette laminaatvloer en gestuukte wanden.
De keuken is in 2021 vernieuwd en is voorzien van een hoekopstelling met fijne (pannen)lades, Quooker kraan, carrouselkast en apparatuur zoals een inductie kookplaat met afzuigkap, combi magnetron/oven, vaatwasser, koelkast en vriezer. In de keuken is veel lichttoetreding middels de lichtkoepel en een groot raam. Achter de keuken is het toilet gelegen. Het toilet is in 2023 vernieuwd en voorzien van een zwevend closet met fonteintje. 


1e verdieping

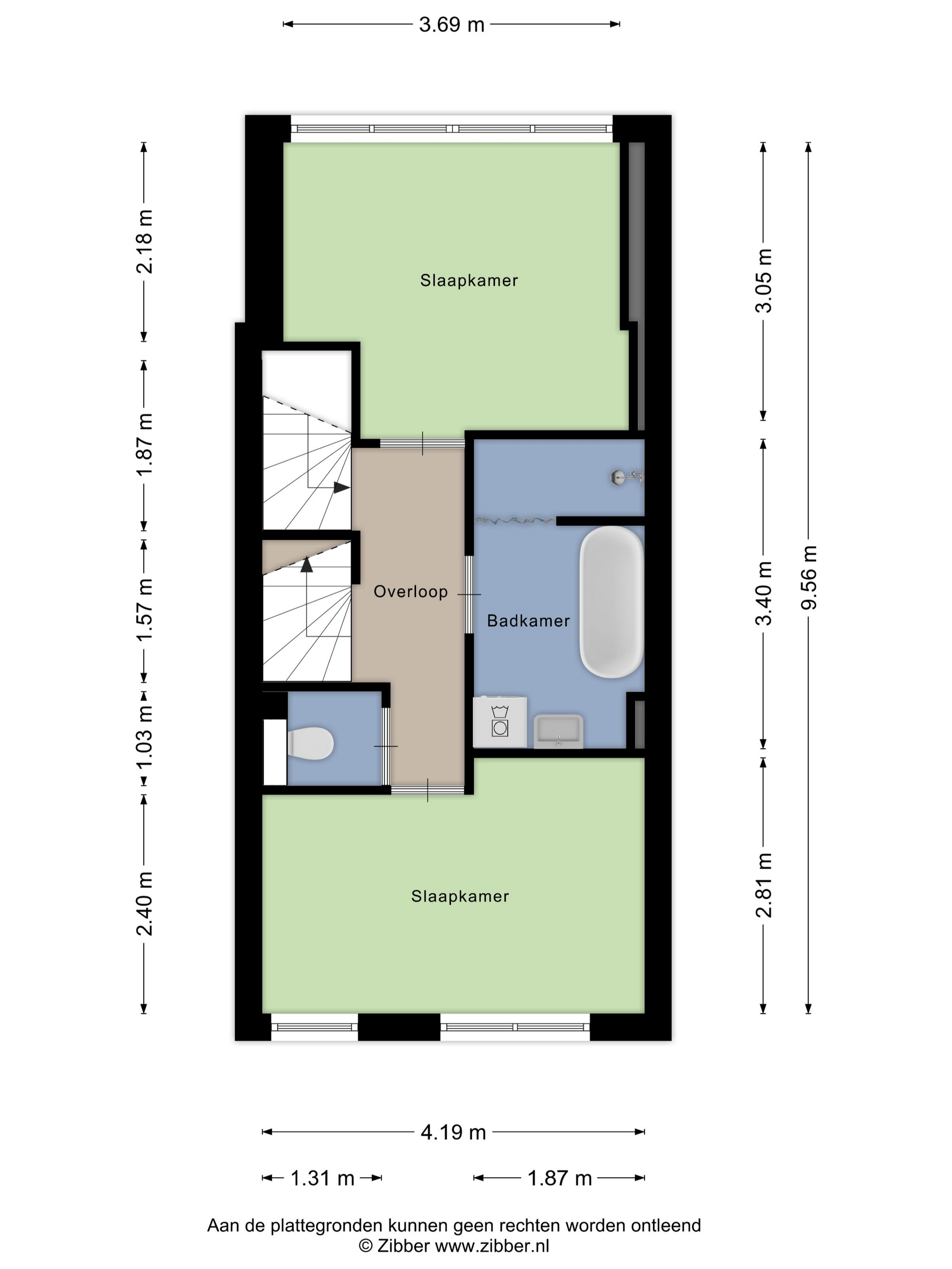
Overloop met de vaste trap naar de 2e verdieping. Op deze verdieping zijn twee ruime slaapkamers aanwezig. Beide slaapkamers zijn afgewerkt met een nette laminaatvloer en gestuukte wanden. Op de slaapkamer aan de achterzijde is een airco aanwezig. De badkamer is centraal gelegen en heeft een fijne inloopdouche met regendouche en bedieningspaneel voor de verschillende opties. Het ligbad is vrijstaand (op pootjes) en rondom de wastafel zijn (spiegel)kasten aanwezig. De wasmachine en droger staan opgesteld in de badkamer. 


2e verdieping

Middels vaste trap te bereiken zolderverdieping. Deze ruimte is goed afgewerkt en in gebruik als slaapkamer. De kamer heeft een dakkapel aan de achterzijde, inbouwspots en bergruimte achter de schotten. In een aparte kast is de Cv-ketel opgesteld. 


Buiten

De achtertuin is gelegen op het oosten en voorzien van sierbestrating, elektra en een houten overkapping. De sfeervolle overkapping is geplaatst tegen de stenen berging. De fijne berging is voorzien van kunststof kozijnen en vanuit de berging is de achterom bereikbaar. 


Bijzonderheden
• De woning is grotendeels voorzien van kunststof kozijnen met HR+ glas en deels houten kozijnen met HR+ glas.
• De woning heeft 14 zonnepanelen.
• In de woonkamer en slaapkamers is airco aanwezig, deze zijn recent onderhouden.
• Cv-ketel Nefit 2020.
• Keuken is vernieuwd in 2021.
• Toilet op begane grond is vernieuwd in 2023.
• Energielabel A.
Type woning:
Woonhuis
Soort woning
Eengezinswoning
Type woning
Tussenwoning
Beschikbaarheid
Verkocht
Vraagprijs
€ 395.000
Koopconditie
Kosten koper
Aanvaarding
In overleg
Inhoud
401 m3
Perceel
119 m2
Woonoppervlakte
113 m2
Aantal kamers
4
Aantal slaapkamers
3
Externe bergruimte
10 m2
Bouwjaar
1926
Energielabel
A

Wilt u graag een volledige brochure ontvangen? Vul dan uw naam en emailadres in en we sturen u direct door naar de brochure.

Meer informatie over deze woning of een bezichtiging plannen?

Neem dan contact op met één van onze makelaars via 013 580 20 70 of stuur een mail naar info@gerritsemakelaardij.nl.