listing_gallery

Verkocht
Vraagprijs € 215.000

Professor Cobbenhagenlaan 204

Tilburg
  • 2 slaapkamers
  • 83 Woonoppervlakte
ONDER BOD, ER WORDEN GEEN BEZICHTIGINGEN MEER INGEPLAND 

In gewilde wijk 'De Reit' gelegen 3-kamer appartement met nette keuken en badkamer. Het appartement heeft een ideale ligging t.o.v. de Universiteit van Tilburg, winkelcentrum de Westermarkt, treinstation Tilburg Universiteit en Tilburg Centraal, alsmede het stadscentrum. Met de auto zijn de uitvalswegen richting Breda en Eindhoven goed te bereiken.

Het appartement is gelegen op de zesde en bovenste verdieping en bovendien op een hoek gesitueerd aan het einde van de galerij, naast de trappenhal.


INDELING

Begane grond

U betreedt het appartementencomplex middels de gemoderniseerde afgesloten centrale entree waar ook bezoekers zich kunnen melden middels een intercomsysteem. Vanuit de centrale entree heeft u toegang tot de lift en het trappenhuis. De berging bevindt zich op de begane grond. Er zijn tevens voldoende parkeerplaatsen bij het appartementencomplex.


Appartement

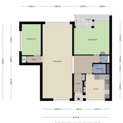
Entree/hal met meterkast. Toegang tot de woonkamer, keuken, slaapkamers en de badkamer. De woonkamer is voorzien van een laminaatvloer en deels behangen wanden. De grote raampartijen aan de achterzijde geven een prettige hoeveelheid lichtinval en de kamer is op meerdere manieren in te delen. De keuken (met inbouwkast) is aan de voorzijde gelegen, voorzien van een tegelvloer en ingericht met een keurig keukenblok met inbouwapparatuur te weten: oven, 4-pits gaskookplaat, afzuigkap, koelkast, vriezer en een vaatwasser. Verder treft u hier de aansluiting voor de wasmachine en opstelling droger. Aansluitend treft u een badkamer met wastafel en douche in cabine en vervolgens een separaat toilet. Royale hoofdslaapkamer met toegang tot balkon. De woonkamer biedt toegang tot een tweede hal met vaste kast en toegang tot de tweede slaapkamer. Indien gewenst kan een derde slaapkamer gecreëerd worden door de woonkamer in tweeën te splitsen.

Bijzonderheden:
• 3-kamerappartement;
• gelegen nabij winkelcentrum Westermarkt en het Professor de Moorplein;
• het Professor de Moorplein beschikt over een Albert Heijn, Subway en diverse andere winkels, dit op
loopafstand van het appartement;
• tevens nabij de Universiteit van Tilburg en diverse hogescholen;
• op loopafstand van NS-station Tilburg Universiteit en bushaltes;
• beschikking over een eigen inpandige berging;
• voldoende parkeergelegenheid bij het complex;
• het complex beschikt over een intercomsysteem en bedieningspaneel;
• VvE bijdrage is € 180,69 per maand;
• aanvaarding geschiedt in onderling overleg (kan op korte termijn).
 
Type woning:
Appartement
Beschikbaarheid
Verkocht
Vraagprijs
€ 215.000
Koopconditie
Kosten koper
Aanvaarding
In overleg
Inhoud
274 m3
Woonoppervlakte
83 m2
Aantal kamers
3
Aantal slaapkamers
2
Externe bergruimte
9 m2
Gebouwgebonden buitenruimte
5 m2
Bouwjaar
1962

Wilt u graag een volledige brochure ontvangen? Vul dan uw naam en emailadres in en we sturen u direct door naar de brochure.

Meer informatie over deze woning of een bezichtiging plannen?

Neem dan contact op met één van onze makelaars via 013 580 20 70 of stuur een mail naar info@gerritsemakelaardij.nl.