Op een gunstige locatie aan de Ringbaan-West en op loop-/fietsafstand van het centrum gelegen, royale en goed onderhouden instapklare jaren ’30 woning. Kom zelf de prettige sfeer proeven van deze zeer karakteristieke en statige twee-onder-een-kapwoning, boordevol authentieke elementen. Dit heerlijke gezinshuis beschikt onder andere over een uitgebouwde woonkeuken, een royale woon- en eetkamer en-suite met glas-in-lood deuren, een werkkamer, 4 (slaap)kamers en 1 badkamer. De gezellige stadstuin op het zuiden is uitgebreid met een overkapping inclusief openhaard en biedt toegang tot de berging en het dakterras.
De woning is gelegen tussen het Kromhoutpark en de populaire wijk Zorgvlied. De buurtschool en kinderopvang zijn op loopafstand. Het Theresialyceum, het Odulphuslyceum, de Hogeschool en de Universiteit van Tilburg zijn op korte afstand gelegen. Via de Ringbaan-West bereikt u eenvoudig de snelwegen richting zowel Breda, Eindhoven, als 's-Hertogenbosch. Prachtig authentiek wonen met eigentijdse luxe op een ideale locatie!
Bouwjaar: 1927
Inhoud: circa 640 m³
Woonoppervlakte: circa 163 m²
Perceel: 170 m²
Begane grond:
Via de entree met toilet bereikt u de hal. De hal verschaft toegang tot alle vertrekken op de begane grond, namelijk de woonkamer, de eetkamer, de keuken, een werkkamer en een toilet. De hal en entree beschikken over een zwart-wit geblokte tegelvloer. De toiletruimte is half betegeld en beschikt over een fonteintje. De woonkamer, eetkamer en werkkamer zijn allen voorzien van een donkere houten visgraat parketvloer. Tussen de woonkamer en de eetkamer /werkkamer bevinden zich en-suite deuren met glas-in-lood ramen. Vanuit de eetkamer, met bijzonder hoog plafond, heeft u middels openslaande tuindeuren toegang tot de tuin.
De ruime woonkeuken beschikt over een grijze gietvloer met vloerverwarming en een recht keukenblok. Als (inbouw)apparatuur treft u vaatwasser, wijnklimaatkast, afzuigkap, magnetron, fornuis, quooker kraan en koelkast. Deze uitbouw maakt het geheel een heerlijke plek om te ontbijten of dineren met mogelijkheid om televisie te kijken. Vanuit de keuken zijn zowel de royale provisiekelder als de tuin bereikbaar.
Eerste verdieping:
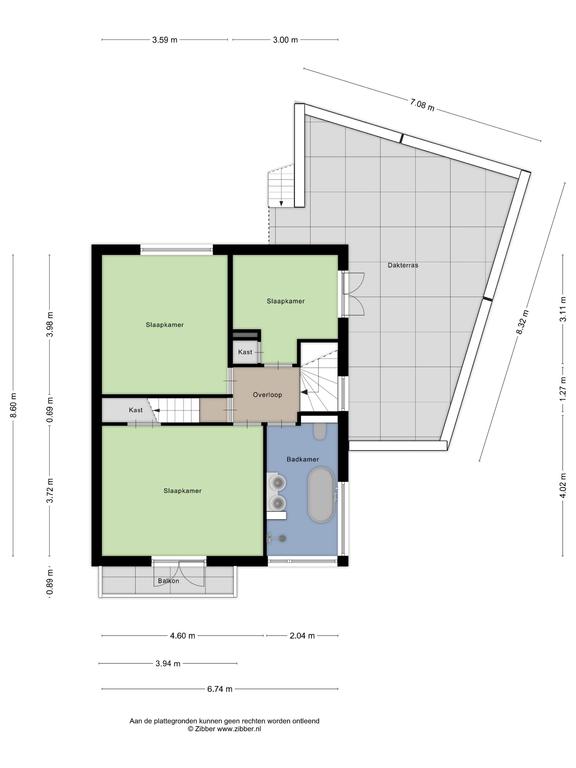
Via de trapopgang in de hal bereikt u de overloop op de eerste verdieping. Op de eerste verdieping zijn drie slaapkamers alsmede de vernieuwde badkamer gesitueerd. De slaapkamers op de eerste verdieping beschikken over een witte houten vloer. De zeer ruime slaapkamer (17m2) aan de voorzijde van de woning beschikt over een inbouwkast en balkon. Ook de slaapkamer aan de tuinzijde is ruim (16m2). De slaapkamer aan de kant van de Ringbaan-West verschaft toegang tot een riant dakterras (ca. 45 m²). De vernieuwde badkamer (2023) volledig in Beton-Ciré is voorzien van een ligbad, inloopdouche, toilet en dubbele wastafel. De badkamer is tevens voorzien van elektrische vloerverwarming.
Tweede verdieping:
Via de vaste trap heeft u toegang tot de vierde slaapkamer met vloerbedekking. Ook bevinden zich hier de cv-ketel (2019), wasmachine en droger. Deze enorme ruimte biedt voldoende mogelijkheid om spullen op te bergen en er kan zelfs gemakkelijk een vijfde (slaap)kamer bijgemaakt worden.
Buiten:
De woning beschikt over een op het zuiden gelegen tuin aan de achterzijde van de woning welke is voorzien van karakteristieke tegels. In het voorjaar doet deze patio met olijfboom en klimrozen dan ook mediterraan aan. Onder de knusse overkapping kun je het hele jaar door zitten en genieten van de buitenhaard. Via de trap bereik je een ruim dakterras welke onlangs is voorzien van nieuwe dakbedekking. Op deze plek geniet je in de zomer van de avondzon en uitzicht op de vele bomen aan de Ringbaan West.
Algemeen:
- karakteristieke goed onderhouden woning met veel ruimte;
- spouwmuurisolatie en dakisolatie in 2023;
- keuken 2019 en badkamer 2023;
- cv-ketel 2019;
- dakbedekking dakterras 2024;
- de woning is voorzien dan dubbelglas;
- zowel binnen als buiten aansluiting voor Sonos-systemen;
- woning beschikt over een schuur;
- gunstig gelegen ten opzichte van diverse voorzieningen;
- gelegen nabij uitvalswegen richting Eindhoven, Breda, Waalwijk en Den Bosch.                        
                        
                            
                                                            
                                    
                                        Soort woning
                                    
                                    
                                        Eengezinswoning                                    
                                 
                                
                                    
                                        Type woning
                                    
                                    
                                        Twee onder een kapwoning                                    
                                 
                            
                            
                                                            
                                
                                    
                                        Koopconditie
                                    
                                    
                                        Kosten koper                                    
                                 
                            
                            
                            
                                                            
                                                                                        
                            
                            
                            
                            
                                                            
                                    
                                        Gebouwgebonden buitenruimte
                                    
                                    
                                        49 m2
                                    
                                 
                            
                                                            
                                    
                                        Overig inpandige ruimte
                                    
                                    
                                        18 m2
                                    
                                 
                            
                            
                                                            
                                                     
                        
                        
                        
                                                                                                Wilt u graag een volledige brochure ontvangen? Vul dan uw naam en emailadres in en we sturen u direct door naar de brochure.