listing_gallery

Verkocht
Vraagprijs € 265.000

Trouwlaan 72

Tilburg
  • 3 slaapkamers
  • 110 Woonoppervlakte
  • 100 m2
Wonen om de hoek van het centrum! Dat kan in deze sfeervolle vooroorlogse tussenwoning uit 1931 met zonnige stadstuin.

De woning heeft op de begane grond een woonkamer met allesbrander en tuindeuren en een separate keuken. Verder zijn er 2 slaapkamers en een ruime badkamer op de eerste verdieping en een open zolderruimte/kamer op de tweede verdieping. Kortom: een prettige stadswoning.

Omgeving: de Trouwlaan is een fietsstraat op loop-en fietsafstand van het centrum, winkels, het Spoorpark en het NS- station.

Indeling

begane grond

Hal (v.v. originele terrazzo vloer) met trapopgang en trapkast. De woonkamer (v.v. parketvloer) heeft een schouw met allesbrander en openslaande deuren naar de tuin. De gesloten keuken is ingericht met 2 keukenblokken voorzien van dubbele spoelbak, 5-pitsgaskookplaat, afzuigkap en oven. Vanuit de keuken is de bijkeuken te bereiken met aan/afvoer wasmachine, opstelling c.v.-combiketel (Atag, 2010, momenteel lease, in eigendom bij oplevering), toiletruimte en (voormalige) doucheruimte. Een deur geeft toegang tot de achtertuin.

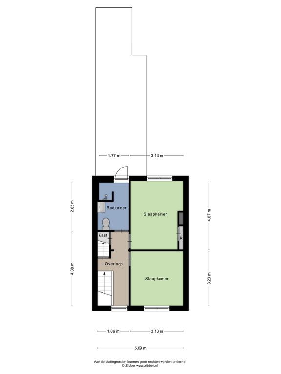
1e verdieping

Twee slaapkamers (vloeren v.v. houten delen), badkamer, overloop met vaste kast en trapopgang naar de 2e verdieping. Slaapkamer 1 is aan de achterzijde gelegen en heeft een vaste kast. Slaapkamer 2 is aan de voorzijde gelegen. De badkamer is ingericht met een inloopdouchecabine, een wastafel en toilet en voorzien van een deur naar het plat dak.

2e verdieping

Via vaste trap bereikbare verdieping, in gebruik als slaapkamer/hobbykamer met grote dakkapel, dakraam en wastafel met warm en koud water.

Buiten

Zonnige stadstuin met poort naar achterom/brandgang. Houten berging.

Algemeen

• Parkeren middels parkeervergunning maandag tot en met zaterdag, kosten 1e parkeervergunning € 48,-- per jaar.
• Energielabel F.
• In de koopovereenkomst worden een niet-bewoningsclausule (woning komt uit een nalatenschap, verkoper heeft de woning niet zelf bewoond), een asbest-en ouderdomsclausule opgenomen.
De woning behoeft op een aantal punten onderhoud en modernisering.
Type woning:
Woonhuis
Soort woning
Eengezinswoning
Type woning
Tussenwoning
Beschikbaarheid
Verkocht
Vraagprijs
€ 265.000
Koopconditie
Kosten koper
Aanvaarding
In overleg
Inhoud
401 m3
Perceel
100 m2
Woonoppervlakte
110 m2
Aantal kamers
4
Aantal slaapkamers
3
Gebouwgebonden buitenruimte
2 m2
Overig inpandige ruimte
3 m2
Bouwjaar
1931
Energielabel
F

Wilt u graag een volledige brochure ontvangen? Vul dan uw naam en emailadres in en we sturen u direct door naar de brochure.

Meer informatie over deze woning of een bezichtiging plannen?

Neem dan contact op met één van onze makelaars via 013 580 20 70 of stuur een mail naar info@gerritsemakelaardij.nl.