listing_gallery

Verkocht
Vraagprijs € 345.000

Jeroen Boschlaan 7

Berkel-Enschot
  • 5 slaapkamers
  • 152 Woonoppervlakte
  • 283 m2
Ben je handig en niet bang om de handen uit de mouwen te steken? Dan is dit je kans als je op zoek bent naar een betaalbare, ruime 2-onder-1 kapwoning met inpandig te bereiken garage op een toplocatie in Berkel-Enschot. Deze woning is een goed en betaalbaar alternatief voor een ‘kant en klaar’ huis. 
In deze woning heb je de mogelijkheid om alles naar eigen smaak af te werken en in te richten. 

Een ideale ligging, centraal in Berkel-Enschot in een rustige brede straat met een tuin op het zuidoosten. Vanuit de woning zijn de voorzieningen zoals het winkelcentrum, (basis)scholen en uitvalswegen zeer goed te bereiken.


INDELING

Begane grond

Middels een overdekte entree toegang tot de woning. Entree in hal met de trapopgang naar de 1e verdieping, de meterkast, een diepe trap-/voorraadkast en toiletruimte. Het toilet is voorzien van een zwevend closet met fonteintje. Vanuit de hal is er toegang tot de woonkamer en keuken. 
De L-vormige woonkamer is voorzien van een leistenen vloer en een centraal gelegen open haard. Vanuit de woonkamer is er toegang tot de achtertuin. 
De separate keuken is voorzien van een eenvoudig keukenblok en vanuit de keuken is er zicht op de tuin. Achter de keuken is de bijkeuken gelegen, hier is de aansluiting voor de wasmachine aanwezig,  toegang tot de achtertuin en toegang tot de garage. 


1e verdieping

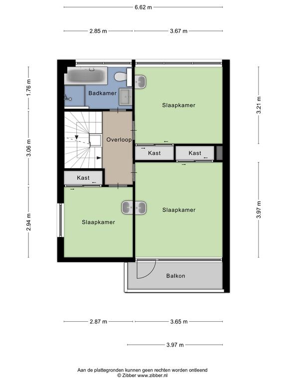
Overloop met de trapopgang naar de 2e verdieping. Vanuit de overloop toegang tot drie royale slaapkamers voorzien van vaste kasten. De kamers zijn respectievelijk 8,5 m², 12 m² en 14,5 m². De grote slaapkamer aan de voorzijde heeft toegang tot het balkon. 
Badkamer met ligbad, douche in cabine, toilet en wastafel. 


2e verdieping

Middels vaste trap te bereiken ruime zolderverdieping. De voorzolder geeft toegang tot twee slaapkamers en een ruime bergruimte met de opstelling van de Cv-ketel. 
De slaapkamer aan de achterzijde is voorzien van een dakkapel over de volle breedte en de slaapkamer aan de voorzijde heeft 2 dakramen. 


Buiten

Aan de voorzijde een voortuin met daarnaast gelegen een eigen oprit voor meerdere auto’s. Toegang tot de garage middels een kanteldeur. Vanuit de garage is de bijkeuken bereikbaar en er is een loopdeur naar de tuin. 
Royale achtertuin, geheel omsloten en gelegen op het zuidoosten.

Bijzonderheden:
• de woning telt maar liefst 5 slaapkamers;
• badkamer en toilet zijn in 1989 vernieuwd;
• de woning behoeft modernisering;
• er is een bouwkundige inspectierapport aanwezig;
• energielabel E.
Type woning:
Woonhuis
Soort woning
Eengezinswoning
Type woning
Twee onder een kapwoning
Beschikbaarheid
Verkocht
Vraagprijs
€ 345.000
Koopconditie
Kosten koper
Aanvaarding
In overleg
Inhoud
612 m3
Perceel
283 m2
Woonoppervlakte
152 m2
Aantal kamers
6
Aantal slaapkamers
5
Gebouwgebonden buitenruimte
10 m2
Overig inpandige ruimte
18 m2
Bouwjaar
1969
Energielabel
E

Wilt u graag een volledige brochure ontvangen? Vul dan uw naam en emailadres in en we sturen u direct door naar de brochure.

Meer informatie over deze woning of een bezichtiging plannen?

Neem dan contact op met één van onze makelaars via 013 580 20 70 of stuur een mail naar info@gerritsemakelaardij.nl.