Op een heerlijke locatie grenzend aan het buitengebied treft u deze prachtig afgewerkte en nagenoeg geheel gemoderniseerde vrijstaande woning met diepe oprit en tuin rondom de woning.
Deze villa is de laatste jaren ingrijpend gemoderniseerd met hoogwaardige en luxe materialen en met vier slaapkamers, twee badkamers, een riante living alsmede een royale speelkamer hét ideale gezinshuis!
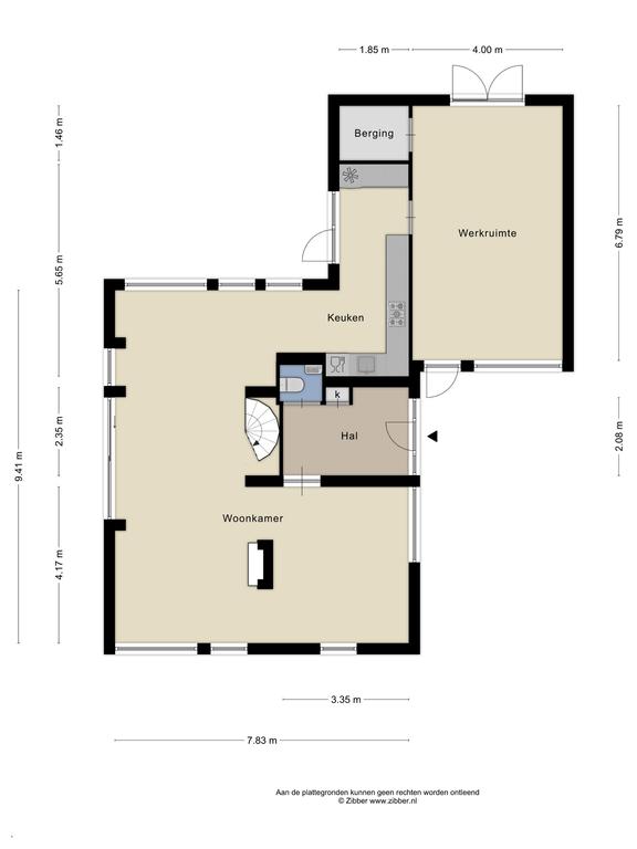
Indeling begane grond
Royale entree/hal met garderobe, meterkast (gemoderniseerd) en hangcloset met fontein. Uiterst sfeervolle living met centraal in het midden de open haard (met gasaansluiting) waardoor er twee gezellige en zeer ruime zithoeken zijn waar het hele gezin kan genieten! Een schuifpui biedt toegang tot het terras en de spiltrap tot de eerste verdieping. De eetkamer grenst weer aan de keuken. Luxe keuken (2016) voorzien van alle inbouwapparatuur te weten: vaatwasser-koffiezetapparaat-combimagnetron-wijnkoelkast-warmtelade-5 pits gaskookplaat-afzuigkap-koelkast-vriezer en tot slot een mengkraan met ingebouwde Quooker. Alle apparatuur Siemens en Miele, een composiet aanrechtblad en het ontbijttafeltje tegen de wand met twee krukken maken het feest compleet! Vanuit de keuken een loopdeur naar het terras aan de achterzijde en toegang tot de voormalige garage welke is omgebouwd tot een kantoor-/chillruimte met diepe inloopkast en een pui met loopdeur naar de oprit. Openslaande tuindeuren aan de achterzijde en een eikenhouten vloer.
1e verdieping
Overloop met toegang tot alle vertrekken. Prachtige hoofdslaapkamer met toegang tot balkon en privé badkamer voorzien van inloopregendouche met Philippe Starck kraan, hangcloset, wastafel in meubel en decor radiator. Tweede slaapkamer met velux dakraam, wastafel en toegang tot balkon. Tweede badkamer voorzien van ligbad, douche in cabine, wasmachineaansluiting, hangcloset en design wastafel in meubel. Volledig betegeld. Via een ruime kasten (tussen-) kamer met wastafel treft u tot slot twee speelse en leuke kinderkamers. Beiden voorzien van een elektrisch zonnescreen.
2e verdieping
Via de kastenkamer toegang tot bergzolder via een vlizotrap. Opstelling CV combiketel (Remeha, 2017).
Tuin
Prachtige tuin rondom de woning met oprit ten behoeve van meerdere auto's, twee terrassen met fraaie tegels (1 x 1m), elektrisch zonnescherm, trampoline en omgeven door gazon en een beukenhaag. Vrij gelegen aan de zij,- en achterkant.
Algemeen
* De begane grond is voorzien van een egaline vloer met vloerverwarming muv de hal;
* Gehele woning voorzien van stucwerk wanden en plafonds;
* Gehele woning voorzien van dimmers;
* Gehele eerste verdieping voorzien van een eikenhouten vloer;
* Houten kozijnen met dubbele beglazing;
* De gehele woning kent veel en prettige lichtinval en is instapklaar.                        
                        
                            
                                                            
                                
                                    
                                        Type woning
                                    
                                    
                                        Vrijstaande woning                                    
                                 
                            
                            
                                                            
                                
                                    
                                        Koopconditie
                                    
                                    
                                        Kosten koper                                    
                                 
                            
                            
                            
                                                            
                                                                                        
                            
                            
                            
                            
                                                            
                                    
                                        Gebouwgebonden buitenruimte
                                    
                                    
                                        9 m2
                                    
                                 
                            
                                                            
                                    
                                        Overig inpandige ruimte
                                    
                                    
                                        10 m2
                                    
                                 
                            
                            
                                                            
                                                     
                        
                        
                        
                                                                                                Wilt u graag een volledige brochure ontvangen? Vul dan uw naam en emailadres in en we sturen u direct door naar de brochure.