Dit is een unieke kans! Deze fraaie instapklare woning is modern, uitgebouwd en gelegen aan een gemoedelijk plein. De woning heeft een uitgebouwde woonkamer met vernieuwde keuken, twee slaapkamers op de 1e verdieping en een prettige slaapkamer met dakkapel op de 2e verdieping. De tuin zowel aan de voor- als aan de achterzijde is in 2023 aangelegd.
De woning is gelegen aan de rand van Berkel-Enschot. In de nabijheid zijn de verbindings- en uitvalswegen naar omliggende dorpen en steden gelegen. Het winkelcentrum Koningsoord is te voet bereikbaar, hier vindt u een gevarieerd aanbod van winkels en horeca. Daarnaast zijn er in Berkel-Enschot meerdere sportfaciliteiten en is er een cultureel- en gezondheidscentrum aanwezig. 
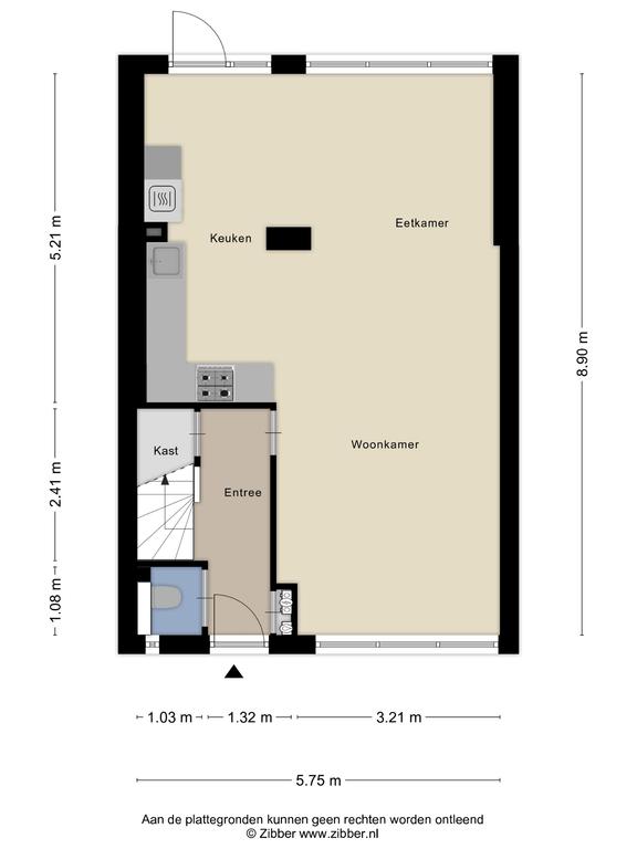
INDELING
Begane grond
Entree in hal met de meterkast, de trapkast en de trapopgang naar de 1e verdieping. In de hal is ook de toiletruimte aanwezig, die is voorzien van een zwevend closet. Toegang tot de zeer sfeervolle woonkamer met de zithoek aan de voorzijde, veel lichtinval door de grote raampartijen en een uitbouw over de volle breedte aan de achterzijde waar momenteel de eethoek is geplaatst. De keuken is centraal gelegen en voorzien van een vernieuwde hoekopstelling (2022). Er is inbouwapparatuur aanwezig zoals een 5-pits inductie kookplaat met afzuigkap, oven, vaatwasser, koelkast en vriezer (Quooker aansluiting aanwezig). Vanuit de woning is er toegang tot de achtertuin middels een loopdeur. 
1e verdieping
Overloop met vaste trap naar de 2e verdieping en toegang tot twee slaapkamers, de wasruimte en de badkamer. Twee fijne slaapkamers waarvan de grote slaapkamer aan de achterzijde is gelegen. De kamers zijn voorzien van een nette laminaatvloer en gestuukte wanden. De wasruimte met de aansluiting voor de wasmachine en eventueel droger is voorzien van twee aparte groepen. In deze wasruimte is ook de omvormer van de zonnepanelen aanwezig. 
Badkamer is uitgevoerd in lichte kleuren en is voorzien van een ligbad, zwevend toilet, wastafel in meubel en naast natuurlijke ventilatie ook voorzien van mechanische ventilatie. 
2e verdieping
Voorzolder met de opstelling van de Cv-ketel, deze is netjes weggewerkt in een kast. Ruime slaapkamer met grote dakkapel en bergruimte achter de schotten. 
Buiten
Zowel de voortuin als de achtertuin zijn in 2023 opnieuw aangelegd. De nette voortuin geeft toegang tot de woning. De achtertuin met stenen berging is voorzien van sierbestrating, kunstgras en achter in de tuin een sfeervolle overkapping met een aansluiting voor een tv. De tuin is voorzien van verlichting en er is toegang tot de achtergelegen brandgang.
 
?
Bijzonderheden:
- de woning is in 2022 grotendeels gemoderniseerd;
- meterkast is vernieuwd in 2022;
- tuinaanleg is in 2023 vernieuwd;
- buitenzijde woning geschilderd in 2023;
- dakgoten vernieuwd in 2023;
- meeste keukenapparatuur is van Siemens (echter vaatwasser is van AEG en koel-vriescombinatie van Zanussi);
- HR++ glas;
- grote slaapkamer aan de achterzijde heeft een rolluik;
- de woning is voorzien van 13 zonnepanelen;
- er is voldoende parkeergelegenheid aan het plein.
                         
                        
                            
                                                            
                                    
                                        Soort woning
                                    
                                    
                                        Eengezinswoning                                    
                                 
                                
                            
                            
                                                            
                                
                                    
                                        Koopconditie
                                    
                                    
                                        Kosten koper                                    
                                 
                            
                            
                            
                                                            
                                                                                        
                            
                            
                            
                                                            
                            
                            
                            
                            
                                                            
                                                     
                        
                        
                        
                                                                                                Wilt u graag een volledige brochure ontvangen? Vul dan uw naam en emailadres in en we sturen u direct door naar de brochure.