Gelegen aan een van dé mooiste lanen in een gewilde wijk van Berkel-Enschot. De wijk bestaat hoofdzakelijk uit ruim opgezette kavels met soortgelijke villa's en landhuizen. Deze royale, vrijstaande villa heeft een dubbele garage, een schitterende tuin rondom de woning met overdekt terras aan het huis en beschikt over maar liefst 5 slaapkamers en twee badkamers!  
 
Berkel-Enschot is centraal gelegen, de uitvalswegen richting Tilburg, Breda, Eindhoven en 's-Hertogenbosch zijn eenvoudig en snel bereikbaar. Daarnaast zijn de voorzieningen zoals scholen, sportfaciliteiten, winkels en openbaar vervoer in de nabijheid.  
 
Woonoppervlakte: circa 207 m2
Kelder: circa 27 m2
Zolder: circa 66 m2
Garage: circa 36 m2
Inhoud: circa 895 m3
INDELING 
Begane grond
Middels de oprit, geschikt voor meerdere auto's, is de overdekte entree van de woning bereikbaar. Entree in ruime hal, met statige trapopgang naar de vide, meterkast en tussenportaal met garderoberuimte en toiletruimte. De toiletruimte is voorzien van een staand toilet en fonteintje. Via het tussenportaal is er toegang tot de aparte werk-/speelkamer met schuifpui naar de achtertuin. Vanuit de hal zijn de woonkamer en keuken bereikbaar. De sfeervolle L-vormige woonkamer heeft veel lichtinval door de grote raampartijen, een open haard in schouw en een schuifpui naar het overdekte terras.  
De dichte keuken is voorzien van een hoekopstelling met veel kastruimte en apparatuur en er is ruimte voor het plaatsen van een eethoek. Vanuit de keuken is er mooi zicht op de tuin en heb je toegang tot de bijkeuken.  
In de bijkeuken is de aansluiting van de wasmachine en droger aanwezig, er is toegang tot de kelder van ca. 26 m² en naast een vaste kast zijn er extra keukenkastjes aanwezig. In de kelder staat de opstelling van de Cv-ketel en de boiler. 
 
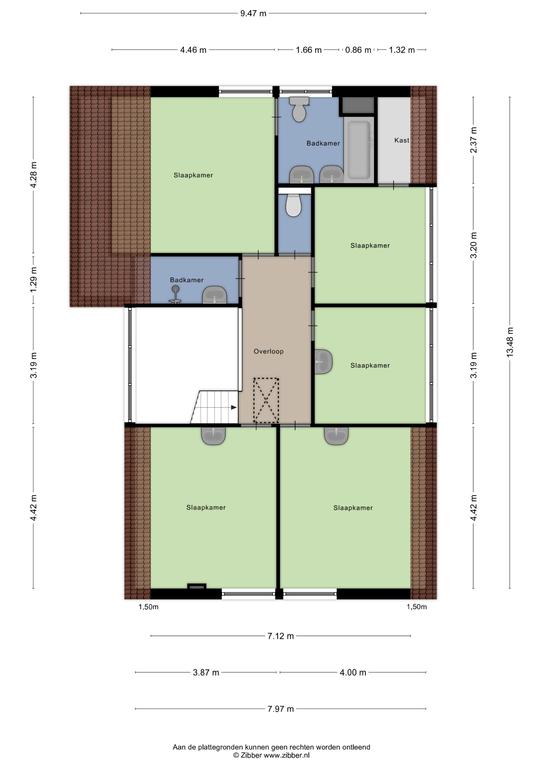
1e verdieping
Overloop met balustrade en het luik naar de bergzolder. Deze verdieping heeft vijf slaapkamers, waarvan drie slaapkamers met wastafel, één slaapkamer met toegang tot bergruimte onder de schuine kap en een royale slaapkamer met toegang tot de eigen badkamer. De badkamer is voorzien van een ligbad, dubbele wastafel en bidet. Vanuit de overloop is de tweede badkamer bereikbaar met douche en wastafel, evenals een separate toiletruimte.  
 
2e verdieping
Middels vlizotrap te bereiken bergzolder over de volledig lengte van de woning. Op deze zolder is veel bergruimte. 
 
Buiten
De oprit voor meerdere auto's geeft toegang tot de dubbele stenen garage met zadeldak. De garagedeuren zijn elektrisch bedienbaar en vanuit de garage is er toegang tot de tuin. In de garage is deels een verdiepingsvloer aangebracht zodat hier extra bergruimte aanwezig is.  
De mooie tuin is gelegen rondom de woning waardoor u elke moment van de dag van de zon kunt genieten. De achtertuin is gericht op het noordoosten. Het grote terras aan de achterzijde van de woning gaat over in het gazon met rondom hoge beplanting. Naast de woning is de tuin deels overkapt en ingericht met een vijver, lage beplanting en een groene haag.  
 
Bijzonderheden: 
• woning is degelijk gebouwd en goed onderhouden; 
• vrijwel geheel voorzien van dubbele beglazing; 
• energielabel C; 
• de woning beschikt over een alarminstallatie.                        
                        
                            
                                                            
                                
                                    
                                        Type woning
                                    
                                    
                                        Vrijstaande woning                                    
                                 
                            
                            
                                                                                                
                                                            
                            
                            
                                                            
                                                                                        
                            
                            
                            
                                                            
                            
                                                            
                                    
                                        Gebouwgebonden buitenruimte
                                    
                                    
                                        24 m2
                                    
                                 
                            
                                                            
                                    
                                        Overig inpandige ruimte
                                    
                                    
                                        34 m2