listing_gallery

Verkocht
Prijs op aanvraag

De Boschkamer 2

Goirle
  • 4 slaapkamers
  • 184 Woonoppervlakte
  • 1075 m2
Aan de rand van Goirle in de wijk De Boschkamer ligt aan de gelijknamige straat deze onder architectuur gebouwde ultra strakke en bijzonder luxe afgewerkte vrijstaande villa op een prachtig, aan de bosrand grenzend, perceel. Ruimte, rust en toch veel (jonge) gezinnen in de omgeving maken dit tot een gewild object.

Indeling begane grond

Entree/hal met uitgebreide meterkast, garderobe met ingebouwd meubelmaatwerk, toilet voorzien van hangcloset en fontein met meubelmaatwerk handdoekenkastje alsmede een royale bergkast. De woonruimte betreedt u via de prachtige glazen taatsdeur. In het oog springt de waanzinnige woonkeuken met eetkamer voorzien van panoramaraam met uitzicht naar de natuur maar met name ook het fantastische kookeiland en keukenblok voorzien van alle gemakken. Veel vaste kasten en lades, een wijnkoelkast, een Bora inductie kookplaat met ingebouwd afzuigsysteem, een Corian (mineraal) aanrechtblad met ingebouwde bediening van de kookplaat en ingebouwde wandcontactdozen, spoelbak met Quooker, vaatwasser en geïntegreerde prullenbak met afvalscheiding. Tegen de wand treft u een groot formaat koelkast met lades, combimagnetron, koffiezetmachine, stoomoven en een vriezer met drie lades. Alle apparatuur van Siemens (studioline).

De praktische werk-/speelkamer aan de voorzijde van de woning met TV aansluiting is toegankelijk via openslaande taatsdeuren en bovendien beschikt deze kamer over een vast bureau. De bijkeuken welke als dagelijkse entree gebruikt wordt beschikt over aansluitingen wasmachine en droger en biedt ruimte voor een (tweede) garderobe. Tot slot treft u de gezellige woonkamer, eveneens met panoramaraam met uitzicht op tuin/bos.

De gehele begane grond is voorzien van een eiken visgraat parketvloer met vloerverwarming. Alle wanden en plafonds zijn voorzien van stucwerk en toegang tot de tuin/het terras via openslaande tuindeuren vanuit de keuken/eetkamer. Via een stoere betonnen trap met verlichting toegang naar de eerste verdieping.

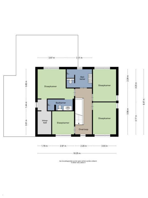
1e Verdieping

Overloop met toegang tot alle vertrekken, te weten vier slaapkamers en twee badkamers. De hoofdslaapkamer is aan de achterzijde gelegen en beschikt over een badkamer en een kleedkamer annex walk-in-closet. De luxe en fraai afgewerkte badkamer is voorzien van een inloop-/regendouche, hangcloset en design wastafel met ladekast. De walk-in-closet is voorzien van meubelmaatwerk kledingkasten. De hoofdslaapkamer beschikt over vaste vloerbedekking en tv aansluiting. Aansluitend aan de hoofdslaapkamer treft u de tweede badkamer voorzien van een inloopregendouche, hangcloset, dubbele designwastafel met ladekast en spiegel met verwarming en verlichting. Bijzonder detail is dat bij beide badkamers tegels en stucwerk naadloos in elkaar overlopen. Beide badkamers beschikken over elektrische vloerverwarming. Tot slot treft u twee royale kinderkamers aan de zijkant en één kinder-/werk/opslag kamer aan de voorzijde van de woning.

Tuin

Schitterende tuin met beukenhagen, gazon, terrassen voorzien van keramische tegels (ingemetseld) en een overstek ter plaatse van het terras direct grenzend aan de woning. Het perceel is afgeschermd door middel van een hekwerk met poort aan de achterzijde richting het bos. Zij tuin met volledig geïsoleerde (fietsen) berging en uitstortgootsteen voorzien van warm en koud wateraansluiting. Verder treft u twee buitenkraantjes (voor en achter) en een oprit met grint alsmede een pad naar de voordeur.

Algemeen

De woning is zeer luxe afgewerkt en beschikt naast de eerder genoemde vloerverwarming en gestuukte wanden en plafonds over een alarmsysteem, vlak afgewerkte plinten, uniform hang-/sluitwerk, aluminium kozijnen, warmtepomp met retourkoeling, 15 zonnepanelen, horren in drie slaapkamers en in de badkamer, rookmelders, wifiversterker op de verdieping en veel houten en aluminium luxaflex. Last but not least treft u door de gehele woning smaakvolle inbouw led verlichting.
Type woning:
Woonhuis
Soort woning
Eengezinswoning
Type woning
Vrijstaande woning
Beschikbaarheid
Verkocht
Prijs op aanvraag
Aanvaarding
In overleg
Inhoud
697 m3
Perceel
1075 m2
Woonoppervlakte
184 m2
Aantal kamers
6
Aantal slaapkamers
4
Gebouwgebonden buitenruimte
37 m2
Overig inpandige ruimte
14 m2
Bouwjaar
2019
Energielabel
A

Wilt u graag een volledige brochure ontvangen? Vul dan uw naam en emailadres in en we sturen u direct door naar de brochure.

Meer informatie over deze woning of een bezichtiging plannen?

Neem dan contact op met één van onze makelaars via 013 580 20 70 of stuur een mail naar info@gerritsemakelaardij.nl.