listing_gallery

Verkocht
Vraagprijs € 450.000

De Dommel 44

Goirle
  • 4 slaapkamers
  • 138 Woonoppervlakte
  • 255 m2
Op prachtige locatie, aan de achterzijde vrij gelegen aan groen treft u deze royaal opgezette hoekwoning met inpandige garage/berging en eigen oprit. De woning is ideaal gelegen aan de rand van de woonwijk "De Hellen". De woning is onder andere voorzien van een U-vormige tuingerichte woonkamer met open haard, woonkeuken, vier ruime slaapkamers op de eerste verdieping, badkamer en een open zolderruimte op de tweede verdieping. De woning is in een rustige en kindvriendelijke omgeving gelegen nabij diverse uitvalswegen.

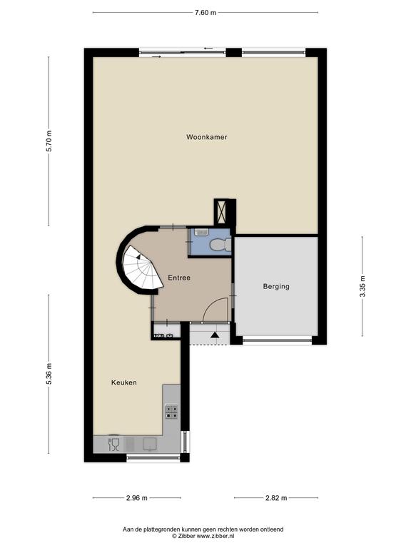
Indeling begane grond

Royale entree/hal voorzien van tegelvloer, trapopgang, meterkast en toilet (hangcloset) met fontein. Gezellige woonkeuken aan de voorzijde met fijn uitzicht en een keukenblok met inbouwapparatuur te weten: vaatwasser, 5-pits gaskookplaat met afzuigkap, combimagnetron en een granieten aanrechtblad. Doorloop naar de royale woonkamer met houten parketvloer, open haard en een schuifpui naar de tuin. Een deel van de garage is bij de woonkamer getrokken (voorzien van plavuizen vloer) waardoor deze nog groter is geworden. Tot slot een inpandige berging met loopdeur in sectionaaldeur. De berging is voorzien van elektra en verwarming.

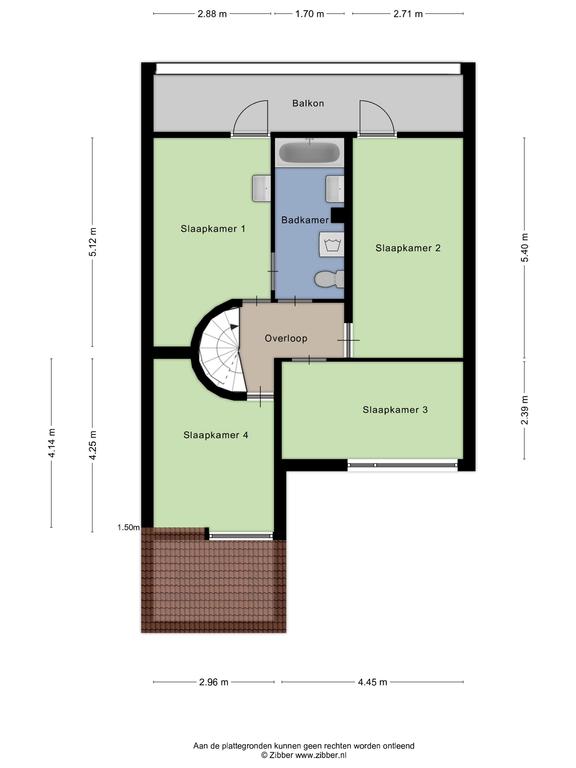
Eerste verdieping

In totaal vier slaapkamers, een badkamer en een vaste trap naar de tweede verdieping. De eerste slaapkamer beschikt over een wastafel met warm en koud water aansluiting, een vaste kast en toegang naar het balkon. Twee kamers aan de voorzijde en een vierde grote kamer met loopdeur naar het balkon is gelegen aan de achterzijde. Badkamer voorzien van toilet, ligbad, wastafel en inloopdouche.

Tweede verdieping

Via vaste trap bereikbaar. Zolder met Velux dakraam, slaapgedeelte en mogelijkheid tot uitbreiding (meerdere kamers). Tevens treft u hier aansluitingen wasapparatuur (wasmachine en droger) alsmede een CV combiketel (Atag).

Tuin

Riante achtertuin pal op het westen georiënteerd. De tuin beschikt over een gazon, terrassen, houten berging en een eigen achterom via de zijkant van de woning. Ter plaatse van de woonkamer een handmatig bedienbare zonwering.

Algemeen

* Kunststof kozijnen met dubbele beglazing (2003)
* De woning is echt op een toplocatie gelegen maar behoeft wel enige modernisering.
Type woning:
Woonhuis
Soort woning
Eengezinswoning
Type woning
Hoekwoning
Beschikbaarheid
Verkocht
Vraagprijs
€ 450.000
Koopconditie
Kosten koper
Aanvaarding
In overleg
Inhoud
407 m3
Perceel
255 m2
Woonoppervlakte
138 m2
Aantal kamers
5
Aantal slaapkamers
4
Gebouwgebonden buitenruimte
12 m2
Overig inpandige ruimte
31 m2
Bouwjaar
1978

Wilt u graag een volledige brochure ontvangen? Vul dan uw naam en emailadres in en we sturen u direct door naar de brochure.

Meer informatie over deze woning of een bezichtiging plannen?

Neem dan contact op met één van onze makelaars via 013 580 20 70 of stuur een mail naar info@gerritsemakelaardij.nl.