In de populaire en kindvriendelijke wijk Grobbendonck gelegen royale en zeer goed onderhouden twee onder één kapwoning met diepe oprit, carport, garage, Z-vormige woonkamer, complete half open keuken, vier slaapkamers en royale badkamer.
Door de centrale ligging van de woning is er een goede verbinding met diverse uitvalswegen. Via de nabij gelegen Tilburgseweg bereikt u in korte tijd het centrum van Tilburg of de snelwegen richting Breda, Eindhoven en ’s-Hertogenbosch. Het centrum van Goirle met diverse voorzieningen zoals restaurants, gezellige terrasjes en winkelcentrum De Hovel vindt u op loopafstand. Ook scholen, speelveldjes en groenvoorzieningen zijn daarnaast in de directe omgeving te vinden.
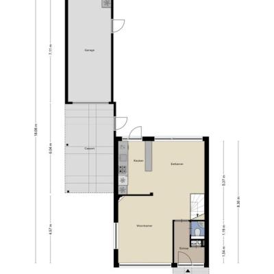
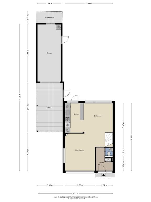
Indeling begane grond
Entree/hal voorzien van leisteen vloer, moderne meterkast en volledig betegeld hangcloset met fontein. Kenmerkend voor deze woningen is het glas in lood bij de voordeur. Toegang tot Z-vormige sfeervolle woon-/eetkamer met zitgedeelte aan de voorzijde voorzien van een houtkachel en eetgedeelte ter plaatse van de halfopen keuken. Volledig voorzien van een prachtige massief eiken houten vloer en ter plaatse van de keuken van een tegelvloer. De keuken is voorzien van een zeer goed onderhouden keukenblok met inbouwapparatuur te weten: vaatwasser (nieuwstaat), 1 1/2e spoelbak, vijf pits gaskookplaat met afzuigkap, combimagnetron, koelkast en een separate vriezer. Het aanrechtblad is uitgevoerd in marmer. Loopdeur naar de tuin.
Eerste verdieping
Trapopgang met glazen portaal welke toegang biedt tot de overloop. In totaal treft u hier drie slaapkamers en de badkamer. De hoofdslaapkamer beschikt over kunststof kozijnen met dubbel glas, wat ook geldt voor de tweede slaapkamer, beiden gesitueerd aan de achterzijde van de woning. De derde royale slaapkamer bevindt zich aan de voorzijde. Deze kamer beschikt over een houten kozijn met dubbel glas en een wastafel. De gehele verdieping is voorzien van een laminaatvloer. Tot slot een prachtige badkamer voorzien van vloerverwarming, een ligbad (bubbelbad), hangcloset, douche in cabine, wastafel in meubel en een decorradiator. De badkamer is volledig betegeld.
Tweede verdieping
Via vaste trap bereikbaar. Hier treft u een portaal met toegang tot twee bergruimtes. De eerste beschikt over een velux dakraam en de tweede is in gebruik als wasruimte. Hier treft u de opstelling wasapparatuur alsmede de opstelling van de CV combiketel (Nefit Trendline 2013). Tot slot een grote vierde slaapkamer met dakkapel. Deze is uitgevoerd in kunststof. Verder treft u hier veel bergruimte.
Tuin
Keurig aangelegde voor,- en achtertuin. Aan de voorzijde een diepe oprit, carport en toegang tot de garage. Via een poort toegang tot de achtertuin op het oosten gesitueerd. Ook de achtertuin is fraai aangelegd met bestrating/terrassen en borders. Verder treft u hier een elektrisch zonnescherm, borders, houtopslag, buitenkraan en een tuinhuis.
Algemeen
* De gehele woning is voorzien van rolluiken behalve de toegangsdeuren.
* Zeer goed onderhouden woonhuis op toplocatie
* Aanvaarding ca. eind juni 2024                        
                        
                            
                                                            
                                    
                                        Soort woning
                                    
                                    
                                        Eengezinswoning                                    
                                 
                                
                                    
                                        Type woning
                                    
                                    
                                        Twee onder een kapwoning                                    
                                 
                            
                            
                                                            
                                
                                    
                                        Koopconditie
                                    
                                    
                                        Kosten koper                                    
                                 
                            
                            
                            
                                                            
                                                                                        
                            
                            
                            
                                                            
                            
                                                            
                                    
                                        Gebouwgebonden buitenruimte
                                    
                                    
                                        21 m2
                                    
                                 
                            
                            
                            
                                                            
                                                     
                        
                        
                        
                                                                                                Wilt u graag een volledige brochure ontvangen? Vul dan uw naam en emailadres in en we sturen u direct door naar de brochure.