Luxe en instapklare woning in Loon op Zand
Net ten noorden van Tilburg ligt het groene en sfeervolle Loon op Zand, vooral bekend vanwege Nationaal Park De Loonse en Drunense Duinen. Dit prachtige natuurgebied met uitgestrekte bossen en duinen is vrij toegankelijk en biedt eindeloze mogelijkheden voor recreatie. Loon op Zand staat daarnaast bekend om zijn actieve en diverse verenigingsleven en de gunstige ligging ten opzichte van Tilburg, ’s-Hertogenbosch en Breda.
Deze luxe woning is in 2020 gebouwd en combineert moderne voorzieningen met hoogwaardige afwerking. Hier geniet je van optimaal wooncomfort en een instapklare afwerking.
INDELING
Begane grond
Bij binnenkomst in de woning kom je direct in de hal, die toegang biedt tot de woonkamer, het toilet en de trap naar de eerste verdieping.
De royale woonkamer is opgedeeld in een zit- en eetgedeelte, waarbij de strakke afwerking van wanden en vloer zorgt voor een mooi samenhangend geheel. Dankzij de grote raampartijen en de openslaande deuren naar de tuin is er volop natuurlijk licht. Daarnaast is de gehele benedenverdieping voorzien van elektrisch bedienbare luxaflex en een elektrisch zonnescherm voor extra comfort.
Aan de voorzijde van de woning bevindt zich de ruime, open keuken. Deze moderne keuken is van alle gemakken voorzien, inclusief hoogwaardige inbouwapparatuur, veel opbergruimte en een luxe afwerking. Het keukeneiland biedt extra werkruimte en maakt deze keuken niet alleen praktisch, maar ook een echte blikvanger. Dit is de ideale plek voor kookliefhebbers en om gasten te ontvangen.
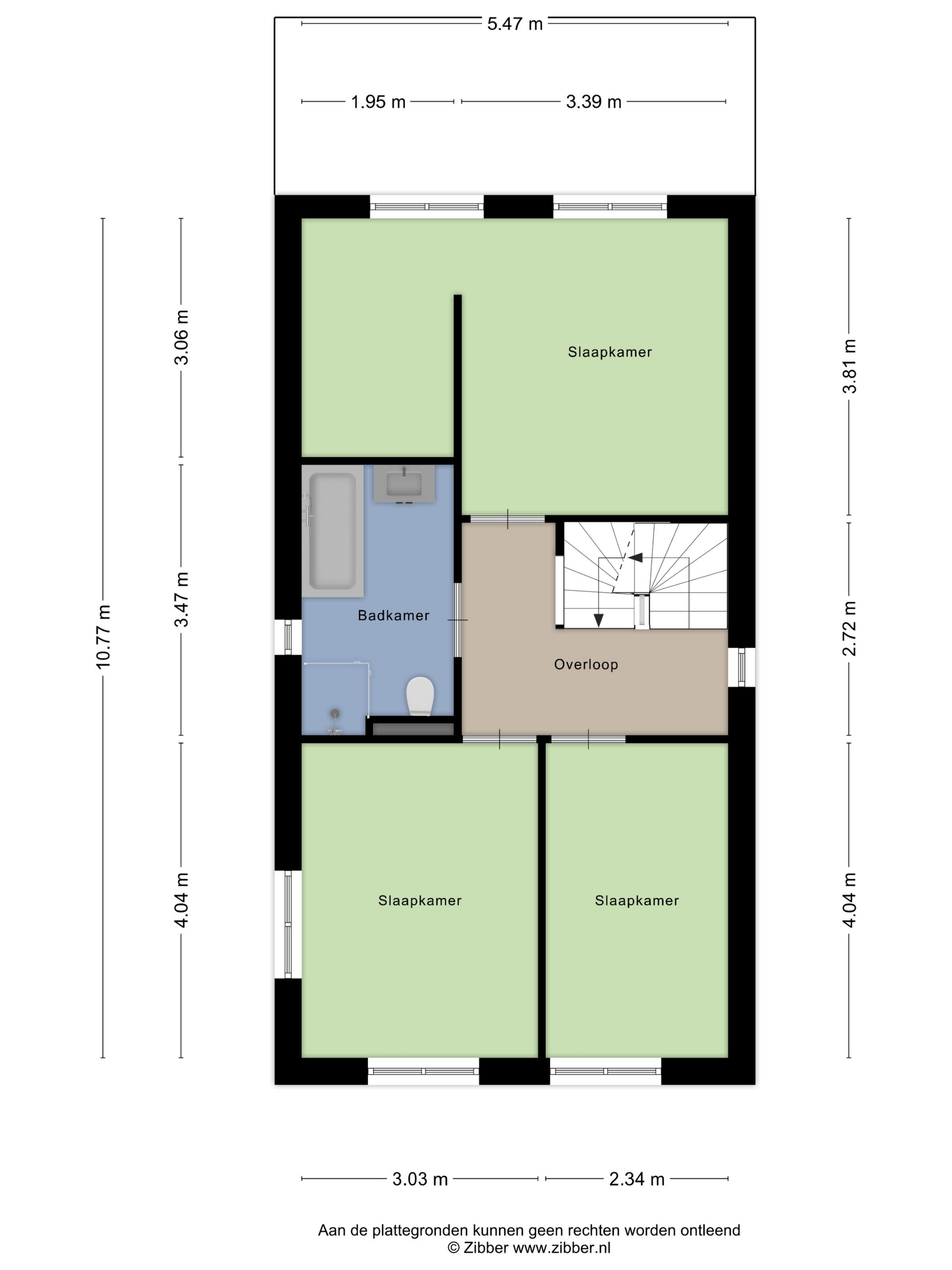
Eerste verdieping
Op de eerste verdieping bevinden zich drie ruime slaapkamers en een luxe badkamer. De grootste slaapkamer biedt voldoende ruimte voor een inloopkast, perfect voor extra opbergruimte. De overige twee slaapkamers zijn eveneens ruim opgezet en flexibel in te delen.
De badkamer is modern en stijlvol uitgevoerd met een inloopdouche, een luxe ligbad en een tweede toilet. De slaapkamer aan de achterzijde is bovendien voorzien van elektrische rolluiken.
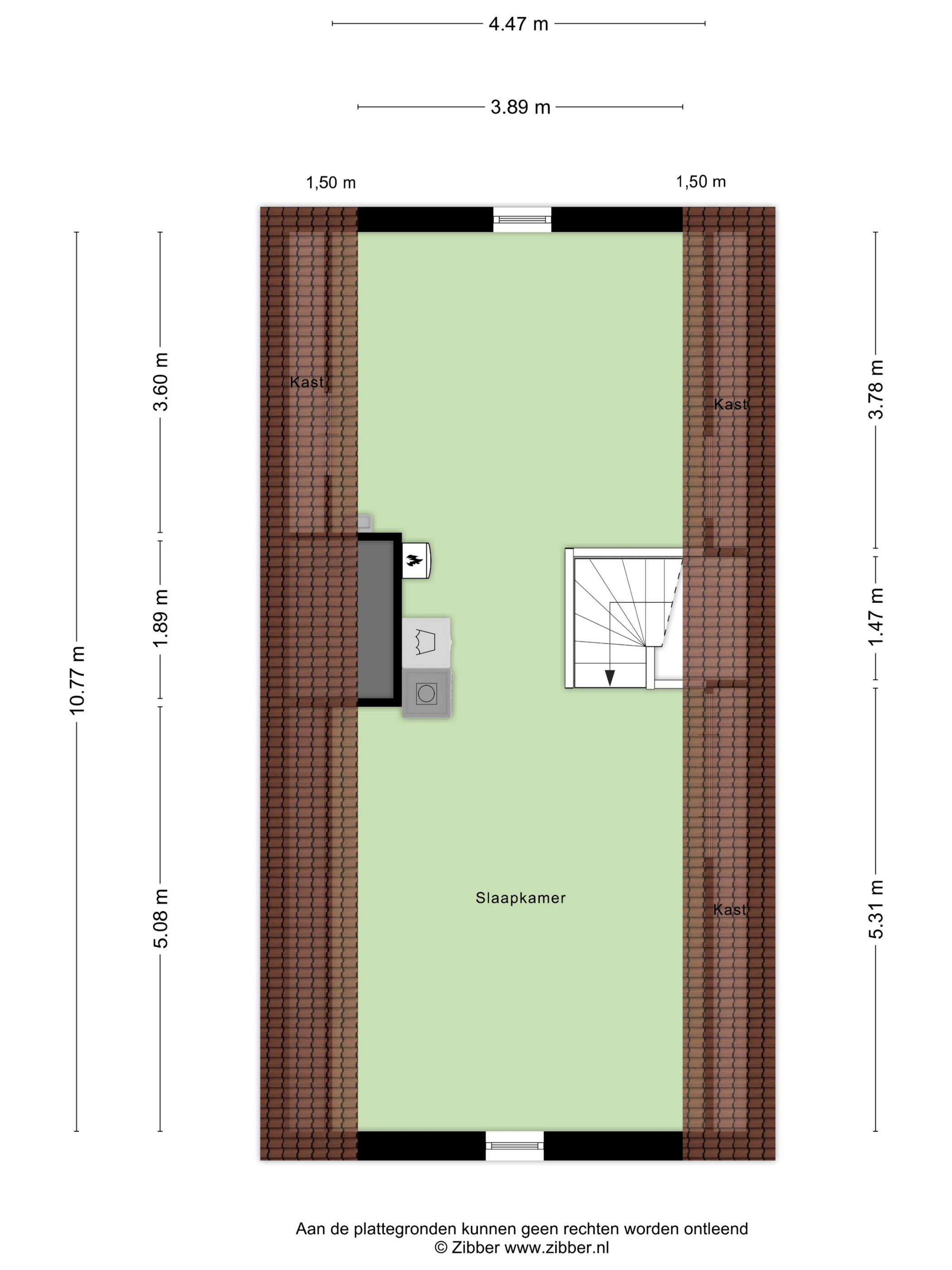
Tweede verdieping
De tweede verdieping biedt volop mogelijkheden en kan eenvoudig worden ingericht als vierde of zelfs vijfde slaapkamer. De hoge schuine plafonds zorgen voor een speelse en open uitstraling, terwijl de ruimte zich ook uitstekend leent voor een thuiskantoor, fitnessruimte of hobbykamer. Dankzij de flexibele indeling kan deze verdieping geheel naar wens worden benut.
Tuin
De diepe achtertuin is gelegen op het oosten en biedt zowel in de ochtend als middag veel zonlicht. De strak aangelegde tuin heeft een moderne uitstraling met voldoende ruimte voor een grote buitentafel en extra zitplekken. Een eyecatcher is de luxe overkapping bij het tuinhuisje, waar je het hele jaar door comfortabel kunt genieten. Daarnaast is er een extra bergruimte aan de zijkant van het huis voor het opbergen van tuingereedschap en andere spullen.
Garage en oprit
De ruime garage biedt niet alleen plek voor opslag, maar is ook ideaal als werkruimte. De aanwezige werkbank met opbergruimte maakt deze ruimte extra functioneel. De garage is bereikbaar vanaf de oprit, vanuit de woning en via de tuin, wat zorgt voor veel gebruiksgemak. Op de oprit is voldoende parkeergelegenheid, en er is een elektrische laadpaal aanwezig.
Kenmerken
* Woonoppervlak: 173 m²
* Voorzien van 14 zonnepanelen, energielabel A
* Eigen oprit met laadpaal
* Gelegen in een rustige en kindvriendelijke woonwijk
* Nabij winkels, scholen en uitvalswegen
* Instapklaar en volledig geïsoleerd 
Kortom, een instapklare woning met alle luxe en ruimte die je zoekt!                        
                        
                            
                                                            
                                    
                                        Soort woning
                                    
                                    
                                        Eengezinswoning                                    
                                 
                                
                                    
                                        Type woning
                                    
                                    
                                        Geschakelde woning                                    
                                 
                            
                            
                                                            
                                
                                    
                                        Koopconditie
                                    
                                    
                                        Kosten koper                                    
                                 
                            
                            
                            
                                                            
                                                                                        
                            
                            
                            
                                                            
                            
                            
                                                            
                                    
                                        Overig inpandige ruimte
                                    
                                    
                                        20 m2
                                    
                                 
                            
                            
                                                            
                                                     
                        
                        
                        
                                                                                                Wilt u graag een volledige brochure ontvangen? Vul dan uw naam en emailadres in en we sturen u direct door naar de brochure.