listing_gallery

Verkocht
Vraagprijs € 365.000

Kriekenakker 50

Moergestel
  • 4 slaapkamers
  • 125 Woonoppervlakte
  • 239 m2
Ruime, sfeervolle en uitgebouwde hoekwoning (3-onder-1 kap) met eigen oprit/carport, berging en achterom. De woning is gelegen aan een plein met speelfaciliteiten en veel groen. Er zijn voldoende parkeermogelijkheden aanwezig. De omgeving is zeer kindvriendelijk en de woning ligt nabij het buitengebied tussen Moergestel en Oisterwijk.

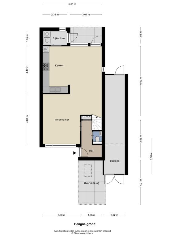
Indeling begane grond
 
Entree in hal met garderoberuimte, toiletruimte met wandcloset en modern fonteintje (deze is vernieuwd in 2020), meterkast en trapopgang. Vanuit de hal bereikt u de Z-vormige woonkamer met houten vloer en een ruime zithoek aan de voorzijde met vrij uitzicht en eetkamer aan de achterzijde. Vanuit de woonkamer middels een deur toegang tot het overdekte terras en de achtertuin.
Royale open keuken met diverse inbouw apparaten zoals; vaatwasser (Bosch 2021), koelkast (AEG 2021), combi-oven (Siemens), 6 pits-kookplaat en afzuigkap. De keuken is in een hoekopstelling geplaatst. Vanuit de keuken is de bijkeuken bereikbaar, waar de aansluiting voor de was apparatuur aanwezig is en een deur naar de tuin. 

Eerste verdieping


Overloop met de trapopgang naar de 2e verdieping. Op de eerste verdieping bevinden zich de drie ruime slaapkamers en een vernieuwde badkamer. De badkamer is in 2018 gemoderniseerd en heeft een ligbad met douchescherm, zwevend closet, en een dubbele wastafel.
Aan de voorzijde is een ruime slaapkamer gesitueerd met wastafel en inbouwkast.

De twee grootste slaapkamers bevinden zich aan de achterzijde van de woning en zijn voorzien van Velux dakramen en gestucte wanden en plafonds.


Tweede verdieping

Hier vindt u de vierde ruime slaapkamer voorzien van een dakkapel en een wastafel.
Op de voorzolder treft u de opstelling van de C.V. combiketel.


Buiten


De woning heeft aan de voorzijde een carport met een bergzolder, een extra parkeerplaats voor de woning en toegang tot de houten berging (gelegen naast de woning). In de achtertuin is over de volle breedte een houten overkapping geplaatst met een deur naar de achtergelegen brandgang. De overkapping is voorzien van elektra.
De tuin is in 2020 volledig nieuw aangelegd met moderne bestrating, kunstgras en volledig omsloten door een schutting/overkapping.

 
Algemeen:

- De woning is aan de achterzijde op de begane grond en de eerste verdieping uitgebouwd.
- Ruime onderhoudsvriendelijke achtertuin met grote houten overkapping.
- Badkamer is vernieuwd in 2018.
- Ideale woning voor een jong gezin, gezien de ligging in een kindvriendelijke wijk.

Bouwjaar: 1982
Inhoud: ca 460m3
Perceeloppervlakte: 239m2
Woonoppervlakte: 125m2
 
 
Type woning:
Woonhuis
Soort woning
Eengezinswoning
Type woning
Hoekwoning
Beschikbaarheid
Verkocht
Vraagprijs
€ 365.000
Koopconditie
Kosten koper
Aanvaarding
In overleg
Inhoud
461 m3
Perceel
239 m2
Woonoppervlakte
125 m2
Aantal kamers
5
Aantal slaapkamers
4
Gebouwgebonden buitenruimte
34 m2
Overig inpandige ruimte
3 m2
Bouwjaar
1982
Energielabel
D

Wilt u graag een volledige brochure ontvangen? Vul dan uw naam en emailadres in en we sturen u direct door naar de brochure.

Meer informatie over deze woning of een bezichtiging plannen?

Neem dan contact op met één van onze makelaars via 013 580 20 70 of stuur een mail naar info@gerritsemakelaardij.nl.