listing_gallery

Verkocht
Vraagprijs € 340.000

Abel Tasmanstraat 20

Tilburg
  • 3 slaapkamers
  • 106 Woonoppervlakte
  • 138 m2
ZEER SFEERVOLLE, GEMODERNISEERDE VOOROORLOGSE TUSSENWONING MET VOORTUIN, FIJNE ACHTERTUIN EN STENEN BERGING
• BREDE EN RUSTIGE STRAAT, OP LOOPAFSTAND VAN HET CENTRUM
• ORIGINELE ELEMENTEN, ZOALS SCHUIFDEUREN, WANDTEGELS EN TERRAZZO VLOEREN, GLAS-IN-LOOD EN SERVIESKAST.
• WOONKAMER EN SUITE MET ERKER EN HOUTKACHEL
• TWEE RUIME SLAAPKAMERS OP DE 1E VERDIEPING
• VASTE TRAP NAAR 2E VERDIEPING MET MOOIE ZOLDERRUIMTE MET DAKKAPEL EN 2 DAKRAMEN.
• SAMEN MET NUMMER 18 POORT NAAR DE ACHTERTUIN.

PRETTIG WONEN
De woning is gelegen in de Ontdekkingsreizigersbuurt in wijk Oerle met overwegend jaren 30-bebouwing, op loop-en fietsafstand van het centrum, Piushaven, Spoorzone en het Leijpark. De uitvalswegen richting ’s-Hertogenbosch, Eindhoven en Breda zijn gemakkelijk en snel bereikbaar via de Ringbaan Zuid. Diverse openbare voorzieningen, scholen, sportfaciliteiten, uitgaansgelegenheden en het Centraal Station liggen vlakbij en zijn vlot te bereiken. Kortom: wonen in de stad met alle voorzieningen, uitgaansmogelijkheden en groen in de directe nabijheid.

INDELING
begane grond
Via de originele voordeur (met eveneens originele bel) kom je in de hal (terrazzo vloer) met trapopgang. Woonkamer-en-suite met erker (met glas-in-lood , vaste kasten en schuifdeuren, schoorsteenkanaal met marmeren schouw en houtkachel. Via openslaande deuren is er toegang naar de achtertuin.
De keuken is ingericht met een donker keukenblok voorzien van een terrazzo blad met spoelbak en vaatwasser. Verder zijn er een 5-pits gasfornuis met mechanische ventilatie, een los keukenblok met lades en koelkast, de originele servieskast en een verdiepte trapkast (met bovenaan de trap een vernieuwde meterkast v.v. 5 groepen en aardlek). Portaal met toegang naar de toiletruimte met hoekfonteintje en mechanische ventilatie en naar de badkamer met ligbad, inloopdouche, wastafel en mechanische ventilatie. In een kast staan de wasmachine en c.v-combiketel (2011) opgesteld.

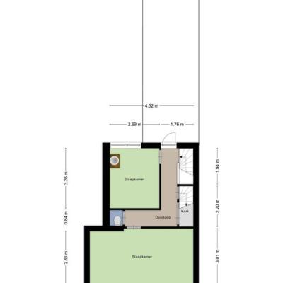
1e verdieping
Overloop met toiletruimte, vaste kast, deur naar plat dak en trapopgang naar 2e verdieping. Op deze verdieping zijn 2 ruime slaapkamers. De slaapkamer aan de voorzijde is boven de poort gelegen en is ca. 17 m². De slaapkamer aan de achterzijde is ca. 9 m² en heeft een wastafel.

2e verdieping
Via vaste trap te bereiken sfeervolle, ruime zolderkamer met 2 dakramen, dakkapel en bergruimten in de knieschotten.

FIJNE TUIN met stenen berging.

De zeer sfeervolle achtertuin is ingericht met sierbestrating, grind, tegels, hortensia’s en een pergola met een blauwe regen. Verder zijn er een aangebouwde stenen berging, houtopslag, containerhoek en tuin side tafel. De tuin is te bereiken middels de naast de woning tuin gelegen afsluitbare poort die met de woning nummer 18 wordt gedeeld. De voortuin is ingericht met sierbestrating, grind, een boom en struiken.

ALGEMEEN
• De woning is in de loop der jaren gemoderniseerd met behoud van het originele karakter.
• Eigentijds afwerkingsniveau; de vloeren zijn voorzien van houten delen, laminaat en (terrazzo) tegels. De plafonds en muren zijn afgewerkt met stucwerk (2021).
• Energielabel E (label opgemaakt in mei 2020), maar door gebruik van de houtkachel is er een laag gasverbruik.
• De woning is voorzien van houten kozijnen/ramen met grotendeels dubbel glas en HR++-glas.
• Het hoofddak en de 2e verdiepingsvloer zijn geïsoleerd met glaswol.
• De verwarming en warmwatervoorziening van de woning geschiedt middels een c.v.-combiketel (Atag 2011).
• Parkeren middels parkeervergunning (van 9:00-22:00 uur m.u.v. zondag). Kosten 1e vergunning € 48 per jaar.
• In de koopovereenkomst worden een asbestclausule en een ouderdomsclausule opgenomen.
Type woning:
Woonhuis
Soort woning
Eengezinswoning
Type woning
Tussenwoning
Beschikbaarheid
Verkocht
Vraagprijs
€ 340.000
Koopconditie
Kosten koper
Aanvaarding
In overleg
Inhoud
400 m3
Perceel
138 m2
Woonoppervlakte
106 m2
Aantal kamers
4
Aantal slaapkamers
3
Gebouwgebonden buitenruimte
1 m2
Overig inpandige ruimte
7 m2
Bouwjaar
1936
Energielabel
E

Wilt u graag een volledige brochure ontvangen? Vul dan uw naam en emailadres in en we sturen u direct door naar de brochure.

Meer informatie over deze woning of een bezichtiging plannen?

Neem dan contact op met één van onze makelaars via 013 580 20 70 of stuur een mail naar info@gerritsemakelaardij.nl.