listing_gallery

Verkocht
Vraagprijs € 399.000

Arendplein 12

Tilburg
  • 3 slaapkamers
  • 90 Woonoppervlakte
  • 236 m2
Op het gewilde en erg leuke Arendplein gelegen schitterend afgewerkte hoekwoning op een ruim perceel met garage en berging. De woning is in 2007 en 2010 ingrijpend verbouwd, smaakvol gemoderniseerd en daarna op diverse punten goed bijgehouden.

Het Arendplein is niet zomaar een plein; het is hier heerlijk rustig en vanuit de woonkamer kijkt u uit over de parkachtige omgeving. Kortom: een heerlijke plek om te wonen, op loopafstand van de Piushaven, het stadscentrum en nabij alle uitvalswegen!

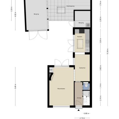
Indeling begane grond
Entree/hal met toilet met fontein, meterkast en trapopgang. Open living en keuken met centraal de eetkamer met op maat gemaakte hoge tafel met stoelen. De woonkamer ligt aan de voorzijde en beschikt over een fraaie parketvloer (mahonie), een moderne gashaard en openslaande tuindeuren. De eetkamer en de keuken beschikken over een tegelvloer met vloerverwarming en via deze zijde eveneens openslaande tuindeuren naar het terras. De voormalige berging werd bij de keuken betrokken waar nu het moderne keukenblok met inbouwapparatuur is opgesteld. Hier treft u onder andere een gasfornuis (2008), vaatwasser (2017/2018) en een oven (2020).

1e verdieping
Twee grote slaapkamers en vernieuwde badkamer met tegelvloer met vloerverwarming, inloopdouche met vloerverwarming, toilet en wastafel in meubel. Een loopdeur biedt toegang tot het balkon.

2e Verdieping
Via vaste trap bereikbare bergzolder / derde slaapkamer. Voorzolder met wasmachineaansluiting en opstelling CV combiketel (Remeha, 2003) alsmede unit vloerverwarming ten behoeve van eetkamer en keuken. Grote derde slaap-/werkkamer met Velux-dakraam en vaste kast.

Tuin
Royale plaats bereikbaar via elektrisch bedienbare poort met garage voorzien van openslaande deuren. Stenen berging en tot slot een gezellige overkapping met lichtkoepel en verlichting waar het heerlijk genieten is! Het dak van de overkapping is in 2018 vernieuwd (EPDM).

Algemeen

• In 2007 en 2010 verbouwd, dakkapel bitumen dak in 2020 vernieuwd;
• Meterkast vervangen en deels bedrading vervangen daar waar nodig;
• Badkamer en keuken vernieuwd alsmede toilet begane grond;
• Garagedeuren vervangen;
• Deel berging bij de keuken betrokken;
• Nieuwe kozijnen met dubbel gelaagd glas;
• Driepuntsluitingen bij de openslaande tuindeuren;
• Nieuwe voordeur met driepuntsluiting;
• Gehele woning gestukadoord;
• Elektrische poort;
• Lichtkoepel keuken.
Type woning:
Woonhuis
Soort woning
Eengezinswoning
Type woning
Hoekwoning
Beschikbaarheid
Verkocht
Vraagprijs
€ 399.000
Koopconditie
Kosten koper
Aanvaarding
In overleg
Inhoud
338 m3
Perceel
236 m2
Woonoppervlakte
90 m2
Aantal kamers
6
Aantal slaapkamers
3
Externe bergruimte
13 m2
Gebouwgebonden buitenruimte
20 m2
Overig inpandige ruimte
5 m2
Bouwjaar
1953
Energielabel
E

Wilt u graag een volledige brochure ontvangen? Vul dan uw naam en emailadres in en we sturen u direct door naar de brochure.

Meer informatie over deze woning of een bezichtiging plannen?

Neem dan contact op met één van onze makelaars via 013 580 20 70 of stuur een mail naar info@gerritsemakelaardij.nl.