Charmante tussenwoning in De Blaak: een ideale plek om thuis te komen!
In de geliefde woonwijk De Blaak vind je deze sfeervolle tussenwoning, perfect gelegen aan de rand van een park. Hier geniet je van rust, ruimte en comfort, gecombineerd met de gezelligheid van een fijne buurt. Deze woning heeft alles in huis om je direct thuis te voelen!
Wat maakt deze woning bijzonder?
• Toplocatie: Aan de achterzijde geheel vrij gelegen aan een prachtig park. Ideaal voor wandelingen, een potje voetbal of het uitlaten van de hond.
• Eigen oprit: Twee parkeerplaatsen op eigen terrein – altijd plek voor de auto!
• Zonnige tuin: De op het zuidoosten gelegen achtertuin biedt volop zon en is ingericht met een sfeervol terras, een overkapping met bar, en een gezellige zithoek.
Indeling van de woning
Begane grond:
Bij binnenkomst word je ontvangen in de entreehal met garderobe, een modern toilet en een meterkast met voldoende groepen. De ruime woonkamer aan de voorzijde heeft een prachtige erker, terwijl de achterzijde is uitgebouwd met een gezellige eetkamer en openslaande tuindeuren naar de tuin. De keuken, centraal gelegen in hoekopstelling, beschikt over inbouwapparatuur zoals een koelkast, vaatwasser, combimagnetron, 5-pits gaskookplaat met afzuigkap, en een handige bar.
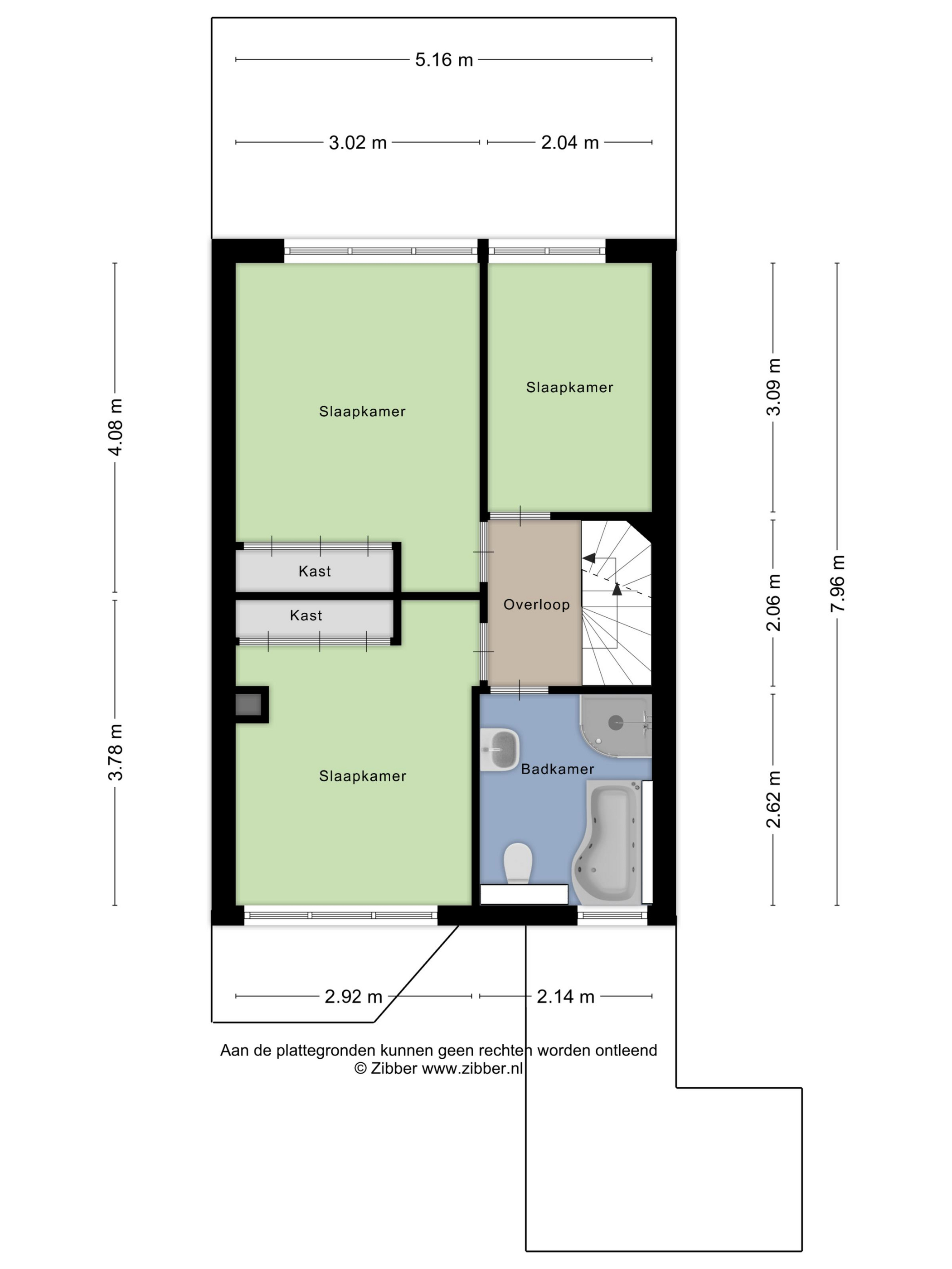
Eerste verdieping:
Hier vind je drie fijne slaapkamers (ca. 10 m², 9 m² en 7 m²), waarvan twee aan de achterzijde. De slaapkamer aan de voorzijde is voorzien van airconditioning. De moderne badkamer (2003) biedt alles wat je wenst: een ligbad, aparte douche, hangtoilet, wastafel en designradiator.
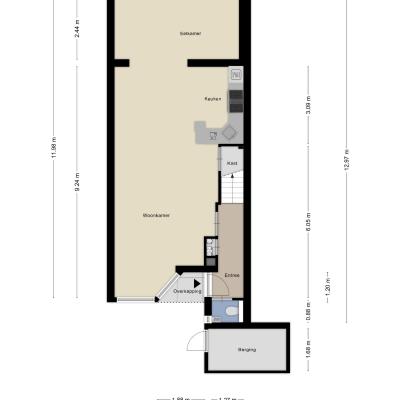
Tweede verdieping:
De vaste trap brengt je naar de praktische zolder, ingericht als bergruimte met aansluitingen voor wasmachine en droger. Hier bevindt zich ook de ATAG CV-ketel (2012). Dankzij schuifwanden is er volop opbergruimte en de vloer is afgewerkt met laminaat.
Buitenleven
De fraai aangelegde achtertuin op het zuidoosten is een echte eyecatcher. Een terras met sierbestrating en borders loopt door naar de houten overkapping met bar, een ideale plek om te ontspannen of vrienden te ontvangen. Direct grenzend aan het park biedt de tuin een groen en vrij uitzicht.
Algemeen:
De woning is door de jaren heen altijd goed onderhouden en verbeterd. Hardhouten kozijnen met dubbele beglazing, diverse horren, rolluiken, platte daken (kunststof) en schilderwerk zowel binnen als buiten.
Samengevat:
Deze fijne tussenwoning in De Blaak combineert ruimte, comfort en een geweldige ligging. Of je nu wilt genieten van de zon in je tuin, met je gezin het park wilt verkennen, of zoekt naar een huis met karakter en praktische indeling – dit is jouw kans!
Laat je verrassen en plan snel een bezichtiging. Deze woning wil je niet missen!                        
                        
                            
                                                            
                                    
                                        Soort woning
                                    
                                    
                                        Eengezinswoning                                    
                                 
                                
                            
                            
                                                            
                                
                                    
                                        Koopconditie
                                    
                                    
                                        Kosten koper                                    
                                 
                            
                            
                            
                                                            
                                                                                        
                            
                            
                            
                            
                                                            
                                    
                                        Gebouwgebonden buitenruimte
                                    
                                    
                                        2 m2
                                    
                                 
                            
                                                            
                                    
                                        Overig inpandige ruimte
                                    
                                    
                                        18 m2
                                    
                                 
                            
                            
                                                            
                                                     
                        
                        
                        
                                                                                                Wilt u graag een volledige brochure ontvangen? Vul dan uw naam en emailadres in en we sturen u direct door naar de brochure.