Unieke en prachtig vooroorlogs halfvrijstaand woonhuis met sfeervolle stadstuin aan de Boerhaavestraat op de hoek met de Gerard van Swietenstraat in gewilde wijk Hoogvenne. Op loopafstand van het stadscentrum, de Piushaven en de Spoorzone maar ook nabij de uitvalswegen en het prachtige Moerenburg gelegen! Het woonhuis is in 2001 gerenoveerd, uitgebouwd en sindsdien met zorg onderhouden.
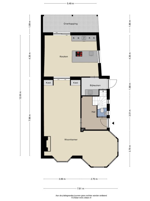
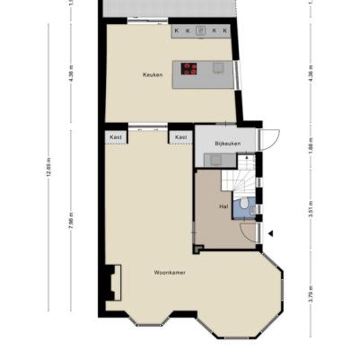
Indeling begane grond
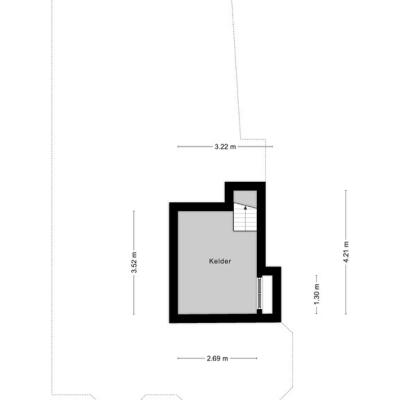
Overdekte stijlvolle entree naar hal met garderobe, toilet en prachtige trappenhal. Het toilet is voorzien van een wandcloset en fonteintje (Duravit Starck 2). Vanuit de hal door middel van dubbele deuren toegang tot de woonkamer. De living is voorzien van een antieke schouw met gashaard en een rustieke hardhouten planken vloer. De open haard, het glas-in-lood, de hoge plafonds en de paneeldeuren geven de kamer de typische jaren '30 sfeer en de voor dit huis kenmerkende halfronde erker alsmede de maatwerk vaste kasten maken de inrichting werkelijk uniek. Aansluitend en via de prachtige op maat gemaakte vaste kastenwand met schuifdeuren toegang tot de sfeervolle woonkeuken. De woonkeuken met openslaande tuindeuren naar het terras is voorzien van een imposant kookeiland met een Belgisch hardstenen aanrechtblad met spoelbak uit een stuk gefabriceerd. De inbouwkeuken is voorzien van een combimagnetron, oven, vaatwasser, koelkast, inductiekookplaat en afzuigkap. Verder beschikt de keuken over veel bergruimte. Aansluitend een betegelde bijkeuken met aansluitingen voor wasmachine en droger. Tweede keukenblok en een loopdeur naar buiten en toegang tot de kelder. De kelder biedt veel ruimte is heerlijk koel en droog.
Eerste verdieping
Via prachtige trappenhal komt u op de overloop met Amerikaans eiken houten vloer. Heerlijk royale hoofdslaapkamer in open verbinding met de walk-in-closet en openslaande deuren naar het enorme dakterras. Tweede royale slaapkamer eveneens met openslaande tuindeuren naar klein balkon en verbonden met de hoofdslaapkamer door middel van schuifdeuren. Tot slot een tijdloze badkamer voorzien van enorm veel lichtinval dankzij de vele raampartijen. Deze luxe badkamer is voorzien van een toilet, twee design wastafels (Duravit Starck 2), vrijstaand bad (Hoesch Starck 2) en een inloopdouche. Al het sanitair is voorzien van luxe mengkranen. De badkamer is voorzien van vloerverwarming en mechanische ventilatie.
Tweede verdieping
Via de schitterende bordestrap toegang tot een ruime overloop met bergruimte / vaste kastenwand. De meest in het oog springende kamer van de gehele woning is de fantastische torenkamer met hoge plafonds en de vele raampartijen die dit tot de ultieme kinder,- of werkkamer maken! Tot slot een tweede slaapkamer met velux dakraam en vaste kasten onder de kap. De gehele verdieping is voorzien van een witte laminaatvloer en de kap is geïsoleerd.
Tuin
Fraai aangelegde privacybiedende stadstuin rondom het woonhuis. De veranda, in het verlengde van de woonkeuken, zorgt voor een aangename sfeer in de stadstuin. Grotendeels voorzien van fraaie bestrating en deels voorzien (aan de zijkant) van kunstgras en een houten tuinhuis voorzien van elektra. Verder vanuit de tuin een achterom naar de bijkeuken.
Het geheel is afgesloten door middel van een smeedijzeren hekwerk met poort. De platanen en het vele groen in de omgeving bieden privacy.
Algemeen
* Houten kozijnen met dubbele beglazing, deels glas-in-lood met voorzetramen;
* Dakisolatie;
* Zinken hemelwaterafvoeren;
* Alarminstallatie;
* Vloerverwarming in de keuken en de badkamer;
* Gehele woning voorzien van stucwerk plafonds en muren.                        
                        
                            
                                                            
                                
                                    
                                        Type woning
                                    
                                    
                                        Halfvrijstaande woning                                    
                                 
                            
                            
                                                            
                                
                                    
                                        Koopconditie
                                    
                                    
                                        Kosten koper                                    
                                 
                            
                            
                            
                                                            
                                                                                        
                            
                            
                            
                                                            
                            
                                                            
                                    
                                        Gebouwgebonden buitenruimte
                                    
                                    
                                        12 m2
                                    
                                 
                            
                                                            
                                    
                                        Overig inpandige ruimte
                                    
                                    
                                        10 m2
                                    
                                 
                            
                            
                                                            
                                                     
                        
                        
                        
                                                                                                Wilt u graag een volledige brochure ontvangen? Vul dan uw naam en emailadres in en we sturen u direct door naar de brochure.