In een rustige straat, aan een kindvriendelijk pleintje, recentelijk voorzien van nieuwe speeltoestellen, treft u deze prachtige, royale en gemoderniseerde twee-onder-één kapwoning met garage aan.
Deze heerlijke gezinswoning is gelegen in De Blaak nabij alle voorzieningen zoals basisscholen, winkels, sportverenigingen alsmede vlakbij de uitvalswegen richting Eindhoven, Breda en Den Bosch.
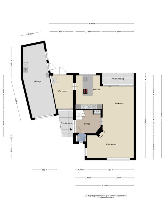
INDELING
Begane grond
Royale entree/hal met garderobe, meterkast en een gemoderniseerd toilet met fontein. Toegang tot de prachtige L-vormige living, voorzien van gashaard, houten vloer en een groot panorama raam aan de voorzijde met geweldig (uit)zicht op het speelpleintje. Dit raam is voorzien van een elektrisch zonnescreen. Het zijraam ter plaatse van de oprit is voorzien van glas in lood met een rolluik. Vervolgens treft u het royale eetgedeelte met een schuifpui naar het terras. 
Aansluitend de prachtige woonkeuken met kookeiland, voorzien van alle denkbare inbouwapparatuur, te weten: inductiekookplaat met afzuigkap, wijnklimaatkast, combi-oven met magnetronfunctie, combi-oven met stoomoven, ingebouwd koffiezetapparaat, koelkast, vriezer, vaatwasser en een Quooker. Het aanrechtblad is uitgevoerd in composiet. 
Vanuit de keuken heeft u toegang tot een aangrenzende ruimte, nu ingericht als werkkamer. Dit is een erg praktische ruimte waar u heerlijk rustig kunt werken, met zicht op de voorzijde/oprit. Tevens treft u hier een aansluiting voor de wasapparatuur alsmede de opstelling unit vloerverwarming. Via een loopdeur heeft u toegang tot de tuin. De begane grond is volledig voorzien van een houten vloer incl. vloerverwarming. Met uitzondering van de werkkamer, hier ligt een tegelvloer incl. vloerverwarming. 
1e verdieping
Overloop met toegang tot drie gigantische slaapkamers, waarvan één toegang biedt tot een overdekt balkon. Royale ouderslaapkamer met toegang tot de volledig gemoderniseerde badkamer (tevens bereikbaar via de overloop). De luxe badkamer is voorzien van een dubbele inloopdouche, twee waskommen in een fraai meubel, spiegel incl. verlichting en verwarming en een wandcloset. Voor een behaaglijke warmte in deze ruimte zorgt de elektrische vloerverwarming en designradiator. Het plafond is voorzien van dimbare inbouwspots en mechanische ventilatie. 
De eerste verdieping is volledig voorzien van een laminaatvloer. 
2e verdieping
Voorzolder met (tweede) aansluiting voor de wasapparatuur en opstelling van de Cv-combiketel (Remeha, 2014) alsmede veel bergruimte achter de knieschotten. Toegang tot een enorme vierde slaapkamer met diverse mogelijkheden, waaronder het splitsen van deze kamer in twee kamers, kantoor of het creëren van een extra zitkamer. Deze ruimte beschikt over een vernieuwd Velux dakraam en eveneens over veel bergruimte achter de knieschotten.
De tweede verdieping is volledig voorzien van een laminaatvloer.
Tuin
Fraai aangelegde voortuin met oprit ten behoeve van twee auto's. De royale achtertuin is op het noorden gelegen en beschikt over twee terrassen, een gazon en borders. Tevens biedt de tuin toegang tot een enorm grote garage, welke is voorzien van verwarming en een uitstootgootsteen, alsmede een elektrische sectionaaldeur en een royale vliering. De tuin beschikt over een achterom. Via een poort heeft u toegang tot een voetgangerspad aan de zijkant van de woning. 
Algemeen
2015 woning gemoderniseerd:
- gehele woning voorzien van stucwerk wanden en plafonds
- nieuwe meterkast incl. bekabeling
- houten vloer incl. vloerverwarming begane grond
- tegelvloer incl. vloerverwarming werkkamer begane grond
- laminaatvloeren 1e en 2e verdieping
2021: 
- nieuw Velux dakraam zolder
2022: 
- modernisering badkamer en toilet begane grond
- nieuwe poort (tuin) 
- vernieuwde pui werkkamer
2023: 
- plaatsing 14 zonnepanelen voorzien van individuele omvormer
2024: 
- installatie infrarood verwarming in hal en toilet en airconditioning in de woonkamer
De woning is (vrijwel) geheel voorzien van dubbele beglazing en (hard)houten kozijnen.                        
                        
                            
                                                            
                                    
                                        Soort woning
                                    
                                    
                                        Eengezinswoning                                    
                                 
                                
                                    
                                        Type woning
                                    
                                    
                                        Twee onder een kapwoning                                    
                                 
                            
                            
                                                            
                                
                                    
                                        Koopconditie
                                    
                                    
                                        Kosten koper                                    
                                 
                            
                            
                            
                                                            
                                                                                        
                            
                            
                            
                            
                                                            
                                    
                                        Gebouwgebonden buitenruimte
                                    
                                    
                                        17 m2
                                    
                                 
                            
                                                            
                                    
                                        Overig inpandige ruimte
                                    
                                    
                                        28 m2
                                    
                                 
                            
                            
                                                            
                                                     
                        
                        
                        
                                                                                                Wilt u graag een volledige brochure ontvangen? Vul dan uw naam en emailadres in en we sturen u direct door naar de brochure.