Verkocht onder voorbehoud
Vraagprijs € 795.000

Burgemeester Damsstraat 41

Tilburg
  • 3 slaapkamers
  • 141 Woonoppervlakte
  • 255 m2
Op uitstekende locatie in villawijk Zorgvlied treft u deze fraai verbouwde en gemoderniseerde karakteristieke hoekwoning met oprit en praktijkruimte annex atelier in de schitterende achtertuin.

De woning werd tussen 2009 en 2012 op deskundige wijze volledig gerenoveerd, gemoderniseerd en verduurzaamd.
In 2023 is de woning voorzien van 15 zonnepanelen. De praktijkruimte werd in 2018 opnieuw ingericht en is ideaal als praktijk aan huis, atelier of logeer-/muziekkamer te gebruiken. Een unieke kans om een tot in de puntjes perfect afgewerkt, geïsoleerd woonhuis te verwerven op een prachtige locatie!

Indeling begane grond

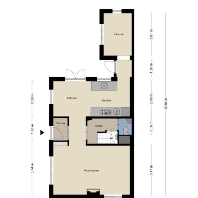
Entree/hal met garderobekast (meubelmaatwerk), toegang tot woonkeuken en werkkamer enerzijds en woonkamer anderzijds. De gezellige woonkamer is aan de voorzijde gelegen en beschikt naast een gashaard over openslaande tuindeuren naar de voortuin. De wanden en het plafond zijn strak gestuukt en (net als de rest van de gehele woning) prachtig geschilderd. De sfeervolle woonkeuken is voorzien van een Bulthaup keukenblok in twee delen (spoel en kookgedeelte) voorzien van de navolgende inbouwapparatuur: koelkast, vriezer (beide Siemens), vier pits gaskookplaat (Smeg) met afzuigkap, vaatwasser (Miele), oven (Miele) en een Quooker. Het plafond beschikt over inbouwverlichting en ter plaatse van het eetgedeelte openslaande tuindeuren.
De voormalige berging werd op deskundige wijze bij het woongedeelte getrokken en biedt een heerlijke werkplek voor kantoor aan huis of als speelkamer. Via een loopdeur toegang tot de achtertuin.

Trappenhal met toegang tot toilet en de diepe kelderkast. Het toilet is voorzien van een hangcloset en een fonteintje, de diepe kelderkast over de opstelling van de uitgebreide en gemoderniseerde meterkast voorzien van krachtstroom. De tussenverdieping bij de trappenhal geeft toegang tot een tweede toilet (hangcloset) met fontein.

Eerste verdieping

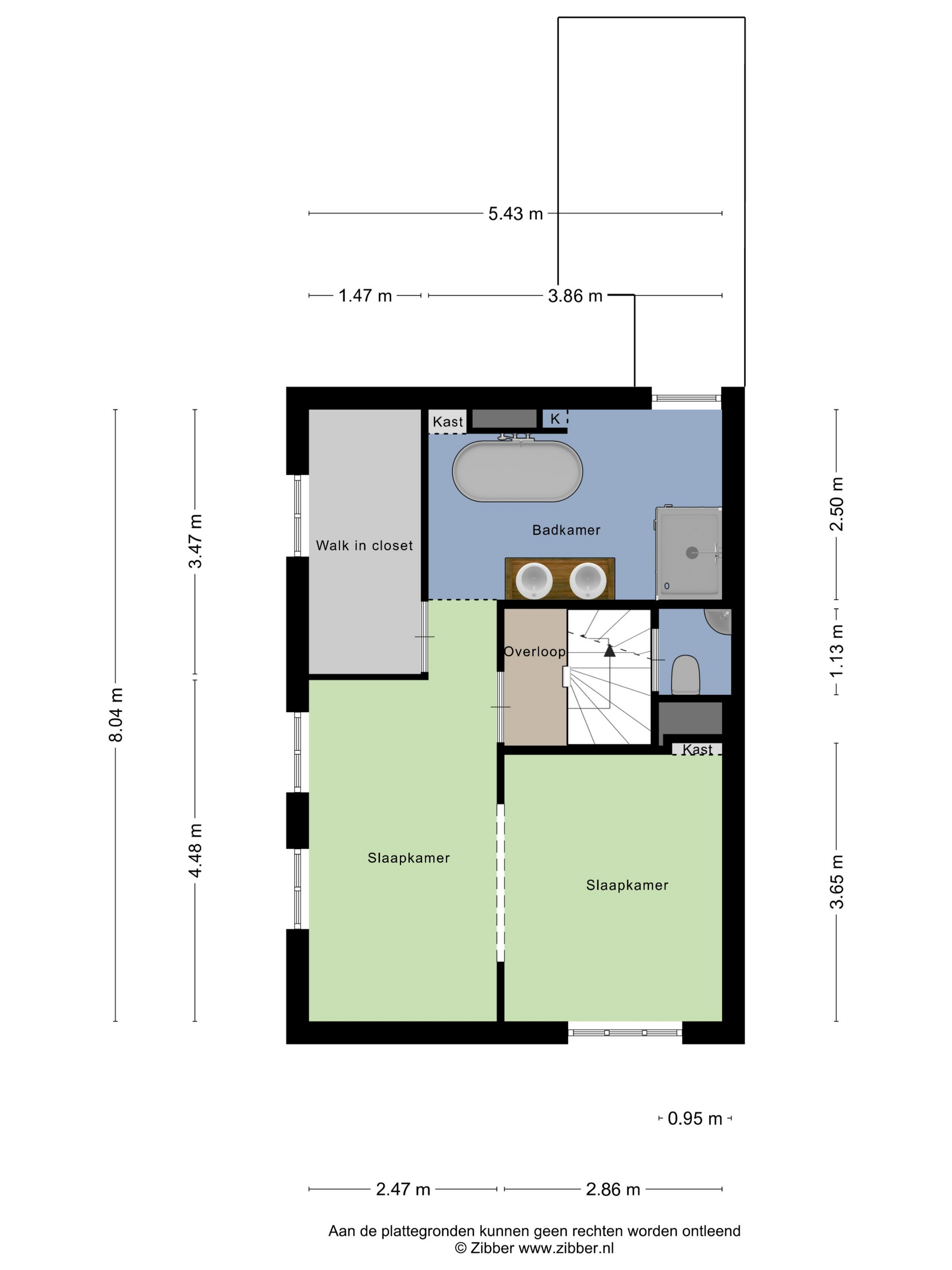
Overloop met toegang tot de bijzonder riante hoofdslaapkamer welke vrijwel de gehele verdieping beslaat, met kastenkamer en badkamer. Het slaapkamer gedeelte bevindt zich aan de voorzijde en staat in open verbinding met de prachtige royale badkamer. Deze is voorzien van een vrijstaand ligbad, een douche in cabine met regenshower, dubbele wastafel (waskom) met ingebouwde kranen, een decorradiator en airconditioning. Tot slot treft u de royale kleedkamer welke (samen met het slaapgedeelte) voorzien is van vloerbedekking.

Tussenverdieping met vaste kast waarin opstelling CV-combiketel.

Tweede Verdieping

Overloop met twee diepe vaste kasten, waarvan één met opstelling wasmachine en toegang tot een tweede badkamer voorzien van douche in cabine en wastafel. Twee slaap-/werkkamers, beide voorzien van een velux dakraam. De gehele verdieping is voorzien van vloerbedekking.

Praktijk

Achter in de tuin treft u een fraaie praktijkruimte aan welke ook uitstekend dienst kan doen als kantoorkamer, atelier, of muziek-/slaapkamer. De ruimte beschikt over een toilet en een douche, een pantry met koelkast en wasbak, twee diepe vaste kasten en over een gaskachel. De praktijk is voorzien van een nette visgraat pvc vloer (2018).

Tuin

Bijzonder fraai aanlegde en vooral ook sfeervolle achtertuin op het (zuid-) westen georiënteerd. De tuin is aangelegd met taxus, grint en een plantaan en toegankelijk via de oprit door middel van een mooie openslaande poort. De overkapping met hout gestookte haard zorgt voor de fijne momenten buiten en een tweede overkapping met hekwerk doet dienst als fietsenberging/stalling.

De woning is in een rustige omgeving gelegen die zich kenmerkt door ruim opgezette straten met brede stoepen, prachtige bomen, rust en veel groene pleinen. De buurtschool is op loopafstand gelegen. Andere voorzieningen zoals de Universiteit van Tilburg, winkels, sportvelden, uitvalswegen en het centrum zijn nabij gelegen.
De buurt staat bekend als rustig, kindvriendelijk, met de fiets is het maar 5 minuten naar je favoriete restaurant, terras en vele winkels.

Prachtig authentiek wonen met eigentijdse luxe in een bijzonder geliefde buurt op een ideale locatie!
Type woning:
Woonhuis
Soort woning
Eengezinswoning
Type woning
Eindwoning
Beschikbaarheid
Verkocht onder voorbehoud
Vraagprijs
€ 795.000
Koopconditie
Kosten koper
Aanvaarding
In overleg
Inhoud
500 m3
Perceel
255 m2
Woonoppervlakte
141 m2
Aantal kamers
6
Aantal slaapkamers
3
Gebouwgebonden buitenruimte
29 m2
Bouwjaar
1953
Energielabel
C

Wilt u graag een volledige brochure ontvangen? Vul dan uw naam en emailadres in en we sturen u direct door naar de brochure.

Meer informatie over deze woning of een bezichtiging plannen?

Neem dan contact op met één van onze makelaars via 013 580 20 70 of stuur een mail naar info@gerritsemakelaardij.nl.