listing_gallery

Verkocht
Vraagprijs € 695.000

Dionysiusstraat 21

Tilburg
  • 5 slaapkamers
  • 238 Woonoppervlakte
  • 327 m2
Op uitermate gunstige locatie ten opzichte van het centrum, Centraal Station én de uitvalswegen treft u dit prachtige, goed onderhouden en karakteristieke herenhuis met garage en ruime berging. Gebouwd in 1919 en met de unieke mogelijkheid om wonen én werken in de binnenstad te combineren in een prachtige rustige woonomgeving tegenover de Kloostertuin en op loopafstand van basisschool De Elzen en De Vuurvogel. Het Tilburgse mooie Spoorpark ligt om de hoek.

Aan de achterzijde is het woongedeelte uitgebreid met een prachtige multifunctionele ruimte van ca. 50 m² met mogelijkheid voor speel-/tv kamer, hobby- of werkruimte. Ook een extra slaapgelegenheid of mantelzorg van bijv. ouder of kind behoort tot de mogelijkheden. Bovendien biedt het platte dak ruimte aan voldoende zonnepanelen om het gehele object te verduurzamen.

De riante woning in de gewilde Bomenbuurt mét achtergelegen garage, berging en parkeerplaatsen (vergunninghouders) beschikt over een sfeervolle en royale achtertuin op het zuidwesten. Het achtergelegen parkeerterrein is tussen 20.00 uur en 08.00 uur afgesloten en slechts toegankelijk voor de bewoners met sleutel.

Indeling begane grond

Prachtige entree/hal met granieten vloer, gemarmerde wanden en bijzonder fraaie bordestrap. Riante woonkamer (ca. 50 m²) voorzien van prachtige visgraat parketvloer, openslaande tuindeuren en een aparte ruimte in de woonkamer welke in open verbinding staat met het zitgedeelte. Woonkeuken met keukenblok voorzien van inbouwapparatuur en aansluitend bijkeuken met toegang tot toilet, grote provisiekelder en was- annex cv ruimte met opstelling CV combiketel. Aansluitend (in de aanbouw) een kantoorruimte en vervolgens de multifunctionele ruimte met fraaie lichtinval en openslaande tuindeuren.

Eerste verdieping

Overloop met toegang tot vier grote slaapkamers variërend in oppervlakte van 10-13 m² allen voorzien van parketvloer en moderne badkamer met ligbad, inloopdouche, wandcloset en dubbele wastafel. De verdieping beschikt over diverse vaste kasten in kamers en op overlopen.

Tweede verdieping

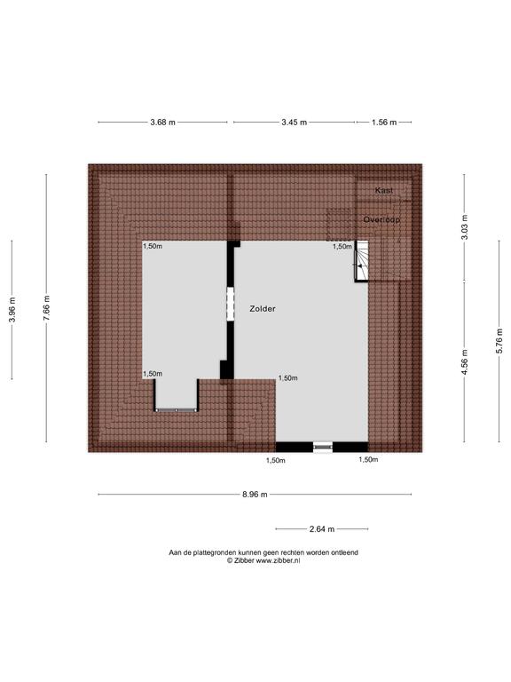
De tweede leuke verrassing van het huis betreft deze waanzinnige open zolder verdeeld in twee ruimten met spanten in het zicht. Slaapkamer met zitkamer; eigen etage; er is veel mogelijk in deze gezellige ruimte.

Tuin

Prachtige tuin op het westen georiënteerd met uitermate veel privacy, géén achterburen (parkeerterrein) en een aangebouwd stenen berging voorzien van elektra. De woning beschikt zowel aan de voor- als aan de achterzijde over een eigen ingang. Tevens toegang tot de garage welke beschikt over een eigen groepenkast en een elektrische bedienbare deur.

Algemeen

* Het pand biedt voldoende mogelijkheden voor (verdere) verduurzaming;
* Er is een actueel bouwtechnisch rapport aanwezig.
* Houten kozijnen met dubbele beglazing, deels voorzetramen deels enkele beglazing
* Plat dak aanbouw in 2012 vernieuwd en geïsoleerd met 5 cm tempex
* Aanbouw voorzien van vloerisolatie
* Verkozen tot eerste 'schonste stròtje van Tilburg (2015). De stoeptegeltuintjes en plantenbakken worden jaarlijks tijdens "burendag" gevuld. Kortom een sociale buurt waar je graag wilt wonen!
Type woning:
Woonhuis
Soort woning
Herenhuis
Type woning
Tussenwoning
Beschikbaarheid
Verkocht
Vraagprijs
€ 695.000
Koopconditie
Kosten koper
Aanvaarding
In overleg
Inhoud
912 m3
Perceel
327 m2
Woonoppervlakte
238 m2
Aantal kamers
8
Aantal slaapkamers
5
Externe bergruimte
16 m2
Overig inpandige ruimte
16 m2
Bouwjaar
1919
Energielabel
C

Wilt u graag een volledige brochure ontvangen? Vul dan uw naam en emailadres in en we sturen u direct door naar de brochure.

Meer informatie over deze woning of een bezichtiging plannen?

Neem dan contact op met één van onze makelaars via 013 580 20 70 of stuur een mail naar info@gerritsemakelaardij.nl.