listing_gallery

Verkocht
Vraagprijs € 235.000

Europalaan 393

Tilburg
  • 1 slaapkamers
  • 70 Woonoppervlakte
Dit leuke en ruime appartement met vernieuwde keuken is gelegen in de wijk “Het Zand”. Het appartement, op de bovenste etage, beschikt over kunststof kozijnen met dubbel glas en een ruime berging in het souterrain. Momenteel heeft het appartement één slaapkamer maar er is zeer eenvoudig een tweede slaapkamer te realiseren.

Het complex is ideaal gelegen. Je bent zo met de fiets in het bruisende centrum van Tilburg. Andere voorzieningen zoals het winkelcentrum Paletplein en winkelcentrum Westermarkt vind je op loopafstand. De Universiteit van Tilburg en het nabijgelegen treinstation Tilburg Universiteit zijn zeer goed te bereiken. Zin in een wandeling? Je loopt zo het Wandelbos in om te genieten van de rust en de natuur. Met de auto ben je via de Ringbanen snel de stad uit richting de omliggende dorpen en steden. 


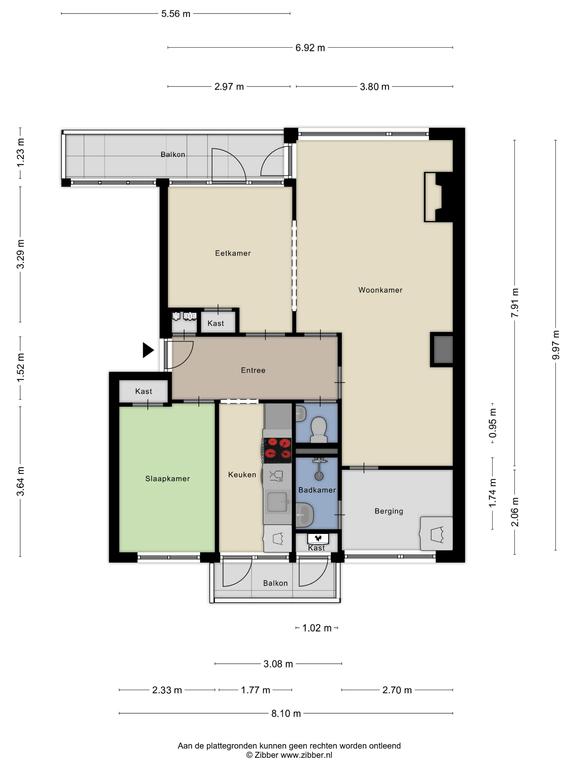
INDELING

Middels de centrale entree op de begane grond is er toegang tot het complex. Het appartement is via de trap bereikbaar en er is toegang tot twee appartementen per verdieping. 


Entree

U komt het appartement binnen in de entree/gang waar de meterkast en de toiletruimte zijn gesitueerd. De toiletruimte is gedeeltelijk betegeld in een lichte kleurstelling, voorzien van een authentieke terrazzo vloer en uitgerust met staand closet en fonteintje.


Woonkamer

De ruime woonkamer is circa 34 m² groot. De kamer is door de indeling makkelijk op diverse manieren in te richten en heeft veel lichtinval door de grote raampartijen. In de huidige indeling zijn de eethoek en de zithoek aan de voorzijde geplaatst en de thuiswerkplek en de kastenkamer/bergruimte aan de achterzijde. Door het terugplaatsen van een muur is er zeer eenvoudig een tweede slaapkamer te realiseren. De gehele woonkamer is voorzien van een nette laminaatvloer, een vaste kast en middels twee deuren toegang tot het grote balkon aan de voorzijde. 


Keuken

De separate keuken heeft een moderne rechte opstelling, deze is vernieuwd in 2020. De keuken is voorzien van een inductie kookplaat, afzuigkap, combi magnetron/oven, vaatwasser en koelkast. In de keuken is de aansluiting voor de wasmachine aanwezig. Vanuit de keuken is er toegang tot het balkon aan de achterzijde waar de kast met de opstelling van de Cv-ketel toegankelijk is. 


Badkamer

Via de kastenkamer/bergkamer is de doucheruimte bereikbaar. Deze is uitgerust met een vaste wastafel en douchehoek. Deze doucheruimte is aan vernieuwing toe.


Slaapkamer

Het appartement beschikt momenteel over één slaapkamer van ca. 8.5 m2 met vaste kast. Zoals eerder vermeld is een tweede slaapkamer eenvoudig te realiseren. 


Buiten

Aan zowel de voor- als de achterzijde van het appartement is een balkon gesitueerd. Het balkon grenzend aan de woonkamer is gelegen op het zuidwesten. Het balkon dat toegankelijk is via de keuken, is meer gelegen aan de schaduwkant. Bij dit appartement is er altijd de keuze om te genieten in de zon of de beschutting van de schaduw op te zoeken, beide balkons zijn in elk geval ruim genoeg om heerlijk buiten te vertoeven.

Algemeen
• Bouwjaar omstreeks 1963.
• Woonoppervlakte circa 70 m².
• Bijdrage Vereniging van Eigenaren € 139,16 per maand.
• Kunststof kozijnen met dubbele beglazing.
• Eigen berging in souterrain.
 
Type woning:
Appartement
Beschikbaarheid
Verkocht
Vraagprijs
€ 235.000
Koopconditie
Kosten koper
Aanvaarding
In overleg
Inhoud
231 m3
Woonoppervlakte
70 m2
Aantal kamers
3
Aantal slaapkamers
1
Externe bergruimte
16 m2
Gebouwgebonden buitenruimte
9 m2
Overig inpandige ruimte
1 m2
Bouwjaar
1963
Energielabel
E

Wilt u graag een volledige brochure ontvangen? Vul dan uw naam en emailadres in en we sturen u direct door naar de brochure.

Meer informatie over deze woning of een bezichtiging plannen?

Neem dan contact op met één van onze makelaars via 013 580 20 70 of stuur een mail naar info@gerritsemakelaardij.nl.