VRIJSTAANDE WONING, BIJZONDERE ARCHITECTUUR, FRAAI AANGELEGDE TUIN, SEMI-BUNGALOW MET SLAAPKAMER, BADKAMER EN WERKKAMER OP DE BEGANE GROND
• FIJNE GROENE WOONLOCATIE BIJ OUDE WARANDE EN HET WANDELBOS
• VEEL LEEFRUIMTE OP DE BEGANE GROND EN 2 RUIME KAMERS EN 2E BADKAMER OP DE 1E VERDIEPING.
Deze vrijstaande, levensloopbestendige (drempelloos en brede deuren) woning ligt in de gewilde Auteurswijk. Kenmerkend zijn de bijzondere bouw, de royale (zon)lichtinval en de groene ligging.
Bouwjaar: 1987
Perceel oppervlakte: 923 m²
Gebruiksoppervlakte: circa 266 m²
Inhoud: circa 1.043 m³
FIJN WONEN
De woning is gelegen aan een woonhof met vrijstaande woningen. Om de hoek en in de directe nabijheid liggen het Wandelbos, de Oude Warande, wandel-en fietspaden en sportvelden. Diverse openbare voorzieningen, winkels, scholen, Tilburg University en het station Tilburg Universiteit liggen op fietsafstand. De uitvalswegen richting Breda, ’s-Hertogenbosch en Eindhoven zijn gemakkelijk en snel bereikbaar via de Bredaseweg en de Baroniebaan. Kortom: wonen in een fijne groene woonwijk met alle voorzieningen en de natuur in de directe nabijheid.
INDELING
Begane grond
Entree/hal met meterkast, garderobe, trapopgang, trapkast en toiletruimte met zwevend toilet en fonteintje. Vanuit de hal zijn de woonkamer, keuken en slaapkamer te bereiken. De woonkamer, eetkamer en keuken meten totaal circa 74 m² en door de vele raampartijen is er veel contact met de buitenruimten, die als het ware het verlengde van de binnenruimten zijn. Een schuifpui geeft toegang tot het overdekte zijterras. Verder is er een schoorsteenkanaal met inbouw hout openhaard. De semi-open keuken is aan de achterzijde van de woning gelegen en is ingericht met een modern U-vormig witte Italiaanse keuken (merk Valcucine) met veel lades en een geïntegreerde bar. Naast twee spoelbakken, een keramische kookplaat en afzuigkap is de keuken voorzien van een geïntegreerde koelkast, combimagnetron en vaatwasser.
Via een gang is de zijvleugel te bereiken met toegang tot de badkamer met inloopdouche, zwevend toilet, wastafel en designradiator. Via een schuifdeur is de aan de voorzijde van de woning gelegen slaapkamer met vaste kastenwand te bereiken. Verder is er een bijkeuken met uitstortgoot, aan/afvoer wasmachine en toegang naar de inpandige berging, die is voorzien van een radiator en een elektrisch bedienbaar rolluik naar de oprit. De aan de achterzijde van de woning gelegen werkkamer heeft een mooi uitzicht op de- middels schuifpui te bereiken- achtertuin.
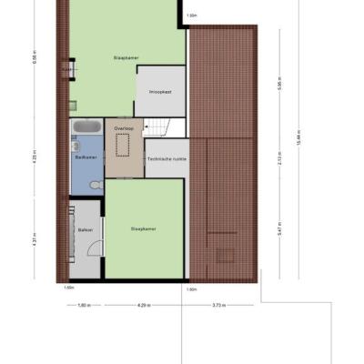
1e verdieping
Een vaste trap in de hal geeft toegang tot deze verdieping met 2 ruime (slaap)kamers, een badkamer en bergruimten.
Kamer 1 heeft een vaste kast, Frans balkon en een patrijsraam. Kamer 2 heeft een deur naar de op het zuiden gesitueerde loggia. De badkamer met patrijsraam is ingericht met een ligbad met douche, wastafel en toilet. Verder zijn er bergruimten -met dakramen- waarin de c.v.-combiketel, unit mechanische ventilatie en omvormer zonnepanelen staan opgesteld.
AANGENAME TUIN
De brede groene achtertuin is ingericht met gazon, een vijver, bomen, borders en struiken en biedt veel privacy en dagelijks contact met de eekhoorns. Het terras grenzend aan de achtertuin is onder een pergola gelegen. Vanuit de woonkamer is het op het westen gelegen overdekte terras te bereiken. Ook zijn er diverse tuinlampen, licht- en waterpunten. De achterzijde van de woning is bereikbaar via de naast de woning gelegen afsluitbare poort.
PARKEREN
Op eigen perceel is plaats voor 3 auto’s
ALGEMEEN
• De woning is voorzien van alle isolatietechnieken, 7 zonnepanelen en heeft energielabel C.
• Aluminium kozijnen, puien en ramen (draai/kiep) met diverse rolluiken en horren.
• De woning is voorzien van kunststof dakbedekking (2011/2018) en leien.
• De begane grondvloeren zijn grotendeels (hal, woonkamer, keuken, badkamer) voorzien van vloerverwarming.
• Verwarming en warm water via c.v.-combiketel en close-in-boiler.
• Sproei installatie (met eigen put en pomp).                        
                        
                            
                                                            
                                
                                    
                                        Type woning
                                    
                                    
                                        Vrijstaande woning                                    
                                 
                            
                            
                                                            
                                
                                    
                                        Koopconditie
                                    
                                    
                                        Kosten koper                                    
                                 
                            
                            
                            
                                                            
                                                                                        
                            
                            
                            
                                                            
                            
                                                            
                                    
                                        Gebouwgebonden buitenruimte
                                    
                                    
                                        30 m2
                                    
                                 
                            
                                                            
                                    
                                        Overig inpandige ruimte
                                    
                                    
                                        11 m2
                                    
                                 
                            
                            
                                                            
                                                     
                        
                        
                        
                                                                                                Wilt u graag een volledige brochure ontvangen? Vul dan uw naam en emailadres in en we sturen u direct door naar de brochure.