listing_gallery

Verkocht
Vraagprijs € 1.425.000

Goirleseweg 37

Tilburg
  • 7 slaapkamers
  • 300 Woonoppervlakte
  • 3490 m2
Onder architectuur van J. van der Valk werd dit prachtige karakteristieke landhuis ontworpen en gebouwd in 1932. Gelegen op een perceel van 3.490 m² beschikt dit authentieke object over een parkachtige tuin rondom de woning en dat op een steenworp afstand van uitvalswegen en centrum van Tilburg en Goirle. Het ideale gezinshuis en voor de liefhebbers vol met een geweldige detaillering zoals (heel veel) glas-in-lood ramen, paneeldeuren en schitterend tegelwerk.

Indeling begane grond

Entree-vestibule via de prachtige voordeur met een drietal naar binnen vallende glas-in-lood klepraampjes. De vestibule is voorzien van origineel marmeren vloer en wanden en door middel van een glas-in-lood deur toegang tot de statige hal met toegang tot de kelder, garderobe, fontein en toilet. Ook hier weer voorzien van de originele betegeling en veel glas-in-lood ramen. Aan de voorzijde treft u de studeerkamer grenzend aan het terras aan de voorzijde en aan de achterzijde de woonkeuken en de bijkeuken. Een sfeervolle woonkamer met open haard welke eveneens toegang tot het voorterras biedt en een eetkamer met toegang tot het terras gelegen aan de zijkant. Via de hal tussen de keuken en de bijkeuken komt u tot slot bij het royale terras gelegen aan de achterzijde van de woning, uitkijkend op de tuin.

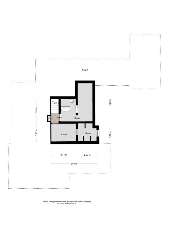
De kelder is royaal en onderverdeeld in vier compartimenten (twee maal opslag, wijnkelder en cv ruimte) en biedt tevens toegang tot de kruipruimte. De woonkeuken is voorzien van een keukenblok met inbouwapparatuur, een plavuizen vloer en vaste servieskasten. De tussenhal beschikt over een tweede toilet en een boerendeur. De bijkeuken beschikt over de aansluitingen ten behoeve van de wasapparatuur en een uitstortgootsteen en biedt bovendien toegang tot de garage. De hal, de woonkamer, de eetkamer en de studeerkamer zijn voorzien van een eikenhouten parketvloer in visgraat en diverse openslaande deuren bieden toegang tot de terrassen die u rondom de woning treft. Het voorterras is deels overdekt en beschikt over verlichting.

Eerste verdieping

De fraaie bordestrap leidt naar de Heerenkamer met fenomenaal uitzicht op de parkachtige tuin. De trap vervolgt richting de overloop met balkon welke toegankelijk is via openslaande glas-in-lood deuren. Verder biedt de overloop toegang tot een drietal slaapkamers en separaat toilet. Slaapkamer 1 met wastafel voorzien van warm-koud water aansluiting, prachtige hoofdslaapkamer met toegang naar de badkamer voorzien van ligbad, twee wastafels en een prachtige combinatie van glas-in-lood en oorspronkelijk tegelwerk. Walk-in-closet te bereiken, via hoofdslaapkamer en derde slaapkamer. Derde grote slaapkamer aan de achterzijde met wastafel en vaste kast en uitzicht over de achtertuin.

Tweede verdieping

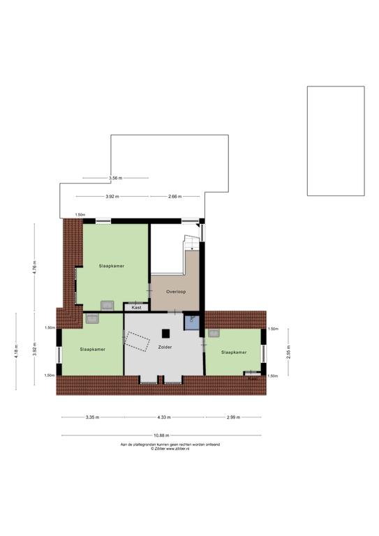
Eveneens via fraaie bordestrap bereikbaar. Grote vierde slaapkamer met wastafel voorzien van warm en koud water aansluiting en vaste kast en tot slot een royale overloop/berging met boiler en douche. Via deze overloop zijn slaapkamer vijf en zes bereikbaar, beiden voorzien van een wastafel eveneens met warm en koud water aansluiting. Via de overloop toegang tot een grote vliering.

Tuin

Een statige oprit leidt naar de voordeur, de bijkeuken, de garage en de stalling (bijvoorbeeld ten behoeve van een caravan). Een poort biedt toegang tot de achtertuin. Verhoogde terrassen rondom bieden een fraai uitzicht op de heerlijke tuin met onder andere een gazon, twee kleine vijverpartijen en aan weerszijden van het huis twee fantastische kastanjebomen alwaar de nodige beschutting in de zomer. Een klimhortensia aan de achterzijde en een blauwe regen ter plaatse van de hoofdslaapkamer geven het huis een romantische aanblik. Het gevarieerde bos bestaat uit beuken, eiken, linde, populier en esdoorn. De moestuin, de fruitbomen en de bloemenborder completeren het geweldige buitengevoel. Tot slot voor de kinderen nog een heerlijk speelveld!

Algemeen

* Serieuze reacties zijn welkom waarna een bezichtiging ingepland kan worden;
* Aanvaarding in overleg.
Type woning:
Woonhuis
Soort woning
Villa
Type woning
Vrijstaande woning
Beschikbaarheid
Verkocht
Vraagprijs
€ 1.425.000
Koopconditie
Kosten koper
Aanvaarding
In overleg
Inhoud
1270 m3
Perceel
3490 m2
Woonoppervlakte
300 m2
Aantal kamers
10
Aantal slaapkamers
7
Gebouwgebonden buitenruimte
9 m2
Overig inpandige ruimte
46 m2
Bouwjaar
1932

Wilt u graag een volledige brochure ontvangen? Vul dan uw naam en emailadres in en we sturen u direct door naar de brochure.

Meer informatie over deze woning of een bezichtiging plannen?

Neem dan contact op met één van onze makelaars via 013 580 20 70 of stuur een mail naar info@gerritsemakelaardij.nl.