In hartje centrum Tilburg ligt dit prachtig verbouwde vierkamerappartement. De woning kijkt uit over de Schouwburgpromenade en ligt vlakbij de binnenstad en het Dwaalgebied. Horeca en winkels liggen binnen handbereik!
Het appartement is ruimtelijk, heeft veel licht en is perfect afgewerkt. Er is een luxe keuken met inbouwapparatuur en de badkamer beschikt over een regendouche. De woning heeft twee slaapkamers met de mogelijkheid om een derde slaapkamer te realiseren. In 2018 is het appartement uitermate mooi verbouwd met nieuwe binnendeuren, laminaatvloer met hoge plinten en strak stucwerk. Daarnaast zijn er extra stopcontacten, designradiatoren, inbouwspots en wandverlichting met dimmers gebouwd. De ramen aan de zuidkant zijn voorzien van elektrisch bedienbare zonwering.
Prachtig wonen in de bruisende binnenstad! 
INDELING
Kelder
Met eigen afsluitbare berging.
Begane grond
Centrale afgesloten entree, ontvangsthal met brievenbussen, bellentableau, trappenhuis en lift. 
3e verdieping
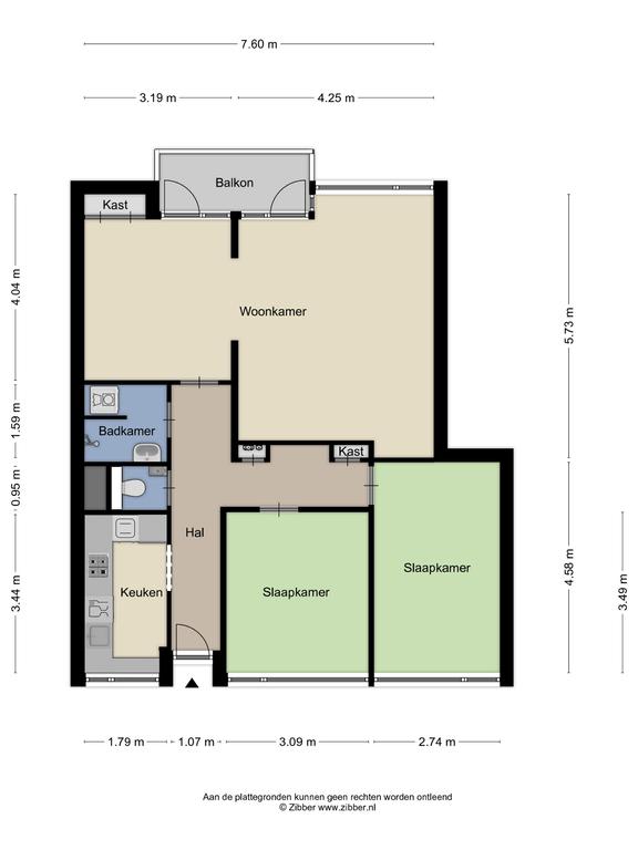
Het appartement is gelegen op de 3e verdieping van het complex, dat zich resulteert in een fraai weids uitzicht aan beiden zijden over de stad. Het appartement is tevens van het grote model op deze locatie, waardoor u de beschikking heeft over een extra slaapkamer en er dus drie slaapkamers te realiseren zijn. Het is mogelijk de en-suite woonkamer te splitsen in slaapkamer en woonkamer. Bouwkundig zijn hiervoor geen voorzieningen nodig. 
U komt het appartement binnen in de strakke hal, welke toegang geeft tot alle vertrekken van dit lichte en ruime appartement. In de hal zelf vindt u naast de vernieuwde meterkast ook een mooie garderobe en een diepe bergkast/provisiekast. Wat u direct zal opvallen is de strakke en nette afwerking en het prettige licht. 
De moderne luxe keuken (CVT-keukens) is gelegen aan de galerijkant en voorzien van een koel/vriescombinatie, Siemens combi-oven, 4-pits gasfornuis en afzuigkap. Verder is de keuken afgewerkt met een mooi kunststof aanrechtblad met eetbarretje en treft u veel kastruimte aan. 
In 2018 is uiteraard de badkamer ook geheel verbouwd, de ruimte is geheel betegeld, voorzien van een regendouche, een handig wastafelmeubel met verlichte spiegel en een combi-wasmachine/droger. 
De separate toiletruimte is voorzien van een vrijhangend closet en fontein. 
Middels een glazen deur heeft u toegang tot de prachtige living met veel lichtinval en een weids uitzicht. 
De woonkamer (voorheen en-suite kamer) is ruim van opzet en over de volle breedte van het appartement, de kamer is ingedeeld in een eetkamer en ruime zitkamer. Beide kamers zijn voorzien van een mooie laminaatvloer met hoge plinten, extra stopcontacten en mooie wandverlichting, inbouwverlichting met dimmers. Zowel vanuit de eetkamer als de zitkamer is er toegang tot het balkon aan de voorzijde. Vanwege de zonnige ligging heeft de eigenaar elektrisch bedienbare zonwering laten aanleggen. Verder treft u een ruime inbouwkast en enkele brede wandplanken. 
Vanuit de hal heeft u toegang tot de twee prettige slaapkamers gelegen aan de galerij. Beiden kamers zijn voorzien van strak stucwerk en een mooie laminaatvloer. De kamers zijn voorzien van rolgordijntjes, een kamer is in gebruik als kastenkamer.
Omgeving
Het complex heeft een ingang aan de Heuvelstraat én aan de Nieuwlandstraat.
Zodra je het appartement uitloopt dan loop je meteen het Dwaalgebied in. Hier kun je gezellig winkelen, een drankje doen op een van de vele terrasjes of picknicken om de hoek in het park. Koffiezaken, eettentjes, restaurants, de bekende Happy Italy, vele kroegen, de kapper, beautysalons, de supermarkt, zelfs de Schouwburg, bevinden zich allemaal binnen handbereik.
Het Centraal Station ligt op een kleine 500 meter, 7 minuten lopen van huis. Met een parkeervergunning kan voor de deur geparkeerd worden.                        
                        
                            
                            
                            
                                                            
                                
                                    
                                        Koopconditie
                                    
                                    
                                        Kosten koper                                    
                                 
                            
                            
                            
                                                                                        
                            
                            
                            
                                                            
                            
                                                            
                                    
                                        Gebouwgebonden buitenruimte
                                    
                                    
                                        4 m2
                                    
                                 
                            
                            
                            
                                                            
                                                     
                        
                        
                        
                                                                                                Wilt u graag een volledige brochure ontvangen? Vul dan uw naam en emailadres in en we sturen u direct door naar de brochure.