listing_gallery

Verkocht
Vraagprijs € 550.000

Maasbommelstraat 12

Tilburg
  • 4 slaapkamers
  • 156 Woonoppervlakte
  • 325 m2
Op een mooie en rustige locatie gelegen vrijstaande geschakelde woning met heerlijke tuin op het zuiden, 4 ruime slaapkamers, luxe keuken en badkamer en een ruime living. De oorspronkelijke garage is omgebouwd tot een fijne leefruimte. Kortom een zeer ruime woning die van alle gemakken is voorzien. De woning is gelegen aan een breed opgezette straat in een kindvriendelijke en veilige woonomgeving met veel groen en in de nabijheid van scholen, winkelcentrum 'Heyhoef' en het Wilhelmina kanaal.

Indeling 

Begane grond:
entree in hal met meterkast en garderoberuimte. Toegang tot de woonkamer (55 m2) met een mooie Afzelia houten strokenvloer, veel lichtinval en een grote schuifpui naar de tuin. De woonkamer is verdeeld in een ruime zit-/eetkamer met elektrische haard (met verwarmfunctie) en open doorgang naar een fijne extra zitkamer met vaste servieskast. Deze ruimte is ook geschikt als speel-/werkkamer. 
Keuken met rechte, moderne opstelling (2016) en toegang tot de achtertuin. De keuken is voorzien van diverse apparatuur zoals een inductiekookplaat (Novi), afzuigkap (Boretti), combi-magnetron, koelkast en vaatwasser (Siemens). In de keuken is gedeeltelijk onder de trap een praktische voorraadkast aanwezig.
In de hal met de trapopgang naar de verdieping is de toiletruimte aanwezig. Deze ruimte is geheel betegeld en voorzien van een hangend closet en een fonteintje.

1e verdieping:
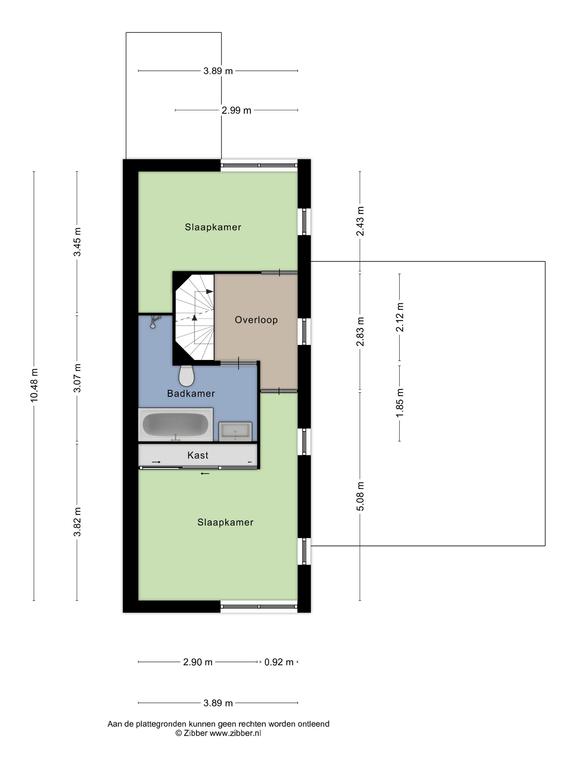
ruime overloop met lichtinval en toegang tot twee slaapkamers. De royale slaapkamer aan de voorzijde heeft een vaste kast met schuifwanden. De slaapkamer aan de achterzijde heeft een nis met bergruimte. 
Luxe badkamer met ligbad, hangend closet, inloopdouche en wastafel in meubel. In de badkamer hangt een designradiator, een extra badkamerkast met spiegel en in het plafond zijn led-spots verwerkt. 

2e verdieping:
Middels vaste trap is deze volwaardige verdieping bereikbaar. De ruime overloop heeft een fijne bergruimte met stellage en geeft toegang tot twee slaapkamers beide voorzien van UTP-bekabeling. 

Buiten: 
voor oprit voor de auto's en een overdekte entree. De voortuin is strak ingericht met grote verschillende hagen. 
Schitterende achtertuin op het zuiden met stenen berging (2005), overkapping en houten schuur. De tuin is bereikbaar middels een achterom. De volledig geïsoleerde berging is gebouwd in 2005 en is voorzien van elektra. In de tuin is exclusieve tuinverlichting aanwezig, zoals wandverlichting en grondspots. De houten overkapping heeft een vaste wand en een glazenschuifwand en ook deze is voorzien van elektra. De tuin is ingericht met terras aan de woning, grotendeels natuursteen, plantenborders en langs de schutting schitterende hortensia's.  

Bijzonderheden:
- begane grond is in 2016 gemoderniseerd.
- woning is voorzien van energielabel A.
- zeer nette, moderne woning.
 
Type woning:
Woonhuis
Soort woning
Eengezinswoning
Type woning
Geschakelde woning
Beschikbaarheid
Verkocht
Vraagprijs
€ 550.000
Koopconditie
Kosten koper
Aanvaarding
In overleg
Inhoud
537 m3
Perceel
325 m2
Woonoppervlakte
156 m2
Aantal kamers
5
Aantal slaapkamers
4
Externe bergruimte
10 m2
Gebouwgebonden buitenruimte
4 m2
Overig inpandige ruimte
6 m2
Bouwjaar
1998
Energielabel
A

Wilt u graag een volledige brochure ontvangen? Vul dan uw naam en emailadres in en we sturen u direct door naar de brochure.

Meer informatie over deze woning of een bezichtiging plannen?

Neem dan contact op met één van onze makelaars via 013 580 20 70 of stuur een mail naar info@gerritsemakelaardij.nl.