listing_gallery

Verkocht
Vraagprijs € 998.000

Magazijnstraat 3 43

Tilburg
  • 3 slaapkamers
  • 194 Woonoppervlakte
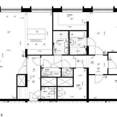
Een adembenemend penthouse op de 21ste verdieping van het gloednieuwe architectonische meesterwerk genaamd "De Bankier". Dit juweeltje van een penthouse, met een totaal vloeroppervlak van ca. 194 m², straalt internationale allure uit, gelegen op een toplocatie in het bruisende centrum van Tilburg.

Betreed dit penthouse en laat je overweldigen door de weelderige ruimte en het verbluffende uitzicht op de stad. Het is een unieke gelegenheid om de eerste bewoner te worden en het penthouse naar je eigen hand in te richten.

De naam "De Bankier" is een eerbetoon aan het historische pand dat in 1954 werd opgetrokken voor de bank van Van Mierlo en Zoon aan de Spoorlaan 346 in Tilburg. Met een rijke geschiedenis achter zich, belichaamt dit penthouse de erfenis van elegantie en verfijning die het voormalige bankgebouw vertegenwoordigt.

SUMMARY
+ A+++ energielabel

+ living ca. 70 m² onderverdeeld in woonkamer en woonkeuken

+ drie slaapkamers inclusief master-suite met dressing en nog te voorzien van twee badkamers

+ naast de technisch ruimte met onder andere de warmtepomp ook een inpandig berging van bijna ca. 10 m²

+ zonnig terras met uitzicht over Tilburg en verder

+ parkeerplaats in ondergelegen garage

Een Masterpiece!

SPECIFICATIE VLOEROPPERVLAK
Totaal ca. 194 m²
Zonnig terras van ca. 13 m²

DISCLAIMER
Alle informatie waaronder doch niet uitsluitend maatvoering heeft nadrukkelijk een indicatief karakter; er kunnen geen rechten aan worden ontleend. Verrekening wegens over- of ondermaat is uitgesloten. Het schriftelijkheidsvereiste wordt van toepassing verklaard. Aanbieding vrijblijvend, oplevering in overleg.
Type woning:
Appartement
Beschikbaarheid
Verkocht
Vraagprijs
€ 998.000
Koopconditie
Kosten koper
Aanvaarding
In overleg
Inhoud
582 m3
Woonoppervlakte
194 m2
Aantal kamers
4
Aantal slaapkamers
3
Gebouwgebonden buitenruimte
8 m2
Overig inpandige ruimte
13 m2
Bouwjaar
2023
Energielabel
A+++

Wilt u graag een volledige brochure ontvangen? Vul dan uw naam en emailadres in en we sturen u direct door naar de brochure.

Meer informatie over deze woning of een bezichtiging plannen?

Neem dan contact op met één van onze makelaars via 013 580 20 70 of stuur een mail naar info@gerritsemakelaardij.nl.