listing_gallery

Verkocht
Vraagprijs € 485.000

Mark 5

Tilburg
  • 4 slaapkamers
  • 121 Woonoppervlakte
  • 196 m2
Op fraaie locatie in de Blaak gesitueerde goed onderhouden, uitgebouwde én gemoderniseerde tussenwoning met moderne keuken, zéér luxe badkamer (2023!), royale tuin op het zuiden en een mogelijkheid voor twee parkeerplaatsen op eigen terrein. Verder beschikt de woning over 11 zonnepanelen. Deze instapklare woning is ideaal gesitueerd op een steenworp afstand van een schitterend natuurgebied maar tevens in de direct nabijheid van basisscholen, het winkelcentrum en de uitvalswegen.

Via de fraai aangelegde voortuin met borders en een fietsenberging komt u binnen in deze sfeervolle woning.

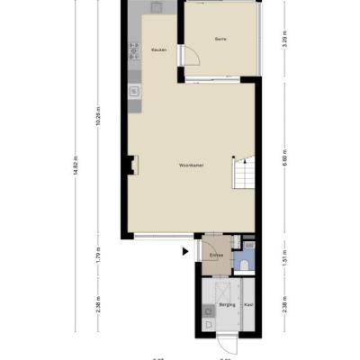
Indeling begane grond

Entree/hal met meterkast (gemoderniseerd, 3 fase aansluiting wordt in oktober nog geïnstalleerd) en toilet met fontein. Aan de voorzijde met entree vanuit de voortuin treft u de bijkeuken met aansluitingen wasapparatuur en een vaste kast met opstelling van een extra vriezer. Via een vlizo trap toegang tot de bergzolder. Vanuit de hal tevens toegang tot de gezellige woon-/eetkamer met fraai ingebouwde open haard partij met een ombouw, open trap naar de verdieping, open keuken en een schuifpui naar de serre. De keuken werd in 2015 geplaatst en is voorzien van de navolgende inbouwapparatuur: combimagnetron, grote koelkast (Siemens), groot kooktoestel met oven en vijf pits gaskookplaat met afzuigkap (recirculatiekap met ionen unit waardoor meer luchtfiltering, certificaat aanwezig), vaatwasser (Siemens 2022) en een composiet aanrechtblad. De gehele begane grond is voorzien van een frans eiken houten vloer. De oven zit op een aparte groep dus indien gewenst kunt u ook een inductiekookplaat installeren. Een loopdeur biedt toegang tot de serre welke geplaatst werd in 2022. De serre beschikt over een zonnedoek, verlichting en glazen schuifpanelen. Tevens bereikbaar via de schuifpui vanuit de woonkamer.

Eerste Verdieping

Overloop met toegang tot drie slaapkamers welke in 2022 allen voorzien werden van een pvc vloer. De slaapkamers zijn voorzien van stucwerk wanden en plafonds. Twee slaapkamers bevinden zich aan de achterzijde waarvan één voorzien van een velux dakraam. De grootste kamer bevindt zich aan de voorzijde. Waanzinnige badkamer (2023). De badkamer (St. Pieter) beschikt over een ligbad (Solid Surface), douche in cabine (inloopregendouche), hangcloset, wastafel in meubel, spiegel met verwarming en vast meubel met wandcontactdoos. Verder beschikt de badkamer over vloerverwarming en een elektrische decorradiator als bijverwarming.

Tweede Verdieping

Via vaste trap bereikbaar. Ouderslaapkamer voorzien van twee dakkapellen (inclusief elektrische rolluiken), beiden zijn uitgevoerd in kunststof met horren en draai-/kiepramen. Verder beschikt deze slaapkamer over een pvc vloer, een walk-in-closet met verlichting. Vaste kast met opstelling CV combiketel en mechanische ventilatie. Plafond met inbouwverlichting.

Tuin

Fraai aangelegde achtertuin met een schitterende terrasoverkapping met riet en blauwe regen bekleed. De tuin beschikt over nette bestrating d.m.v. een grijze tegel en diverse gemetselde bakken en borders. De schutting werd in 2019 vernieuwd. Achterin treft u nog een berging met elektra en de achterom. Wateraansluiting en wandcontactdozen aanwezig.

Algemeen

- Voor en achterdeur in 2022 vernieuwd uitgevoerd in kunststof met HR ++ beglazing
- Diverse rolluiken, deels elektrisch bedienbaar
- Serre in 2022 geplaatst en badkamer in 2023, alle slaapkamers voorzien van nieuwe radiatoren in 2022
- Dak voorzien van 11 zonnepanelen
- Prachtig huis op geweldige locatie!!
Type woning:
Woonhuis
Soort woning
Eengezinswoning
Type woning
Tussenwoning
Beschikbaarheid
Verkocht
Vraagprijs
€ 485.000
Koopconditie
Kosten koper
Aanvaarding
In overleg
Inhoud
429 m3
Perceel
196 m2
Woonoppervlakte
121 m2
Aantal kamers
6
Aantal slaapkamers
4
Externe bergruimte
7 m2
Gebouwgebonden buitenruimte
11 m2
Overig inpandige ruimte
1 m2
Bouwjaar
1979

Wilt u graag een volledige brochure ontvangen? Vul dan uw naam en emailadres in en we sturen u direct door naar de brochure.

Meer informatie over deze woning of een bezichtiging plannen?

Neem dan contact op met één van onze makelaars via 013 580 20 70 of stuur een mail naar info@gerritsemakelaardij.nl.