listing_gallery

Verkocht
Vraagprijs € 595.000

Midwoldeplein 13

Tilburg
  • 6 slaapkamers
  • 205 Woonoppervlakte
  • 425 m2
Op zoek naar een woning met maar liefst zes slaapkamers en twee badkamers? De voorgevel laat niet zien wat deze schitterende en uitgebouwde woning op een perceel van maar liefst 425 m² te bieden heeft!
De woning is gelegen aan een fijn groen plein met speelvoorzieningen en extra parkeermogelijkheden. Naast de woning is een eigen oprit gelegen met toegang tot de garage. 

Door de centrale ligging in de Reeshof zijn (basis)scholen, sportvoorzieningen en het winkelcentrum goed bereikbaar, evenals de uitvalswegen naar omliggende steden.  


INDELING

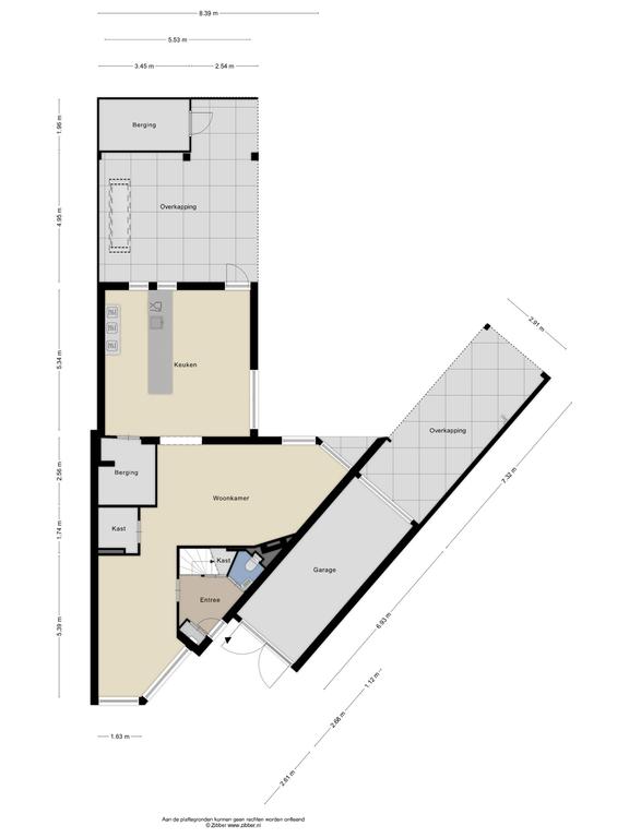
Begane grond

Middels eigen oprit bereikt u de entree. Entree in hal met de trapopgang naar de verdieping met daaronder een diepe trapkast, meterkast en toiletruimte. Toiletruimte is modern, ruim van opzet en voorzien van een zwevend closet, urinoir en fonteintje. 
Toegang tot de speels ingedeelde woonkamer met het eetgedeelte aan de voorzijde waar men uitzicht heeft op het plein. Grenzend aan de eetkamer een diepe garderobekast/bergruimte. De zitkamer is aan de achterzijde gelegen en heeft een dichte houthaard en zicht op de achtertuin.
De woning is aan de achterzijde uitgebouwd en hier is de leefkeuken gesitueerd. De keuken is voorzien van een dubbele rechte opstelling met apparatuur zoals een inductie-kookplaat, afzuigkap, oven, combi oven/magnetron, vriezer, koelkast, wijnklimaatkast en een Grohe-Red kraan (kokend waterkraan). De keuken is gescheiden van het zitgedeelte door een half-hoge wand met goudkleurige oud Hollandse tegels afgewerkt met een dik houten blad. Vanuit de keuken toegang tot de tuin. 


1e verdieping

Overloop met trapopgang naar de 2e verdieping. Op deze verdieping zijn drie slaapkamers waarvan twee aan de achterzijde en een slaapkamer aan de voorzijde. Op één slaapkamer aan de achterzijde is een royale walk-in-closet aanwezig en in de andere kamer aan de achterzijde is een vaste kledingkast aanwezig met hang- en leggedeelte.
Badkamer met ligbad en douchehoek, dubbele wastafel in meubel en toilet. Het geheel is in lichte, moderne kleuren uitgevoerd. 


2e verdieping

Overloop met toegang tot drie slaapkamers, vergelijkbaar met de kamers op de 1e verdieping. Ook hier twee slaapkamers aan de achterzijde en een slaapkamer aan de voorzijde.
De 2e badkamer is ook met ligbad en douchehoek, dubbele wastafel in meubel en toilet. De badkamer is gelijk aan de badkamer op de 1e verdieping. 


Buiten

Schitterende tuin aan de achterzijde met een grote, sfeervolle overkapping (met lichtstraat) grenzend aan de keuken. De tuin is voorzien van een gazon, meerdere terrassen, lei-linden, een plantaan, buitenverlichting, buitenkranen en een poort naar de achtergelegen brandgang. In het verlengde van de garage is een tweede overkapping aanwezig met een buitendouche (warm en koud water) en ruimte voor het plaatsen van een jacuzzi, buitenkeuken of anderszins.
De garage heeft zowel aan de voor als aan de achterzijde een kanteldeur zodat deze eenvoudig te betreden is. Naast de garage is er een houten berging met elektra aanwezig. 

Bijzonderheden:
• de woning is in 2011-2012 aangebouwd en opgebouwd;
• de keuken is vernieuwd in 2020;
• in de tuin is een aansluiting voor een jacuzzi aanwezig;
• de eerste en tweede verdieping zijn voorzien van (elektrische) rolluiken, op één raam na;
• de gehele woning is strak gestuukt zowel wanden als plafonds.
 
Type woning:
Woonhuis
Soort woning
Eengezinswoning
Type woning
Geschakelde woning
Beschikbaarheid
Verkocht
Vraagprijs
€ 595.000
Koopconditie
Kosten koper
Aanvaarding
In overleg
Inhoud
809 m3
Perceel
425 m2
Woonoppervlakte
205 m2
Aantal kamers
7
Aantal slaapkamers
6
Externe bergruimte
7 m2
Gebouwgebonden buitenruimte
60 m2
Overig inpandige ruimte
20 m2
Bouwjaar
1995
Energielabel
A

Wilt u graag een volledige brochure ontvangen? Vul dan uw naam en emailadres in en we sturen u direct door naar de brochure.

Meer informatie over deze woning of een bezichtiging plannen?

Neem dan contact op met één van onze makelaars via 013 580 20 70 of stuur een mail naar info@gerritsemakelaardij.nl.