listing_gallery

Verkocht
Vraagprijs € 695.000

Nispenstraat 12

Tilburg
  • 5 slaapkamers
  • 229 Woonoppervlakte
  • 453 m2
Op unieke locatie gelegen treft u deze uitstekend bijgehouden zeer royale twee-onder-een-kapwoning aan. De woning is aan de achterzijde vrij en aan het water gelegen. U geniet hier optimaal van de rust, de ruimte en het groen.
De woning is ruim opgezet met een speelse woonkamer, een serre, een woonkeuken uit 2013 en een inpandig bereikbare garage. De twee verdiepingen tellen maar liefst 5 slaapkamers, een kastenkamer en een badkamer.
De Nispenstraat is een straat waar nagenoeg alleen bestemmingsverkeer komt. Op enkele fietsminuten zijn scholen, winkels en sportvoorzieningen bereikbaar. Het Reeshofpark ligt letterlijk in de achtertuin.

 
INDELING

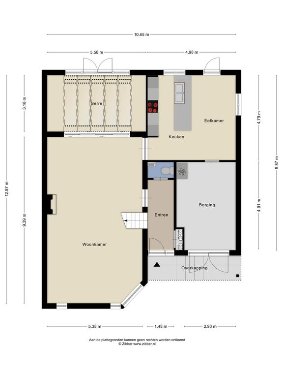
Begane grond
 
Entree/hal met toegang kruipruimte en meterkast met voldoende groepen en aardlekschakelaars. In de meterkast tevens een aansluiting ten behoeve van oplader elektrische auto. Garderobe, trapopgang en tot slot een volledig betegeld toilet (staand) met fontein.
Toegang tot de zeer royale woonkamer met eetgedeelte. De woonkamer is aan de voorzijde gelegen en het eetgedeelte grenst aan de woonkeuken. Via een schuifpui toegang tot de gezellige serre. Schitterende lichtinval en pal zuid georiënteerd is dit de plek waar het heerlijk toeven is met uitzicht op (en via schuifpui ook toegang tot) de achtertuin. De serre beschikt over een elektrisch bedienbaar zonnescreen en een elektrisch zonnescherm, beide geplaatst in 2022. 
De gezellige en grote woonkeuken werd rond 2013 uitgebreid en gemoderniseerd en beschikt over een groot schiereiland voorzien van twee spoelbakken met Quooker, vaatwasser en veel werkruimte. Parallel aan het schiereiland bevindt zich de kookgelegenheid met inductiekookplaat, ingebouwde afzuigunit, grote koelkast en grote vriezer. Tegenover het schiereiland zijn oven en combimagnetron geplaatst. Verder beschikt de woonkeuken over een loopdeur naar de tuin, tv-aansluiting en twee design radiatoren. Toegang tot betegelde, inpandige garage met verwarming en aansluitingen wasapparatuur.
 

Eerste verdieping
 
Overloop met trapopgang naar de tweede verdieping alsmede separaat toilet met fontein. Verder twee royale kinderkamers en een uitgebreide badkamer voorzien van ligbad, dubbele wastafel in meubel, dubbele inloopdouche, handdoekradiator en plafond met inbouwspots. Vervolgens treft u een royale kastenkamer die als tussenhal dienst doet richting de hoofdslaapkamer en de vierde slaapkamer. De hoofdslaapkamer is voorzien van een walk-in-closet en openslaande deuren naar een bijzonder ruim dakterras met uitzicht over de weelderige achtertuin.
 

Tweede verdieping
 
Grote vijfde slaapkamer met schuifkastenwand en ventilator. Op deze verdieping zijn voorbereidingen leidingwerk getroffen ten behoeve van een eventuele tweede badkamer. Verder treft u hier een grote bergkamer en opstelling mechanische ventilatie.
 

Tuin
 
Voortuin met oprit voor (minimaal) twee auto's. De voortuin is onderhoudsvriendelijk aangelegd met bestrating, grind en leilindes. Via poort aan de zijkant is de achtertuin toegankelijk. Deze is voorzien van een gezellig terras, gazon en borders. Tevens treft u hier een fietsenberging en een tuinschuur. Via een kleine trap heeft u toegang tot het deels overdekte loungeterras. Hier is het in de zomeravonden geweldig toeven, middenin het groen en aan het water met aanlegsteiger voor uw 'jacht'. Tuinverlichting zorgt voor de betoverende sfeer die deze plek u te bieden heeft!
 

Algemeen
* Vrijwel alle kozijnen in mei 2018 geplaatst en uitgevoerd in kunststof met houtnerf met isolerende HR++ beglazing met uitzondering van het badkamerraam, bovenlicht, rond raam slaapkamer en de schuifpui;
* Hal, woonkamer, serre en woonkeuken zijn voorzien van een tegelvloer met vloerverwarming;
* Grotendeels (elektrische) rolluiken ter plaatse van de keuken alsmede eerste en tweede verdieping;
* Eerste en tweede verdieping voorzien van laminaat vloer en horren;
* Bijzondere, royale en zeer goed onderhouden woonhuis!
* Indien gewenst kan het huis volledig gemeubileerd gekocht worden! Alle meubels op de foto's zijn ter overname;
* Aanvaarding in overleg.
Type woning:
Woonhuis
Soort woning
Eengezinswoning
Type woning
Twee onder een kapwoning
Beschikbaarheid
Verkocht
Vraagprijs
€ 695.000
Koopconditie
Kosten koper
Aanvaarding
In overleg
Inhoud
812 m3
Perceel
453 m2
Woonoppervlakte
229 m2
Aantal kamers
8
Aantal slaapkamers
5
Externe bergruimte
15 m2
Gebouwgebonden buitenruimte
26 m2
Bouwjaar
1996
Energielabel
A

Wilt u graag een volledige brochure ontvangen? Vul dan uw naam en emailadres in en we sturen u direct door naar de brochure.

Meer informatie over deze woning of een bezichtiging plannen?

Neem dan contact op met één van onze makelaars via 013 580 20 70 of stuur een mail naar info@gerritsemakelaardij.nl.