Deze bijzondere en leuke semi bungalow met sfeervolle tuin is gelegen in een rustige wijk in de Reeshof. De woning heeft een slaapkamer met badkamer op de begane grond en twee slaapkamers met badkamer op de verdieping. 
In de nabijheid van de woning zijn veel voorzieningen aanwezig, zoals een gezondheidscentrum, het winkelcentrum waar ook een grote bibliotheek in gevestigd is, Wijkcentrum Heyhoef, Zwembad Reeshof, het Reeshofpark en het NS-station. Daarnaast ligt de woning aan de rand van de wijk met een bushalte in de straat en de uitvalswegen zijn goed bereikbaar. 
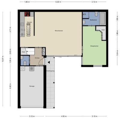
INDELING
Begane grond
Middels de voortuin bereikt u de overdekte entree. U komt binnen in de hal met de trapopgang naar de verdieping, toegang tot de garage en toiletruimte. De toiletruimte is voorzien van een staand closet en een fonteintje, de ruimte is gedeeltelijk betegeld. De inpandige garage is voorzien van een elektrische sectionaaldeur en in de garage is de aansluiting voor de was-apparatuur aanwezig, tevens is hier voldoende ruimte voor een extra koelkast of extra bergruimte. 
Vanuit de hal heeft u ook toegang tot de ruime woonkamer met een lichte parketvloer. Er is schitterend zicht op de fraaie tuin en deze is bereikbaar middels de grote schuifpui. De keuken is middels een wand gescheiden van de leefruimte, door de aanwezige lichtkoepel treedt hier veel daglicht binnen. De inrichting is geplaatst in een hoekopstelling en de keuken is voorzien van een inductie kookplaat met afzuigkap, combi/magnetron, vaatwasser en koelkast. 
Vanuit de woonkamer heeft u toegang tot de slaapkamer op de begane grond, deze grenst ook aan de sfeervolle tuin. De slaapkamer is ruim van opzet en heeft toegang tot de aangrenzende badkamer. De badkamer is voorzien van een ligbad, een aparte douche, wastafel en toilet. De deuren zijn breed zodat deze ruimte ook toegankelijk is voor de rollator of rolstoel. 
1e verdieping
Vanuit de overloop heeft u toegang tot de slaapkamers en de 2e badkamer. De slaapkamers zijn voorzien van een nette laminaatvloer en draai-kiepramen. De royale badkamer heeft een ruime inloopdouche, wastafel en toilet. Ook hier is een aansluiting voor de was-apparatuur aanwezig. 
Buiten
De tuin en de oprit zijn geheel aan de voorzijde van de woning gelegen. Voor de garage heeft u de mogelijkheid tot het parkeren van de auto. De tuin is omsloten door verschillende hagen en planten, aan de woning grenst het terras en centraal in de tuin is een volwassen witte moerbei aanwezig, deze zorgt voor sfeer en beschutting tijdens de zomermaanden.
Bijzonderheden:
- de platte daken zijn 3,5 jaar geleden volledig vernieuwd en geïsoleerd;
- het schilderwerk aan de buitenzijde is in 2023 uitgevoerd;
- energielabel A.                        
                        
                            
                                                            
                                
                                    
                                        Type woning
                                    
                                    
                                        Geschakelde woning                                    
                                 
                            
                            
                                                            
                                
                                    
                                        Koopconditie
                                    
                                    
                                        Kosten koper                                    
                                 
                            
                            
                            
                                                            
                                                                                        
                            
                            
                            
                            
                                                            
                                    
                                        Gebouwgebonden buitenruimte
                                    
                                    
                                        8 m2
                                    
                                 
                            
                                                            
                                    
                                        Overig inpandige ruimte
                                    
                                    
                                        17 m2
                                    
                                 
                            
                            
                                                            
                                                     
                        
                        
                        
                                                                                                Wilt u graag een volledige brochure ontvangen? Vul dan uw naam en emailadres in en we sturen u direct door naar de brochure.