listing_gallery

Verkocht
Vraagprijs € 265.000

Pijlijserstraat 64

Tilburg
  • 3 slaapkamers
  • 69 Woonoppervlakte
  • 75 m2
Het is niet meer mogelijk een bezichtiging in te plannen voor deze woning, gezien de vele reacties.

Unieke starterswoning nabij het centrum van Tilburg! Deze woning is gemoderniseerd, heeft drie slaapkamers, een badkamer op de 1e verdieping, een moderne keuken en de woning is voorzien van 4 zonnepanelen. 
De ligging van de woning is ideaal, namelijk in een rustige straat met parkeergelegenheid voor de deur en met winkels en voorzieningen op loopafstand. Het centrum van Tilburg even als het NS-centraal station zijn goed bereikbaar. 


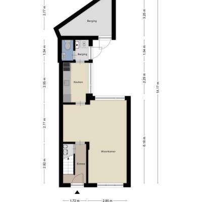
INDELING

Begane grond

Entree in hal met trapopgang naar de eerste verdieping. Onder de trap is een trap-/kelderkast aanwezig met de vernieuwde groepenkast (2023). De woonkamer, met een hoog plafond, is afgewerkt met gestuukte wanden en een nette laminaat vloer. Er is veel licht inval door de grote raampartijen en het raam aan de voorzijde is voorzien van sfeervolle shutters. 
De keuken is vernieuwd in 2019 (vaatwasser in 2024) en heeft een rechte opstelling met apparatuur zoals een inductiekookplaat met afzuigkap, een oven, een vaatwasser, een koelkast en een vriezer. Achter de keuken is de bijkeuken gelegen met hier de opstelling van de Cv-ketel en de aansluiting voor de was-apparatuur. Het ruime toilet is voorzien van een staand closet en fonteintje. 


1e verdieping

Overloop met toegang tot drie slaapkamers. Twee slaapkamers zijn gelegen aan de achterzijde en één aan de voorzijde. Alle kamers zijn afgewerkt met een laminaatvloer.
De badkamer met inloopdouche, toilet en wastafel is gelegen aan de voorzijde van de woning. Deze is deels betegeld en boven de wastafel is een spiegelkast geplaatst. 


Buiten

De tuin is een fijne plek waar je heerlijk buiten kunt zitten en genieten van de ochtendzon. De ruime stenen berging is gelegen achter de woning en heeft verwarming. De tuin is toegankelijk middels een poort die uitkomt op de achtergelegen brandgang. 

Bijzonderheden:
• Cv-ketel vernieuwd in 2020;
• 4 zonnepanelen geplaatst op het westen;
• groepenkast vernieuwd in december 2023;
• keuken vernieuwd in 2019, vaatwasser in 2024;
• energielabel F is afgegeven vóór het plaatsen van de zonnepanelen en het vervangen van de Cv-ketel. 
 
Type woning:
Woonhuis
Soort woning
Eengezinswoning
Type woning
Tussenwoning
Beschikbaarheid
Verkocht
Vraagprijs
€ 265.000
Koopconditie
Kosten koper
Aanvaarding
In overleg
Inhoud
270 m3
Perceel
75 m2
Woonoppervlakte
69 m2
Aantal kamers
4
Aantal slaapkamers
3
Overig inpandige ruimte
7 m2
Bouwjaar
1919
Energielabel
F

Wilt u graag een volledige brochure ontvangen? Vul dan uw naam en emailadres in en we sturen u direct door naar de brochure.

Meer informatie over deze woning of een bezichtiging plannen?

Neem dan contact op met één van onze makelaars via 013 580 20 70 of stuur een mail naar info@gerritsemakelaardij.nl.