In één van de meest gewilde nieuwbouwwijken "Zuiderpark" in een groene omgeving bieden wij u deze ruim opgezette geschakelde woning aan. De wijk is in Amerikaanse New-England-stijl gebouwd en wordt gekenmerkt door de vele veranda's, houtlook (onderhoudsarm) en een subtiele variatie in kleurgebruik. De woning heeft onder andere een ruime en lichte woonkamer met openslaande tuindeuren, moderne keuken en badkamer. De woning geeft de mogelijkheid voor vijf slaapkamers, waardoor u een ideale gezinswoning kunt creëren. Een overweldigende grote zolderverdieping welke nog helemaal naar eigen inzicht ingedeeld kan worden. De onderhoudsvriendelijke tuin ligt op het zuiden en heeft naast een houten berging met overkapping (2022) een eigen achterom voorzien van verlichting.
Deze energiezuinige, onderhoudsvrije, volledig geïsoleerde woning is gebouwd in 2019 en heeft energielabel A.
De ligging van de woning is ideaal. Een rustige en kindvriendelijke straat met groenstroken en volop parkeergelegenheden, maar op korte afstand van vele voorzieningen. Zo is het bruisende stadscentrum met al haar (winkel)voorzieningen en gezellige terrasjes binnen 10 minuten met de fiets te bereiken en liggen scholen en het leisure gebied “Stappegoor” met onder andere de Jumbo Foodmarkt, bioscoop, zwembad en sportvoorzieningen om de hoek.
Het fraaie Leijpark en de populaire Piushaven zijn tevens nabij gelegen.
Diverse uitvalswegen richting de steden Breda, Eindhoven en ’s-Hertogenbosch zijn snel en makkelijk te bereiken.
Indeling:
Begane grond
Entree, hal met tegelvloer voorzien van vloerverwarming, strakke wandafwerking, uitgebreide meterkast en een moderne toiletruimte voorzien van een vrij hangend toilet met fontein.
De hal geeft toegang tot de woonkamer en trapopgang naar de eerste verdieping.
Royale woonkamer circa 36 m² (inclusief keuken) met fraaie tegelvloer voorzien van vloerverwarming, strakke wandafwerking met wandverlichting, praktische trapkast en twee openslaande tuindeuren welke toegang geven tot het terras met elektrisch zonnescherm over de gehele breedte van de woning (Brustor, 2021) en fijne tuin aangelegd door een hovenier.
Aan de voorzijde van de woning gelegen open keuken met moderne strakke keukeninrichting in rechte opstelling. De keukeninrichting is voorzien van een Bora inductie kookplaat (2019, met nieuw filter en glasplaat 2022), koelkast (ATAG, 2023), vriezer, oven en een vaatwasser (allen ATAG, 2019).
Eerste verdieping
Overloop voorzien van doorlopende (slijtvaste) vloerbedekking, strakke wandafwerking en die toegang geeft tot de twee slaapkamers, (voorheen 3 kamers), de moderne badkamer en separaat toilet.
De voorslaapkamer nu in gebruik als kantoor/werkkamer en is voorzien van vloerbedekking.
De hoofdslaapkamer is aan de achterzijde gelegen en geeft toegang tot de walk-in closet, met op maat gemaakte vaste kasten.
Moderne badkamer voorzien van een vaste wastafel met meubel en 2 kranen, een grote inloopdouche met zitje en designradiator.
Separate, moderne toiletruimte voorzien van een vrij hangend toilet met fontein.
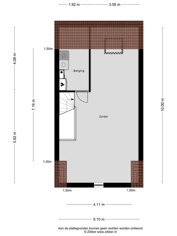
Tweede verdieping
Via een vaste trap is de zeer grote en overweldigende zolder te bereiken. Deze zolderruimte circa 39m² is voorzien van een doorlopende (slijtvaste) vloerbedekking, strakke wandafwerking, dakraam en bergruimte onder de dakschuinte. Een aparte berging is gerealiseerd met daarin de aansluitingen voor de wasapparatuur, c.v. combi ketel (Intergas, 2019), de unit voor de mechanische ventilatie en de omvormer van de 5 zonnepanelen (gelegen op het dak aan de zuidkant van de woning).
Vanwege de grootte van deze zolderverdieping bestaat de mogelijkheid om op eenvoudige wijze op deze verdieping naast een voorzolder één tot twee extra en ruime slaapkamers te creëren.
Buiten
Onderhoudsvriendelijke mooi aangelegde achtertuin op het zuiden met een groot terras en verder voorzien van gazon, plantenborder en een overdekte achterom. In de achtertuin is daarnaast een degelijke houten berging aanwezig.
Algemeen
- Op een populaire locatie gelegen zeer royale geschakelde woning
- De woning is voorzien van onderhoudsarme voorgeven en kunststof kozijnen met HR +++ glas (3 dubbel glas)
- De woning is volledig geïsoleerd en voorzien van 5 zonnepanelen
- Een rustige maar ideale locatie nabij het stadscentrum en diverse voorzieningen.
- Elektrisch donkergroen/grijs zonnescherm
- Living met mooie wandverlichting                        
                        
                            
                                                            
                                    
                                        Soort woning
                                    
                                    
                                        Eengezinswoning                                    
                                 
                                
                                    
                                        Type woning
                                    
                                    
                                        Geschakelde woning                                    
                                 
                            
                            
                                                            
                                
                                    
                                        Koopconditie
                                    
                                    
                                        Kosten koper                                    
                                 
                            
                            
                            
                                                            
                                                                                        
                            
                            
                            
                                                            
                            
                            
                            
                            
                                                            
                                                     
                        
                        
                        
                                                                                                Wilt u graag een volledige brochure ontvangen? Vul dan uw naam en emailadres in en we sturen u direct door naar de brochure.