Aan een prachtige en brede laan gelegen ruime, in jaren '30 stijl gebouwde twee onder een kapwoning met voortuin, oprit voor meerdere auto's, dubbele garage (mogelijkheid voor kantoor en/of praktijk aan huis!) en een ruime en brede achtertuin. De woning is gelegen op korte afstand van de groene Dongevallei, sportvoorzieningen, openbaar vervoer, scholen, winkelcentrum Dalempromenade en uitvalswegen.
* Bushalte op loopafstand
* Vrij uitzicht achterzijde
* Zeer luxe tweede garage met diverse mogelijkheden
Indeling begane grond
Entree/hal met trapopgang, toilet met fontein, meterkast (met glasvezel) en garderobe. Royale L-vormige living met wijnkast en eetkamer met openslaande tuindeuren en ter plaatse van de keuken een loopdeur naar de tuin. De in perfecte staat verkerende keuken is voorzien van eerste klas, vrijwel nieuwe apparatuur te weten: inductiekookplaat (1 jaar oud), combimagnetron (Bosch, 1 1/2 jaar oud), vaatwasser (Siemens, 3 jaar oud) en een afzuigkap van Siemens (1 1/2 jaar oud). Een rvs achterwand en een ontbijtblad maken de keuken compleet.
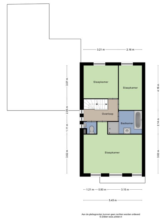
Eerste verdieping
Overloop met separaat toilet met fontein (met raam). Royale hoofdslaapkamer van ca. 20 m² en vervolgens nog twee fijne kinder-/werkkamers. De gehele verdieping is voorzien van een vrijwel nieuwe (2 jaar oud) laminaatvloer. Badkamer voorzien van ligbad, wastafel in meubel, inloopdouche voorzien van Belgisch hardsteen vloer met schuifwand en een decorradiator.
Tweede verdieping
Via vaste trap bereikbare grote zolderverdieping met aan de achterzijde een grote berging/kamer met twee dakramen (een in kunststof uitgevoerd) alsmede wasmachine aansluiting en mechanische ventilatie. Vierde grote slaapkamer met velux dakraam met verduisteringsgordijn. De tweede verdieping biedt veel bergruimte.
Tuin
Fraai aangelegde achtertuin op het noordoosten voorzien van bestrating, vijver en achterom. De tuin beschikt over een prachtige plataan en meerdere zon én schaduw terrassen alsmede over verlichting.
De beide garages zijn voorzien van een elektrisch bedienbare sectionaaldeur. Garage 1 beschikt over een kruipruimte, een geïsoleerde betonvloer alsmede over verwarming en wateraansluiting. Garage 2 is in spouw opgetrokken, beschikt over vloer,- en dakisolatie én over een garagedeur aan de achterzijde alsmede over een loopdeur. Mogelijkheden voor kantoor en/of praktijk aan huis zijn hiermee eenvoudig te realiseren!
Algemeen
* Schilderwerk buiten in 2020 uitgevoerd
* Aan de voorzijde beschikt de woning op de begane grond over een markies en op de eerste verdieping zijn zonnescreens aanwezig.
* Boeiboorden trespa
* Achterzijde elektrisch bedienbare zonnescreens en tweemaal rolluik waarvan 1 elektrisch bedienbaar
* Zeer fraai woonhuis en zeer goed en netjes bewoond!!                        
                        
                            
                                                            
                                    
                                        Soort woning
                                    
                                    
                                        Eengezinswoning                                    
                                 
                                
                                    
                                        Type woning
                                    
                                    
                                        Twee onder een kapwoning                                    
                                 
                            
                            
                                                            
                                
                                    
                                        Koopconditie
                                    
                                    
                                        Kosten koper                                    
                                 
                            
                            
                            
                                                            
                                                                                        
                            
                            
                            
                            
                                                            
                                    
                                        Gebouwgebonden buitenruimte
                                    
                                    
                                        11 m2
                                    
                                 
                            
                                                            
                                    
                                        Overig inpandige ruimte
                                    
                                    
                                        51 m2
                                    
                                 
                            
                            
                                                            
                                                     
                        
                        
                        
                                                                                                Wilt u graag een volledige brochure ontvangen? Vul dan uw naam en emailadres in en we sturen u direct door naar de brochure.