FIJN WONEN OM DE HOEK VAN DE PIUSHAVEN IN DEZE GEMODERNISEERDE EN UITGEBOUWDE VOOROORLOGSE MIDDENWONING MET ZONNIGE TUIN.
• OP EEN GOEDE WOON LOCATIE IN TILBURG-ZUID, WIJK FATIMA GELEGEN
• MET GEMODERNISEERDE BADKAMER (2020) EN KEUKEN (2021)
Deze sfeervolle middenwoning met voortuin en zonnige achtertuin ligt in Tilburg-Zuid nabij de Piushaven, het Leijpark, het St. Elisabethziekenhuis en op loopafstand van het centrum en winkelcentrum Aabee boulevard.
Op de begane grond van de woning bevinden zich de woonkamer met erker, open keuken en gemoderniseerde badkamer. Op de eerste verdieping zijn 2 slaapkamers (voorheen 3) en een toiletruimte met zwevend toilet en wastafel. Middels vlizotrap te bereiken tweede verdieping.
Bouwjaar: 1941
Perceel oppervlakte: 114 m²
Woonoppervlakte: ca. 83 m²
Inhoud: ca. 310 m³
INDELING
begane grond
Entree/hal met trapopgang en toegang naar de woonkamer. Deze woonkamer is aan de achterzijde uitgebouwd, heeft aan de voorzijde een sfeervolle erker en door de openslaande deuren en een lichtkoepel is er voldoende lichtinval en contact met de fijne achtertuin. Verder is er een verdiepte trapkast, waarin zich de meterkast met nieuwe groepenkast bevindt.
De keuken is ingericht met een eigentijds keukeninterieur (2021, kleur taupe) v.v. een spoelbak, diverse lades, een Quooker (Franke 3 in 1), pannencarrousel, 4-pitsinductie kookplaat, afzuigkap, vaatwasser en koelkast en combi magnetron.
Achter de keuken zijn via een portaal de gemoderniseerde toiletruimte (zwevend toilet en fonteintje) en badkamer te bereiken. In het portaal bevinden zich de cv.-combiketel (Vaillant, 2016) en de aan/afvoer wasmachine. Een deur geeft toegang tot de achtertuin. De badkamer is in 2020 gemoderniseerd en heeft een inloopdouche , wastafelmeubel , designradiator en mechanische ventilatie.
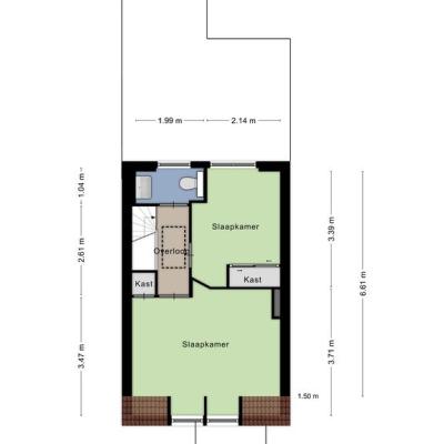
1e verdieping
Op deze verdieping zijn twee slaapkamers; de eerste slaapkamer, die aan de voorzijde ligt, heeft een oppervlakte van ca. 15 m² en een vaste kast. Voorheen waren dit 2 slaapkamers. De tweede slaapkamer van ca. 8 m² ligt aan de achterzijde. Eigentijdse toiletruimte met zwevend toilet en wastafelmeubel.
2e verdieping
Via een vlizotrap te bereiken bergzolder met 2 dakramen
BUITEN
De ruime voortuin is voorzien van sierbestrating. De achtertuin is op het zuidwesten gelegen en is eveneens voorzien van sierbestrating. Er is een vorstvrije buitenkraan.
De stenen berging van totaal 9 m² bestaat uit een rechterdeel dat is voorzen van een c.v.-radiator en een linkerdeel dat als fietsenberging wordt gebruikt en middels een deur toegang geeft tot de achterom/brandgang.
ALGEMEEN
• De woning is in de loop der jaren gemoderniseerd; eigentijdse keuken, badkamer en afwerkingsniveau, vernieuwde groepenkast.
• De begane grondvloeren zijn voorzien van tegels. De wanden en plafonds zijn afgewerkt met stucwerk. De verdiepingsvloeren zijn voorzien van eigentijds pvc, de wanden van stucwerk.
• Energielabel E.
• Dakisolatie en dubbele beglazing, diverse draai/kiepramen.
• De woning heeft nieuwe kozijnen/ramen (gedeeltelijk kunststof) met dubbele beglazing. Rolluiken op eerste verdieping.
• Glasvezel aanwezig.
• Parkeren middels parkeervergunning, € 48,-- per jaar.
• In de koopovereenkomst worden een ouderdoms-en asbestclausule opgenomen.                        
                        
                            
                                                            
                                    
                                        Soort woning
                                    
                                    
                                        Eengezinswoning                                    
                                 
                                
                            
                            
                                                            
                                
                                    
                                        Koopconditie
                                    
                                    
                                        Kosten koper                                    
                                 
                            
                            
                            
                                                            
                                                                                        
                            
                            
                            
                                                            
                            
                            
                                                            
                                    
                                        Overig inpandige ruimte
                                    
                                    
                                        3 m2
                                    
                                 
                            
                            
                                                     
                        
                        
                        
                                                                                                Wilt u graag een volledige brochure ontvangen? Vul dan uw naam en emailadres in en we sturen u direct door naar de brochure.